
House for sale 4+1 • 116 m² without real estate, Baden-Württemberg
, Baden-WürttembergPublic transport 1 minute of walking • ParkingSchöne end-of-row house available for private purchase.
The three-story, friendly, and well-maintained end-of-row house impresses with its high-quality interior fittings.
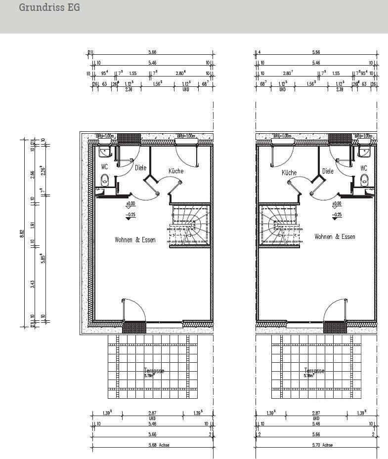
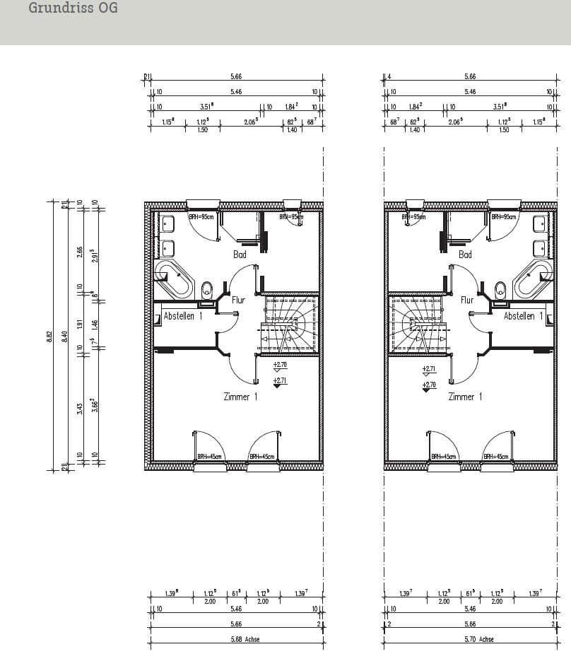
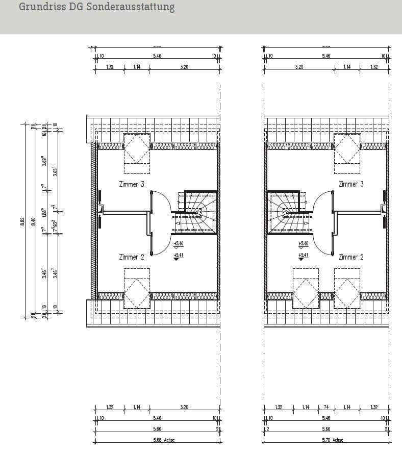
The house, with 116 m² of living space, offers a total of 4 rooms (ground floor living room, first floor bedroom, and an expanded top floor with 2 rooms), a kitchen (which can potentially be taken over), a daylight bathroom, a daylight guest WC, a utility room, a storage room, a terrace, a garden with a garden house, and 2 parking spaces directly at the house.
Quality
Robust construction: 10 cm concrete, 20 cm insulation.
Soundproofing: no shared walls with the neighbors – each house has its own walls.
Optimal thermal insulation through insulation of the heat transfer pump (WLG) 0.035 W/(m*K), including graphite content for effective fire protection.
Well-thought-out floor plan for designing your individual living space.
Living Comfort
Spacious, bright rooms (ceiling height: 2.50 m on the ground floor and first floor).
High ceilings in the top floor (up to 3.10 m ceiling height) thanks to the open pitched roof with large roof windows.
Daylight bathroom with a walk-in shower, hexagon bathtub, and double washbasin.
Separate guest WC.
Garden with a large terrace and garden house.
Combined heat and power plant for energy supply, operated with district heating.
Currently, the house is rented. The tenancy ends on 31.01.2026.
Welcome to Weinheim – the attractive Two-Castle City on the Bergstraße that ideally combines urban living, a historic atmosphere, and nature-oriented recreation. The property is located in a desirable area with excellent infrastructure and a high quality of life.
The charming old town with its historic lanes, cozy cafés, and diverse shopping opportunities is within walking distance. In the immediate vicinity you will find numerous everyday amenities: supermarkets, bakeries, pharmacies, doctors, restaurants, as well as two shopping centers with a wide range of fashion, book, and specialty stores.
Numerous parks and green spaces, such as the Schlosspark and the Exotic Forest, invite you to take a walk, jog, or simply relax. Families benefit from nearby playgrounds and leisure facilities, while sports enthusiasts can take advantage of gyms, clubs, or the well-developed network of cycle and hiking paths. Weinheim also offers a lot culturally – with events, museums, and a varied program set in a historic backdrop.
The transport connections are excellent: in just a few minutes you can reach the A5 or A659 highways, with quick access to the Rhine-Neckar metropolitan region. The cities of Mannheim, Heidelberg, and Darmstadt are just as easily reachable as Frankfurt International Airport, which is only about 40 minutes away. Weinheim station additionally offers a direct connection to local public transport.
Low-energy house.
Daylight bathroom as well as a guest WC.
Laundromat and storage room.
Digital satellite system and telephone/internet preparation in all rooms.
Garden with a large terrace and garden house.
Two car parking spaces directly at the house.
Property characteristics
| Age | Over 5050 years |
|---|---|
| Condition | Good |
| Listing ID | 956737 |
| Usable area | 116 m² |
| Total floors | 3 |
| Available from | 01/02/2026 |
|---|---|
| Layout | 4+1 |
| EPC | A - Extremely economical |
| Land space | 195 m² |
| Price per unit | €4,638 / m2 |
What does this listing have to offer?
| Parking | |
| Terrace |
| MHD 1 minute on foot |
What you will find nearby
Still looking for the right one?
Set up a watchdog. You will receive a summary of your customized offers 1 time a day by email. With the Premium profile, you have 5 watchdogs at your fingertips and when something comes up, they notify you immediately.













