
Flat for sale 3+1 • 85 m² without real estateMatoušova, Liberec - Liberec, Liberecký Region
Matoušova, Liberec - Liberec, Liberecký RegionPartially equipped • ParkingNabízíme k prodeji byt 3+1 o výměře 85 m², v osobním vlastnictví, v Liberci v ulici Matoušova. V těsné blízkosti se nachází vlakové i autobusové nádraží a zastávka MHD. V docházkové vzdálenosti se nachází Mateřská škola, ZŠ, cyklostezka, Billa, pošta.
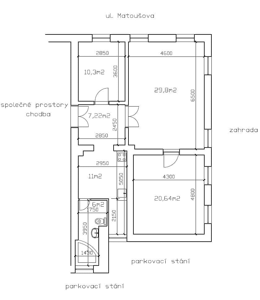
Byt se nachází v přízemí zděného cihlového domu, ve kterém je pouze 8 bytů. Dům je po dílčích rekonstrukcích, aktuálně má nově zrekonstruovanou střechu, má fungující SVJ. Dům má vlastní zahrádku a parkovací místo, náležící ke každému bytu, za domem na vlastním oploceném pozemku.
Vytápění a příprava teplé vody je řešena novým plynovým kotlem umístěným v kuchyni. K bytu náleží několik dalších uzamykatelných úložných prostor – sklepní kóje, kůlna, místnost na chodbě a půdní kóje.
Byt má tři prostorné pokoje, kuchyň a koupelnu s WC. Byt je vybaven kuchyňskou linkou, veškerými spotřebiči a částečně i nábytkem – možnost konkrétní domluvy o co bude mít kupující zájem.
Financování je možné hypotékou, byt je k nastěhování dle dohody.
Property characteristics
| Available from | 01/02/2026 |
|---|---|
| Building construction | Brick |
| Fully furnished | Partly |
| Listing ID | 954105 |
| EPC | G - Extremely uneconomical |
| Usable area | 85 m² |
| Condition | Very good |
|---|---|
| Layout | 3+1 |
| Floor | 1. floor out of 3 |
| Ownership | Personal |
| Location | Busy area |
| Price per unit | CZK 65,294 / m2 |
Are you choosing a apartment?
Make sure you have all the important information!
What does this listing have to offer?
| Wheelchair accessible |
| Parking |
What you will find nearby


Flat for saleDlouhý Most - Dlouhý Most, Liberecký Region- 3+1
- 80 m²
CZK 4,500,000CZK 4,700,000
Save CZK 200,000

Still looking for the right one?
Set up a watchdog. You will receive a summary of your customized offers 1 time a day by email. With the Premium profile, you have 5 watchdogs at your fingertips and when something comes up, they notify you immediately.



















