
Flat to rent 4+1 • 101 m² without real estateStuttgart Zuffenhausen Baden-Württemberg 70435
Stuttgart Zuffenhausen Baden-Württemberg 70435Public transport 1 minute of walkingBelow is the translated text:
The following prerequisites are desired:
- Maximum 4 people (for more, the apartment is unfortunately not suitable)
- Credit check/Schufa report
- Regular income (proof of income required afterwards)
- JOBCENTER not desired
- No large pets (small pets can be arranged by agreement)
The apartment is currently occupied and will be available from 1.10.25. Viewings are mostly possible in the afternoons from 4:00 PM onward.
Thank you.
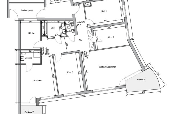
The spacious and modern 4-room ground floor apartment is located in a two-family house in the center of Zuffenhausen and has exactly 4 rooms. Since the floor heating is in one of the smaller rooms (see floor plan), it is up to you whether you wish to accommodate a person there.
The following renovations and modernizations have been carried out in recent years:
Complete renovation of the floor, new flooring, thermal insulation, new walls, insulated PVC windows, complete renovation of the bathroom, fitted kitchen (including appliances), renewed water and gas pipes, and renewed electrical wiring (in 1970, 1992, 2007-2012, and 2015). The apartment impresses primarily through its well-maintained, high-quality features, its spacious layout, and its central location. The apartment is comfortably heated via a gas floor heating system.
The ground floor apartment is situated in a quiet side street in the heart of Zuffenhausen, only 50 m from the main shopping street "Unterländerstraße." Shops for daily needs, as well as doctors, pharmacies, banks, daycare centers, and much more, are all within a few minutes' walk. The U-Bahn station "Kirchtalstraße" (U15) is just a 1-minute walk away, and the U-Bahn stations "Zuffenhausen Rathaus" (U15) and "Kelterplatz" (U7) are a 2-minute walk away. Zuffenhausen train station is about a 5-minute walk away (serviced by S-Bahn lines S4, S5, and S6), which take you to Stuttgart Main Station in 7-9 minutes. By car, you can reach Stuttgart city center in about 15 minutes (approximately 6 km). There is also good access to Federal Roads B10 and B27 as well as the A81 motorway. In addition, many large companies such as Porsche, Bosch, Mahle-Behr, and Alcatel-Lucent are located nearby.
The apartment has been renovated and modernized and offers the following high-quality features: a fitted kitchen including appliances (refrigerator with freezer compartment, cooktop, oven, microwave, extractor hood, dishwasher, as well as base and wall cabinets) + a bright bathroom with a shower, washbasin, WC, ceiling-integrated lights, towel radiator, and wall cabinet with mirror + 1 outdoor terrace accessible from the kitchen. In the living room, a feature wall with high-quality tiles creates a pleasant atmosphere + quality laminate flooring in all rooms + high-quality tiling throughout the hall + thermal insulation + insulated PVC windows. Cable and satellite connections are available.
The following prerequisites are desired:
- Maximum 4 people (for more, the apartment is unfortunately not suitable)
- Credit check/Schufa report
- Regular income (proof of income required afterwards)
- JOBCENTER not desired
- No large pets (small pets can be arranged by agreement)
If you do not meet these prerequisites, we kindly ask you to refrain from making an inquiry.
Without a positive credit check/Schufa report, a viewing is not possible.
The apartment is currently occupied and will be available from 1.11.25. Viewings are mostly possible in the afternoons from 4:00 PM onward.
Thank you.
Property characteristics
Age | Over 5050 years |
---|---|
Condition | Good |
Listing ID | 950293 |
Price per unit | €14 / m2 |
Available from | 01/11/2025 |
---|---|
Layout | 4+1 |
Usable area | 101 m² |
What does this listing have to offer?
Wheelchair accessible | |
MHD 1 minute on foot |
Basement | |
Terrace |
What you will find nearby
Still looking for the right one?
Set up a watchdog. You will receive a summary of your customized offers 1 time a day by email. With the Premium profile, you have 5 watchdogs at your fingertips and when something comes up, they notify you immediately.