
Flat for sale Studio • 40 m² without real estateJečná, Prague - Nové Město
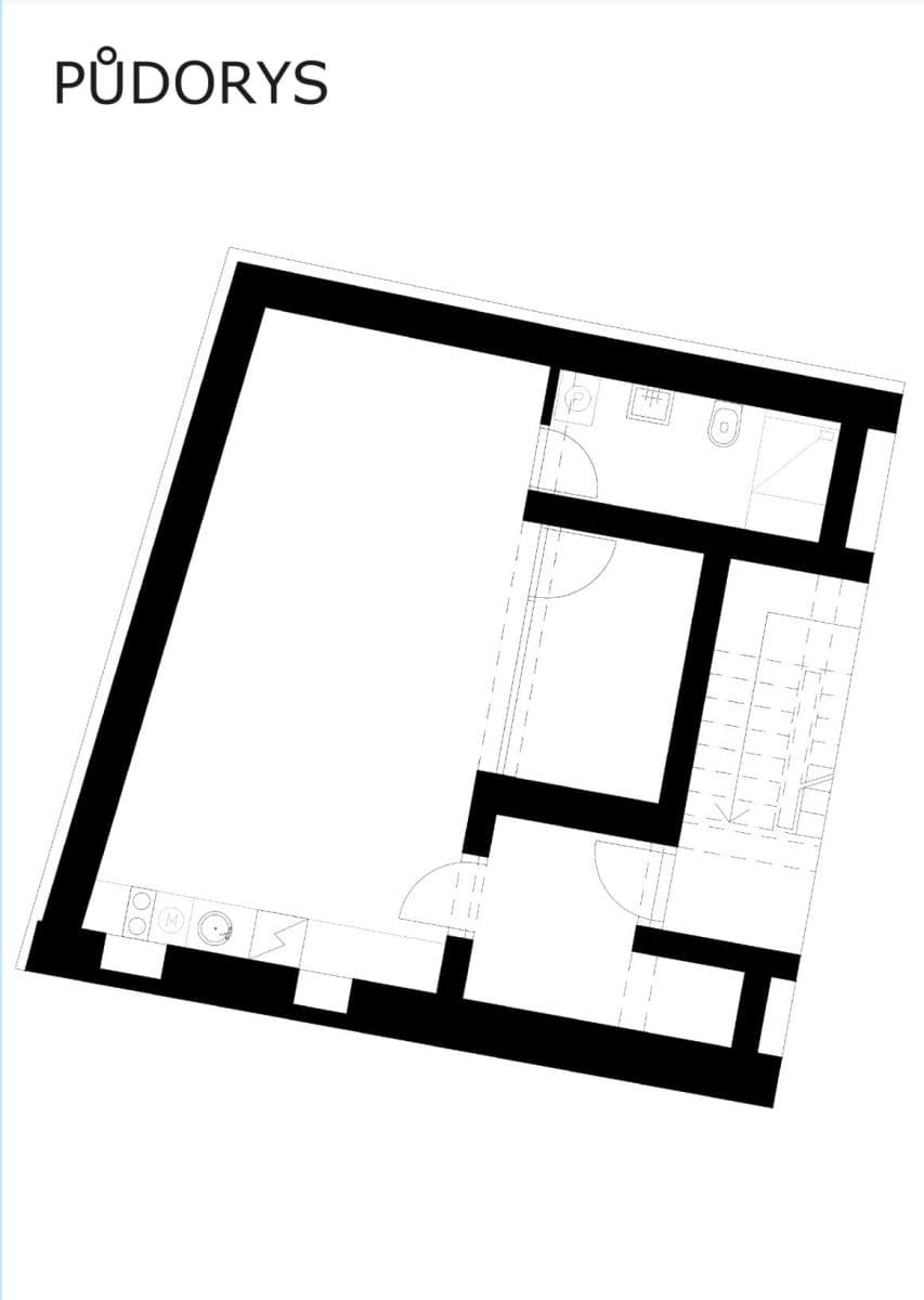
Ječná, Prague - Nové MěstoPartially equipped • Terrace 5 m²Nabízím k prodeji suterénní (1PP) ateliér 1+kk v novostavbě z roku 2023, o ploše 40 m² + 5 m² terasa - ve stylu anglického dvorku. Nemovitost se nachází v cihlové přístavbě v zadní klidné části původní, kompletně zrekonstruované budovy v blízkosti Karlova náměstí, a je vybavena novou kvalitní kuchyňskou linkou a nábytkem, což umožňuje okamžité využití nebo flexibilní úpravy dle případného podnikatelského záměru.
Momentálně úspěšně slouží jako studio ke krátkodobým pronájmům. Dispozice interiéru přizpůsobí prostor různým potřebám a představám, např. také jako zajímavá komerční nemovitost pro provozování různých služeb.
Součástí ateliéru je také anglický dvorek (terasa) ve výsadním užívání a přístupný pouze z ateliéru, o rozloze 5 m², s palubkovou podlahou a osázený zelení s automatickým zavlažovacím systémem, který přidává na atraktivitě a využitelnosti celého objektu. Koupelna disponuje vyhřívanou podlahou.
Při využití nemovitosti je třeba zohlednit, že parkovací místo či garáž nejsou k dispozici, což může orientovat celkové využití objektu spíše ke krátkodobým pronájmům, nebo jako komerční prostory. Energetický štítek přiložen.
V případě zájmu o další informace či domluvu na prohlídce prosím využijte možnost komunikace skrze zprávy na této platformě.
Property characteristics
| Available from | 01/11/2025 |
|---|---|
| Building construction | Brick |
| Fully furnished | Partly |
| Listing ID | 935691 |
| EPC | F - Very uneconomical |
| Location | Quiet area |
| Price per unit | CZK 186,500 / m2 |
| Condition | New-build |
|---|---|
| Layout | Studio |
| Floor | 1. floor |
| Ownership | Personal |
| Location of the property | In the block |
| Usable area | 40 m² |
Are you choosing a apartment?
Make sure you have all the important information!
What does this listing have to offer?
| Terrace: 5 m² |
What you will find nearby
Still looking for the right one?
Set up a watchdog. You will receive a summary of your customized offers 1 time a day by email. With the Premium profile, you have 5 watchdogs at your fingertips and when something comes up, they notify you immediately.



















