
Flat for sale 3+1 • 92 m² without real estateHolečkova, Prague - Smíchov
Holečkova, Prague - SmíchovPublic transport 1 minute of walking • Parking • Cellar 13 m²REALITNÍ KANCELÁŘE A PŘEKUPNÍCI NEVOLAT.
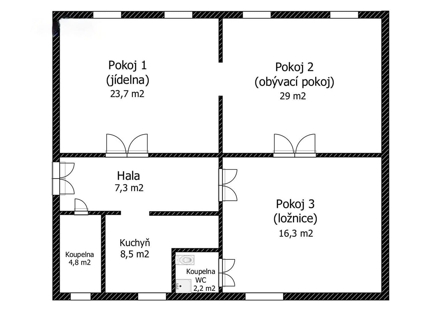
Nabízím k prodeji prostorný byt 3+1 se dvěma koupelnami o výměře 92 m2, který se nachází v 1.NP secesního domu v Holečkově ulici na rozhraní Malé Strany a Smíchova. Z ulice není do bytu vidět z důvodů zvýšeného přízemí a umístění oken více jak 2 m nad chodníkem. Byt je kompletně zrekonstruovaný. Rekonstrukce proběhla před dvěma lety. Byl naistalován plynový kotel a nové radiátory, které nahradily původní wafky. Komín nově vyvložkován. Došlo ke kompletní výměně elektroinstalace. V bytě byla stará elektroinstalace z hliníku. Krásná podlaha s takzvaným vídeňským křížem byla uvedena do původní podoby (původně lino, pod ním pazderodesky a pod nimi na červeno natřená původní podlaha). Nové v plastu jsou také rozvody vody a odpad.
Při rekonstrukci byly zachovány všechny původní prvky, které z tohoto bytu dělají opravdu noblesní bydlení. Původní okenice, původní parkety (50 cm x 50cm s vídeňským křížem), 4,5 m vysoké stropy s klenbami, dřevěné ostění, přes 3 m vysoké dvoukřídlé dveře.
K bytu náleží také prostorný sklep o výměře 13m2.
Byt má několik předností. Jednou z nich je skutečnost, že se na každém patře nachází pouze jeden byt, což zaručuje větší soukromý. Dům je kompletně zrekonstruovaný, proto jsou poplatky do fondu oprav velmi nízké. V roce 2025 byly kolem 800 Kč. Společně s poplatky za vodu, osvětlení společných prostor, popelnice, tvořily poplatky (včetně fondu oprav) kolem 1600 Kč na osobu, což je opravdu nízká částka. SVJ nemá žádný dluh. Velké investice se neplánují, jelikož je celý dům zrekonstruovaný.
Ložnice, kuchyň a jedna koupelna jsou umístěny na jižní straně a mají výhled do zahrady. K domu náleží i menší dvůr, kde je možné relaxovat.
Byt se nachází přímo naproti nádhernému parku (zahradě) Kinských, což je ideální zvláště pro pejskaře. Pár minut od bytu najdete také restaurace, bary, metro, nákupní centrum Anděl, polikliniku Kartouzská, kina atd. Na Náplavku je to také pouze pár minut chůze. Asi 100 m od bytu je zastávka autobusu Kobrova. Tramvajové spojení je také pár kroků od bytu na Náměstí Kinských. Parkování možné přímo před bytem.
Prohlídka možná pouze v případě, že má zájemce vyřešené a hlavně zajištěné financování nemovitosti.
Property characteristics
| Age | Over 5050 years |
|---|---|
| Condition | After reconstruction |
| Layout | 3+1 |
| Floor | 1. floor out of 6 |
| Heating | Gas boiler |
| Ownership | Personal |
| Reconstruction | Complete |
| Usable area | 92 m² |
| Available from | 01/05/2026 |
|---|---|
| Building construction | Brick |
| Fully furnished | Unfurnished |
| Design | Standard |
| Listing ID | 838128 |
| EPC | E - Wasteful |
| Location | Centre |
| Price per unit | CZK 137,935 / m2 |
Are you choosing a apartment?
Make sure you have all the important information!
What does this listing have to offer?
| Basement: 13 m² | |
| MHD 1 minute on foot |
| Parking |
What you will find nearby
Still looking for the right one?
Set up a watchdog. You will receive a summary of your customized offers 1 time a day by email. With the Premium profile, you have 5 watchdogs at your fingertips and when something comes up, they notify you immediately.















