Commercial property for sale • 157 m² without real estateMánesova, Prague - Vinohrady
Mánesova, Prague - VinohradyPublic transport 2 minutes of walkingProdej komerčního prostoru – ideální investice
Prodám atraktivní komerční prostor. Perfektní pro showroom, wellness, fitness nebo kancelář, prodejnu, vinotéku, pilates studio, pivní lázně, internetový obchod a další.
- Možnost okamžitého výnosu – prostor pronajatý
- Flexibilní využití – připraveno pro váš vlastní projekt
- Výhodná investice – jistý příjem nebo vlastní podnikání.
Atraktivní komerční prostor je v současné době pronajaty jako masážní salon s měsíční výpovědní lhůtou.
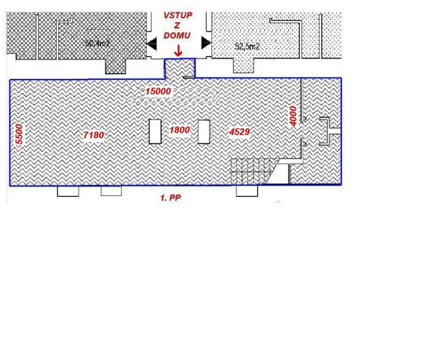
Obchodní prostor o ploše 157,6 m2 se situován v 1. PP a 2.PP budovy.
Vstup je přímo z ulice po schodišti, které vede do hlavní místnosti.
Dispozice se skládá z:
- v 1.PP.: 2x místnosti prodejny, předsíň, WC s předsíňkou a úklidem, technickou místnosti pro kotel;
- v 2.PP.: chodba se schodištěm do 1.PP., vstup z prostoru hlavního schodiště, 3x neprůchozí místnosti, 2x sklad, 2x WC s předsíní.
Topení a ohřev teplé vody vlastním plynovým kotlem.
Nemovitost je v atraktivní lokalitě Prahy 2, Vinohrady, která nabízí veškerou potřebnou občanskou vybavenost, pěší dostupnost MHD a všechny výhody podnikání v klidné části centra města. Dalším velkým plusem je výborná dopravní dostupnost – stanice metra Muzeum je vzdálena 5 minut chůze.
Funguje, vydělává a čeká na nového majitele.
Možnost koupě s nájemcem nebo bez – podle vašich potřeb.
Čisté papíry, vstup z ulice, výborná dostupnost.
Skvělé místo, které si zaslouží nové využití.
RK nevolat
Property characteristics
| Available from | 02/09/2025 | 
|---|---|
| Fully furnished | Unfurnished | 
| Ownership | Personal | 
| Location | Quiet area | 
| Price per unit | CZK 138,854 / m2 | 
| Condition | Very good | 
|---|---|
| Listing ID | 784230 | 
| EPC | G - Extremely uneconomical | 
| Land non-residential space | 157 m² | 
What does this listing have to offer?
| MHD 2 minutes on foot | 
What you will find nearby
Still looking for the right one?
Set up a watchdog. You will receive a summary of your customized offers 1 time a day by email. With the Premium profile, you have 5 watchdogs at your fingertips and when something comes up, they notify you immediately.










