
Commercial property to rent • 154 m² without real estateBratří Dohalských, Prague - Vysočany
Interested?
Communicate all private owners and save CZK 35,000 on commissions.
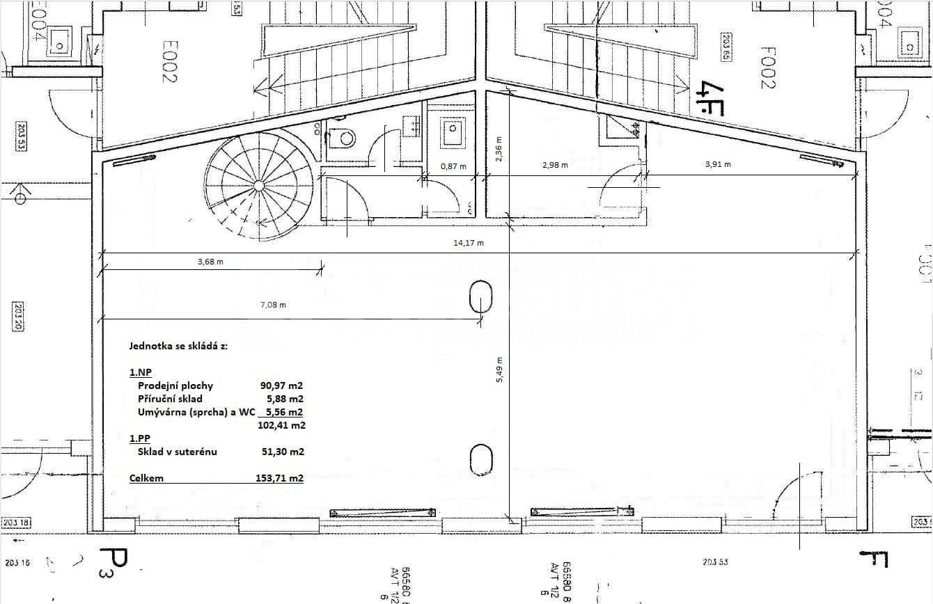
Přímý majitel pronajme obchodní prostory (obchodní, prodejní prostor nepotravinářského charakteru, showroom, prodejnu, popř. jako kancelář) v přízemí domu o velikosti 102,41 m2 + 51,3 m2 v 1.PP, celkem 153,71 m2 na adrese bratří Dohalských 140/5, Praha 9 - Vysočany, v centru Vysočan. 3 minuty od stanice metra Vysočanská, v dosahu je tramvaj, vlak a autobusy. V blízkosti úřady a instituce (Český telekomunikační úřad, Dopravní podnik Hl.m.Prahy, Správa sociálního zabezpečení, Radnice Prahy 9, ...).
Nájem = 35.000 Kč/měsíc => 228 Kč/m2:
- přízemí = 29.000Kc (102,41 m2) = 283 Kč/m2
- 1.PP = 6.000 Kč (51,3 m2) = 117 Kč/m2
Poplatky = předpis záloh za služby 9000 Kč/měsíc vč. zálohy na elektřinu = 59 Kč/m2.
(Skutečné náklady roku 2024 byly 8.886 Kč/měsíc, resp. 57,81 Kč/m2 měsíčně. Z toho elektřina 1.759 Kč/měsíc.)
Celkem (nájem + poplatky) = 228 + 59 = 287 Kč/m2 = 44.000 Kč/měsíc
K dispozici je reklamní světelná výstrč a vnitřní strana 4 plochou zajímavých výkladců.
(Reklamní značení lze umístit i na přilehlé fasádě domu - viz. poslední foto. Kontakt lze předat.)
Vybavení obchodního prostoru, nebytové jednotky:
- vlastní klimatizace,
- zabezpečovací zařízení,
- odpočinková místnost s kuchyňkou a odvětráním,
- WC, sprcha,
- internetová přípojka.
Prostor volný od 1.4.2026 (nyní využit do konce 2026/03 jako atelier pro vybavení a dekorace interiérů).
Pokud vás tyto obchodní prostory zaujaly, neváhejte nás kontaktovat. Rádi vám poskytneme další informace.
Kontaktujte nás prosím jen přímí zájemci. Jsme připraveni k jednání, umíme naslouchat a vyslyšet Vaše představy.
P.S.
Vhodné jako specializovaná, či úzce specializovaná prodejna, jako prodejna nabízející základní druhy nepotravinářského zboží denní potřeby.
Obchody s nepotravinářským zbožím jsou prodejny
a) denní potřeby (pultový prodej, volný výběr, samoobsluha):
- oblečení,
- obuv,
- elektro,
- bytové doplňky,
- domácí potřeby,
- drogerie a parfumerie,
- vietnamské prodejny nabízející smíšený sortiment zboží (potravinářské zboží snad doplňkově),
b) specializované, či úzce specializované
- sportovního vybavení vč. případného servisu (cykloprodejna, vybavení pro fotbal, basketbal, volejbal, lyžování, tenis, apod.),
- papírnictví,
- knihkupectví,
- potřeb pro kutily,
- potřeby pro modeláře,
- zlatnictví,
- klenotnictví a hodinářství,
- květinářství,
- hračkářství,
- kancelářský nábytek,
- výdejna zásilek eshopu
- eshop
- výpočetní a audiovizuální techniky,
- maloobchod výrobních firem (výrobce oken, dveří, žaluzií, vestavěného nábytku, kancelářských židlí, klimatizace, vzduchotechniky, kuchyňské studio, podlaháři, …).
Kancelářský prostor:
- realitní kancelář,
- pojišťovací služby,
- finanční služby,
- jiné služby,
Property characteristics
| Available from | 01/04/2026 |
|---|---|
| Floor | 1. floor |
| EPC | C - Economical |
| Land non-residential space | 154 m² |
| Building construction | Skeleton |
|---|---|
| Listing ID | 668713 |
| Location | Quiet area |
| Price per unit | CZK 227 / m2 |
What does this listing have to offer?
| MHD 1 minute on foot |
What you will find nearby
Interested?
Communicate all private owners and save CZK 35,000 on commissions.



Commercial property to rentSuchdolská, Horoměřice - Horoměřice, Středočeský Region- 136 m²
CZK 30,000 + CZK 459

Still looking for the right one?
Set up a watchdog. You will receive a summary of your customized offers 1 time a day by email. With the Premium profile, you have 5 watchdogs at your fingertips and when something comes up, they notify you immediately.


















