
Flat to rent 2+kk • 49 m² without real estateRychtáře Petříka, Prague - Hostivař
Interested?
Communicate all private owners and save CZK 26,000 on commissions.
Nabízím k pronájmu byt v novostavbě v klidné lokalitě Praha 10 - Hostivař. Dům je z cihel, pětipatrový s podzemními stáními.
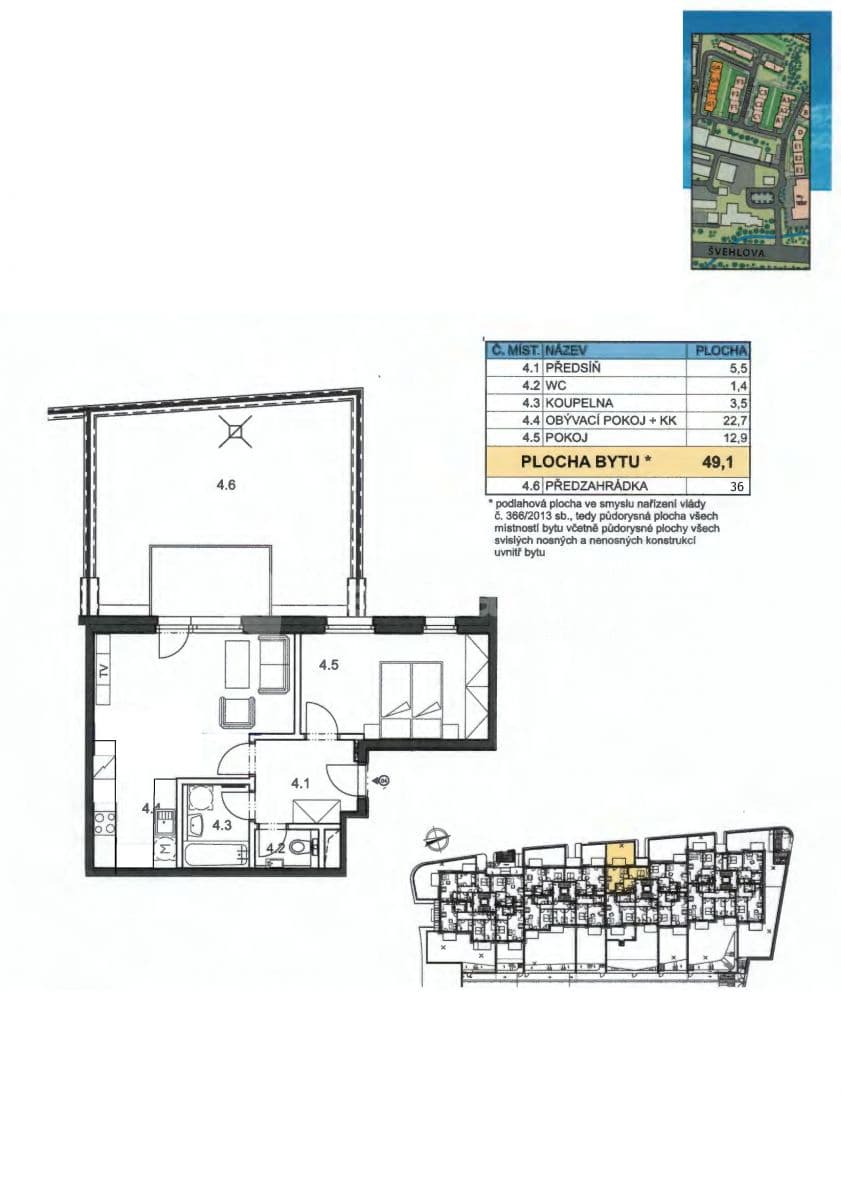
Plocha bytu je 49,5 + 36m2 teresa s prostorným sklepem a parkovacím stáním v podzemní garáži . Byt se nachází ve vyvýšeném přízemí (cca 3m nad zemí). Je situován na západ. Nájem 26000- Kč + 3500,- vyúčtovatelné zálohy (na služby, odpad, vodu, teplo atp.) + elektřina, internet na nájemce.
Vybaven je kuchyňskou linkou s dostatečnými úložnými prostory, myčkou, sporákem, indukční deskou, digestoří a vestavnou lednicí s mrazákem. Byt je dále vybaven skříní v předsíni a vestavnou skříní v ložnici. Mezi obrázky jsou návrhy některých variant jak dovybavit obývací pokoj. V okolí bytu je veškerá občanská vybavenost: Nákupní centrum Hostivař, multikino, plavecký bazén, fotbalové hřiště, bowling, sauna, fitness, lékárna. Nedaleko je základní i mateřská škola. Dopravní dostupnost MHD: tramvaj 22, 26 autobus,182, vlaková zástavka Praha Hostivař cca 8 minut chůzí, metro Skalka 2 stanice autobusem. Kauce 50 000,- při podpisu smlouvy + první nájem. Provize se neplatí. Nastěhování možné od 1.1.2026.
I am offering for rent an apartment in a new residential building located in a quiet area of Prague 10 – Hostivař.
The building is made of brick, has five floors, and includes underground parking spaces.
The apartment has a floor area of 49.5 m² plus a 36 m² terrace, a spacious cellar, and a parking space in the underground garage.
It is located on an elevated ground floor (approximately 3 meters above ground level) and faces west.
Rent: 26,000 CZK / month
Advance payments for utilities: 3,500 CZK (for services, waste collection, water, heating, etc.)
Electricity and internet are transferred to the tenant.
The apartment is equipped with a kitchen unit offering ample storage space, a dishwasher, oven, induction hob, extractor hood, and a built-in fridge with freezer.
There is also a wardrobe in the hallway and a built-in wardrobe in the bedroom.
Among the photos, you will find interior design proposals suggesting possible ways to furnish the living room.
The surrounding area offers full civic amenities: Hostivař Shopping Center, multiplex cinema, swimming pool, football field, bowling, sauna, fitness center, and pharmacy. A primary and kindergarten school are also nearby.
Public transport accessibility:
Tram lines: 22, 26
Bus lines: 182
Train station: Praha-Hostivař – about 8 minutes on foot
Metro station: Skalka – 2 bus stops away
Security deposit: 50,000 CZK (payable upon signing the lease) + first month’s rent.
No agency commission.
Available for move-in from January 1, 2026.
Property characteristics
| Available from | 01/01/2026 |
|---|---|
| Building construction | Brick |
| Fully furnished | Partly |
| Heating | Distance |
| Ownership | Personal |
| Location | Quiet area |
| Price per unit | CZK 531 / m2 |
| Condition | New-build |
|---|---|
| Layout | 2+kk |
| Floor | 1. floor |
| Listing ID | 648816 |
| EPC | B - Very economical |
| Usable area | 49 m² |
What does this listing have to offer?
| Basement: 5 m² | |
| Garage | |
| Parking | |
| Terrace: 36 m² |
| Front garden 36 m² | |
| Lift | |
| MHD 4 minutes on foot |
What you will find nearby
Interested?
Communicate all private owners and save CZK 26,000 on commissions.
Still looking for the right one?
Set up a watchdog. You will receive a summary of your customized offers 1 time a day by email. With the Premium profile, you have 5 watchdogs at your fingertips and when something comes up, they notify you immediately.




























