
Flat to rent Studio • 26 m² without real estatePřístavní, Prague - Holešovice
Interested?
Communicate all private owners and save CZK 14,990 on commissions.
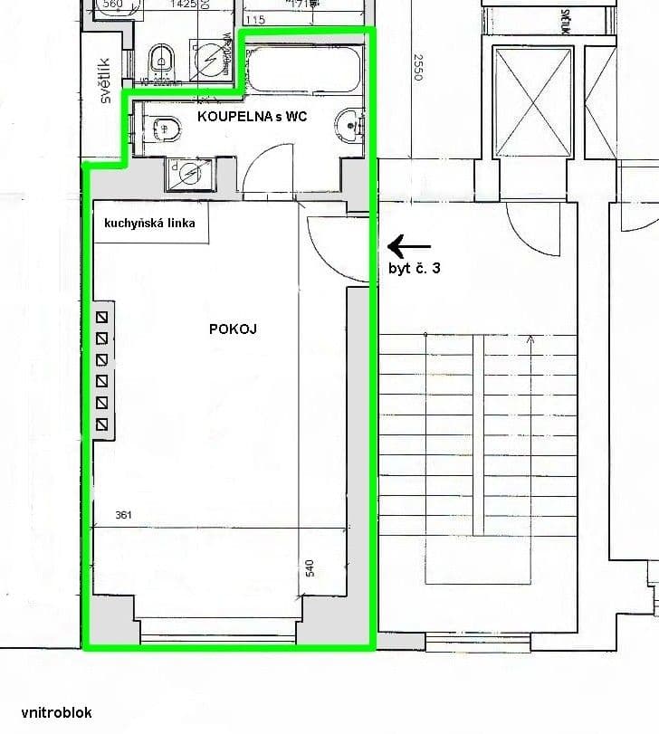
Velmi pěkný světlý byt 1+kk, 26 m2, v přízemí domu s okny do vnitrobloku (zde se jedná o 1. patro). Jedná se o nabídku přímo od majitele – neplatíte provizi!
Klidné bydlení v prvorepublikovém funkcionalistickém domě v ulici Přístavní 25, Praha 7-Holešovice.
Byt je po celkové rekonstrukci. V bytě je dřevěná podlaha kombinovaná s dlažbou, kuchyňská linka s el. varnou deskou, el. troubou a digestoří, koupelna s vanou, WC.
Byt je k dispozici od 1.5.2026. Hledáme pouze dlouhodobého nájemce – 1 osobu, nekuřáka, bez zvířat. První smlouva je na dobu určitou.
Poplatky (teplo, teplá voda, studená voda, osvětlení domu, úklid domu, odvoz odpadků) pro 1 osobu činí 2.590 Kč/měs. Elektřina a příp.internet se hradí zvlášť.
Kauce je ve výši 25.000 Kč.
Dům je po celkové rekonstrukci, celkem 14 bytů, na každém patře pouze dva byty. Velice slušní nájemníci. Klidná a rodinná atmosféra. V domě nejsou poskytovány žádné krátkodobé pronájmy!
Velmi dobrá dopravní dostupnost - ve vzdálenosti 100 m jsou tramvajové zastávky U Průhonu, Dělnická a Maniny, kde jezdí linky 1,3,5,10,12,15,25 a 54. Na metro B Palmovka, metro C Vltavská i metro C Nádraží Holešovice jsou to 2 zastávky tramvají.
Dobré parkování pro rezidenty před domem.
Hned vedle domu je divadlo La Fabrika, nedaleko DOX, SaSaZu, Vnitroblock, Hala 22 (farmářské trhy), galerie, apod. Perfektní čtvrť se strategickou polohou. V Holešovicích si užijete klid, řeku za rohem, parky v docházkové vzdálenosti, cyklostezky i všechny vymoženosti moderního města. Kulturní a gastronomické zážitky čekají na každém kroku. Do centra jen několik minut. Zastávky tramvají i metra jsou velice blízko.
RK prosím neodpovídat.
Property characteristics
| Available from | 01/05/2026 |
|---|---|
| Building construction | Brick |
| Fully furnished | Partly |
| Heating | Central |
| Ownership | Personal |
| Location | Quiet area |
| Price per unit | CZK 577 / m2 |
| Condition | Very good |
|---|---|
| Layout | Studio |
| Floor | 1. floor |
| Listing ID | 565798 |
| EPC | D - Less economical |
| Usable area | 26 m² |
What does this listing have to offer?
| MHD 2 minutes on foot |
What you will find nearby
Interested?
Communicate all private owners and save CZK 14,990 on commissions.
Still looking for the right one?
Set up a watchdog. You will receive a summary of your customized offers 1 time a day by email. With the Premium profile, you have 5 watchdogs at your fingertips and when something comes up, they notify you immediately.

















