
- 252 m²
- 252 m²
The historic farmhouse and farm garden are something special and a rare opportunity for purchase. The historic farmhouse is located in complete privacy, nestled in a mature cultural landscape amid fields and mixed woodland. A property for buyers who demand space, privacy, and versatility – beyond standardized living and usage concepts. This location and surrounding provide safety and confidence in these current times of crisis.
Built around 1890, the building conveys authenticity and durability. Its structural design offers an impressively flexible range of uses:
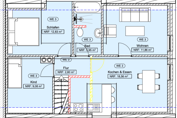
• Three separate residential units
• Generous ancillary spaces with potential for further development and use
• A solid structural base that can be modernized according to one’s requirements
Areas & Key Figures
• Plot: approx. 2,144 m²
• Living area: approx. 374 m²
Unit 1: approx. 174 m² (with a fireplace, conservatory, and terrace)
Unit 2: approx. 126 m² (with a stove and terrace)
Unit 3: approx. 75 m² (with a stove and terrace)
• Ancillary spaces: approx. 430 m²
Former stables, granary, garages, attic
• Fiber-optic connection available in all units
Freedom, scope for action, possibilities for development, and independence become real here!
Usage Perspectives:
The quality of this property lies in its versatility:
• Spacious single-family home with separate areas
• Multi-generational solution with clear separation
• Combination of living and working spaces
• Partial rental for refinancing purposes
• A property for communal living
Outdoor Area & Atmosphere:
The garden does not serve merely as an accessory but as an integral part of the living space:
• A mature farm garden with old trees
• A small pond
• Unobstructed sightlines
• High privacy due to its secluded location
The fact that it is located in a water protection zone ensures the long-term quality of the surroundings – an increasingly rare asset.
Location, Accessibility & Leisure:
Active community: rurally oriented, yet well connected
• Daily infrastructure available in the village and in the nearby neighboring communities of Sandesneben & Trittau;
• Leisure: equestrian facilities, golf clubs, soccer, swimming pool – natural lakes in Lütjensee, Großensee, Mölln, or Ratzeburg;
• Hamburg: approx. 50 km;
• Lübeck / Baltic Sea: approx. 30 km;
• Berlin: approx. 270 km;
• Access to the motorways A1, A21 & A24
A balanced mix of seclusion and accessibility.
Features:
• Terraces at all units
• 1 fireplace / 2 stoves
• Fiber-optic connection in all apartments
Energy: Oil, energy class H (certificate valid until 03.2026 available)
The property is well maintained yet partially in need of modernization – depending on one’s own standards and budget.
Target Audience:
This offer is directed at buyers who:
• Recognize and wish to utilize the potential of the space,
• Appreciate privacy, security, and nature,
• Want to implement flexible living and working models.
Viewings & Call-to-Action:
A property with this level of depth can only be truly appreciated in person.
Arrange an individual viewing appointment and see on-site whether this property fits your plans or dreams. A once-in-a-lifetime opportunity to purchase.
Contact & Conditions:
Private sale – Purchase price EUR 795,000 – no commission.
Takeover according to agreement with the owners.
Please refrain from contacting on behalf of intermediaries.
Anja Burmeister / Silke Burmeister
Mobile: +49 (0)151 19116840
Legal Notice:
Private sale: All information is provided to the best of our knowledge and is based on available documents as well as information provided by the owners. No liability is assumed for accuracy, completeness, or timeliness. Errors and prior sale are reserved.
Viewing: Access to the property and viewings are permitted only after personal arrangement and during a scheduled appointment together with the sellers.
| Age | Over 5050 years |
|---|---|
| Listing ID | 1018208 |
| Usable area | 374 m² |
| Total floors | 2 |
| Condition | Good |
|---|---|
| EPC | G - Extremely uneconomical |
| Land space | 2,144 m² |
| Price per unit | €2,125.67 / m2 |
| Garage | |
| MHD 3 minutes on foot |
| Parking | |
| Terrace |



Still looking for the right one?
Set up a watchdog. You will receive a summary of your customized offers 1 time a day by email. With the Premium profile, you have 5 watchdogs at your fingertips and when something comes up, they notify you immediately.