
Flat for sale 4+1 • 150 m² without real estateOhnivcova, Prague - Braník
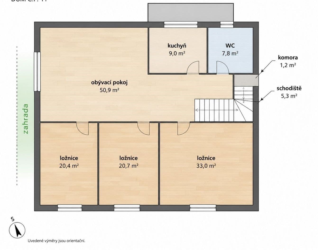
Nabízím k prodeji krásný prostorný a světlý byt 4+1 o celkové podlahové ploše 150 m², který se nachází v cihlové budově postavené na přelomu roku 1999/2000 (bytový dům i byt je ve velmi dobrém stavu). Byt se nachází přímo u zahrady, která slouží ke společnému užívání všech 4 bytových jednotek. Dům má dvě nadzemní podlaží (u vozovky) a dvě podzemní podlaží ve svahu, u kterého je právě zahrada. Tyto dvě jednotky sdílí společný hlavní vstup se zádveřím. V dalších bytových jednotkách jsou milé rodiny s dětmi a tento byt je tak vhodný pro podobně založené majitele, kteří hledají klid vesnice na pomezí pražského Braníka a Hodkoviček s perfektní lokalitou v srdci Prahy.
Interiér je vybavený, ale nemusí být - což umožňuje novým majitelům přizpůsobit si prostor dle vlastních představ a vkusu. Kuchyň a koupelna je plně funkční, ale v rámci modernizace by si zasloužila rekonstrukci. V rámci dispozice domova si můžete užít dostatek prostoru pro rodinný život či práci na dálku, přičemž každá místnost byla řešena s důrazem na funkčnost. Oblast je velmi klidná a prostor nabízí vysokou míru soukromí.
K dispozici je rovněž garáž, což výrazně přispívá k pohodlí a bezpečnosti provozu vozidla. Součástí nabídky je také sklep o velikosti 3 m², který poskytuje dostatek místa pro uskladnění sezónních věcí či dalších drobností.
Těším se na Vaši zprávu a možnost dohodnout si osobní prohlídku. Nemovitost je k dispozici téměř ihned, ideálně od června 2026.
I am offering for sale a spacious and bright 4+1 apartment with a total floor area of 150 m², located in a brick building constructed at the turn of 1999 and 2000 (both the building and the apartment are in very good condition). The apartment is situated right next to a garden that is shared by all 4 apartment units. The building has two above-ground floors (at street level) and two underground floors in a slope, where the garden is located. In the other apartment units live friendly families with children, making this apartment ideal for similarly minded owners seeking a tranquil village atmosphere on the outskirts of Prague’s Braník and Hodkovičky.
The interior is furnished, though not necessarily permanently—allowing new owners to adapt the space to their own ideas and tastes. The kitchen and bathroom are fully functional, but as part of modernization, they could benefit from renovation. With the home’s layout, you can enjoy ample space for family life or remote work, with each room designed with a focus on functionality. The area is very quiet and the space offers a high degree of privacy.
A garage is also available, which significantly enhances the convenience and safety of vehicle operation. Included in the offer is a cellar measuring 3 m², providing plenty of room for storing seasonal items or other small belongings.
I look forward to your message and the opportunity to arrange a personal viewing. The property is almost immediately available, ideally from June 2026.
Property characteristics
| Available from | 01/06/2026 |
|---|---|
| Building construction | Brick |
| Fully furnished | Partly |
| Listing ID | 1017228 |
| EPC | D - Less economical |
| Usable area | 150 m² |
| Condition | Very good |
|---|---|
| Layout | 4+1 |
| Floor | 1. floor out of 4 |
| Ownership | Personal |
| Location | Quiet area |
| Price per unit | CZK 133,266.67 / m2 |
Are you choosing a apartment?
Make sure you have all the important information!
What does this listing have to offer?
| Basement: 3 m² | |
| Garage |
| Front garden 280 m² | |
| Parking |
What you will find nearby
Still looking for the right one?
Set up a watchdog. You will receive a summary of your customized offers 1 time a day by email. With the Premium profile, you have 5 watchdogs at your fingertips and when something comes up, they notify you immediately.























