Plot for sale • 170 m² without real estateDachau Dachau Bayern 85221
Dachau Dachau Bayern 85221Public transport 2 minutes of walkingRealize your dream of owning your home.
Quietly situated yet perfectly central, this 170 m² property—currently occupied by a building slated for demolition—is fully serviced.
A construction partner for the northern half has already been found and the purchase has been notarized.
• Property approximately 170 m² in size, located on a play street
• Demolition costs for the single-family home are covered by the seller
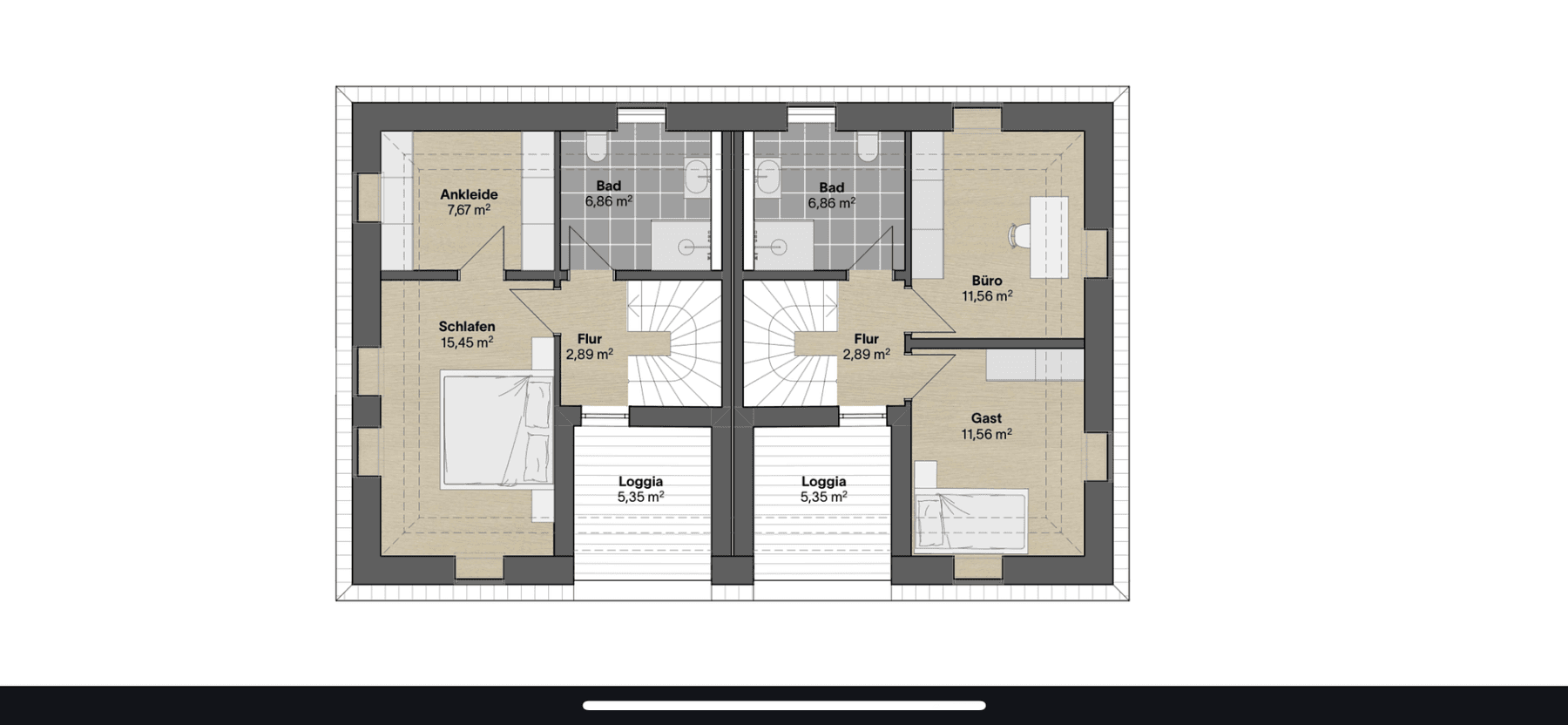
• Building dimensions according to the approved preliminary decision: 9.43 x 7.28 m
• Living area for a semi-detached house as per the approved preliminary building decision: approximately 145 m²
(basement, ground floor, upper floor, attic with mansard roof)
• Choice between a free developer or a general contractor
• Subdivision applied for and costs included
• Purchase price of €340,000, commission-free
TOP LOCATION – Dachau-Oberaugustenfeld
An amazing property in a central location. The lot is currently occupied by an old, vacant building that will soon be demolished. The fully serviced building plot is situated in a highly desirable and upscale residential area of Dachau-Oberaugustenfeld.
Fulfill your dream of homeownership on this small 170 m² plot with a high potential for residential build-up.
A binding preliminary building decision is already in place, although a building permit has not yet been applied for. Our architects are happy to work with you to handle this and design your individual living dream.
Numerous shops, doctors, a kindergarten, an elementary school, bus stops, and much more are within a few minutes’ walk.
Additionally, you can reach the train station in no time, which connects you directly to Munich via S-Bahn line 2. Federal highways 304 and 471 as well as motorways 8, 92, and 99 are conveniently within reach.
The large district town of Dachau, with its approximately 48,000 inhabitants, boasts a very long and rich cultural history. At the same time, the city offers an extensive array of leisure activities and ensures a high quality of life.
Dachau Castle, with its unique castle park, provides pedestrians with an unforgettable view of the Alpine panorama.
Recreational areas are quickly and easily accessible, as are the state capital Munich (about 19 km to the center via B471, S-Bahn S2), various motorways (A8, A9, A99, and A92), and Munich Airport Franz-Josef-Strauß.
This vibrant city offers a wide variety of shops and shopping opportunities, an extensive range of schools (elementary and secondary schools, a grammar school, two high schools, and a private business school), numerous kindergartens, and a large hospital. The shopping street Münchner Straße is just a few minutes’ walk away, inviting you to relax and shop, while many excellent restaurants and street cafés cater to your culinary needs. An industrial area and extensive sports facilities complete the perfect infrastructure.
Property characteristics
| Listing ID | 1016537 |
|---|---|
| Price per unit | €2,000 / m2 |
| Land space | 170 m² |
|---|
What does this listing have to offer?
| MHD 2 minutes on foot |
What you will find nearby
Still looking for the right one?
Set up a watchdog. You will receive a summary of your customized offers 1 time a day by email. With the Premium profile, you have 5 watchdogs at your fingertips and when something comes up, they notify you immediately.





