
House for sale 6+1 • 140 m² without real estateHoelscherweg 5 Darmstadt Arheilgen Hessen 64291
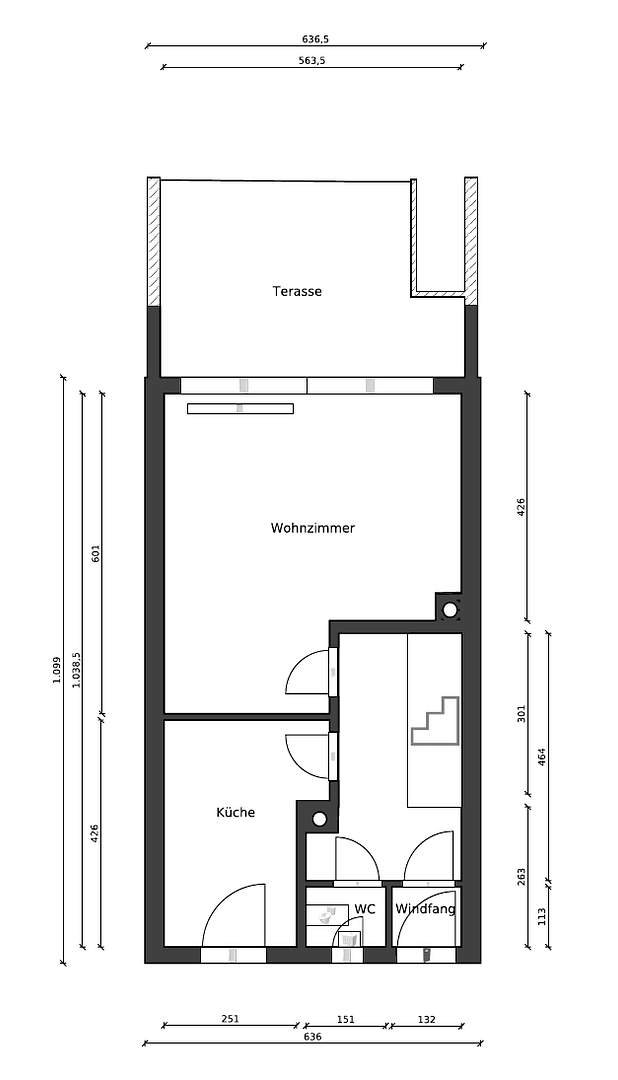
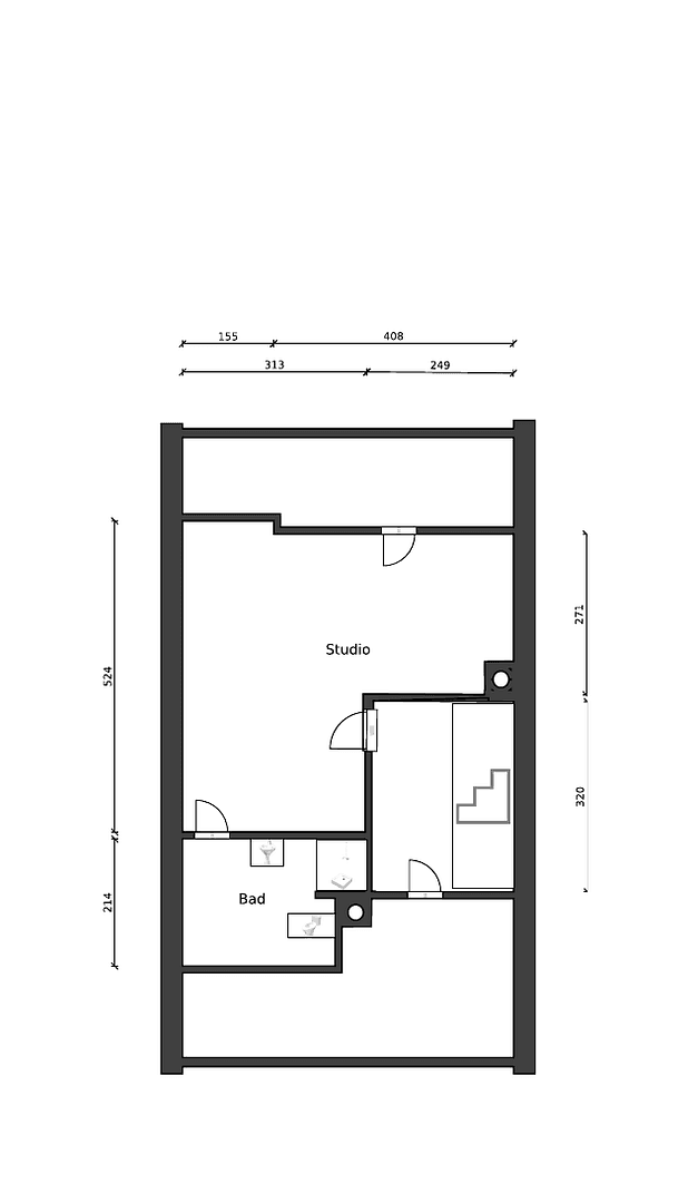
Hoelscherweg 5 Darmstadt Arheilgen Hessen 64291Public transport 2 minutes of walking • GarageFor sale is a spacious terraced mid-house built in solid construction dating from 1981, with a full basement. With a living area of approximately 140 m² and a total of 6 rooms, this property offers exceptionally ample space for families, couples, or a combination of living and home office. The building spans four levels, including a fully developed attic.
It is particularly noteworthy that this is a freehold property; the original heritable building right has already been replaced. A special highlight for future security is the roof renovation carried out in 2025, which included a new covering and insulation. The property is vacant and can be taken over promptly after the formal approval procedures are completed.
Before contacting us: We have created an extremely detailed online dossier for you with all the floor plans, consumption data, and an extensive photo gallery.
Please review all the documents first at: haus-arheilgen.de
We have a travel time of 2 hours and coordinate the viewing appointments collectively. Please send your inquiry directly through the portal or to kontakt(at)haus-arheilgen.de.
IMPORTANT: The sale is conducted under guardianship. Since the sale requires the approval of the guardianship court, please expect a processing time of about 2 to 3 months between the notary appointment and the final legal enforceability (a prerequisite for the payment of the purchase price).
We look forward to your inquiry, provided that the above-mentioned conditions (in particular the procedural processing time) are acceptable to you.
The property is located in an established, family-friendly residential area in the popular Darmstadt district of Arheilgen. The location is characterized by excellent infrastructure: tram, bus, and S-Bahn are accessible within a few minutes’ walk and offer perfect connections to downtown Darmstadt as well as the entire Rhine-Main region.
There are a variety of shopping opportunities, discount stores, pharmacies, and numerous specialists in the immediate vicinity. Despite the central connection, you can reach the adjacent forest in just a few minutes, which provides ideal conditions for relaxation, walks, and sports activities.
The house has been lovingly maintained over the years and offers features that combine both comfort and recreational value:
- Sanitary: The house has a total of three showers (on the upper floor, attic, and basement) as well as toilets on all four levels.
- Technology: A gas condensing boiler system (2002) and a mini PV system (balcony power plant) on the roof support energy efficiency.
- Wellness & Leisure: In the basement, there is a private sauna and a bar area for social evenings.
- Outdoor Area: The south-facing terrace on the ground floor is equipped with an electric awning and provides direct access to the garden. A glazed balcony on the upper floor complements the offering.
- Parking: The property includes its own garage, which is conveniently located just a few minutes’ walk away.
Property characteristics
| Age | Over 5050 years |
|---|---|
| Layout | 6+1 |
| EPC | E - Wasteful |
| Land space | 216 m² |
| Condition | Good |
|---|---|
| Listing ID | 1015969 |
| Usable area | 140 m² |
| Price per unit | €4,178.57 / m2 |
What does this listing have to offer?
| Balcony | |
| Garage | |
| Terrace |
| Basement | |
| MHD 2 minutes on foot |
What you will find nearby
Still looking for the right one?
Set up a watchdog. You will receive a summary of your customized offers 1 time a day by email. With the Premium profile, you have 5 watchdogs at your fingertips and when something comes up, they notify you immediately.





















