
Flat for sale 2+kk • 55 m² without real estateZakšínská, Prague - Střížkov
RK nekontaktovat. Psát správu. Čislo neplatné.
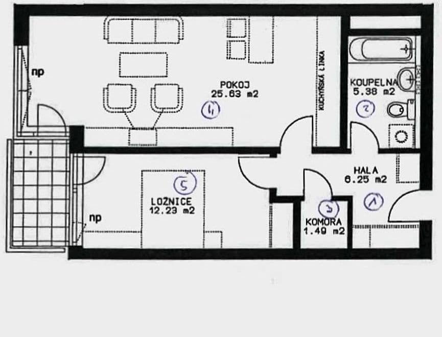
Nabízím k prodeji světlý a prakticky řešený byt 2+kk o velikosti cca celkem cca 54,8 m² (včetně balkonu), situovaný ve 2. nadzemním podlaží moderního rezidenčního projektu FINeP – Park Prosek, Praha 9.
Byt je orientovaný na západ, díky čemuž nabízí dostatek přirozeného světla a příjemnou atmosféru zejména v odpoledních hodinách.
Dispozice a vybavení:
• obývací pokoj s kuchyňskou linkou
• samostatná ložnice
• koupelna s vanou
• zasklený balkon (cca 3,8 m²)
• nová kuchyňská linka v záruce
• filter na vodu / revezní osmóza
• praktické dispoziční řešení
Garáž:
• možnost dokoupení garážového stání
Lokalita:
Velmi klidná a oblíbená část Prahy 9 – Střížkov.
V docházkové vzdálenosti metro C – Střížkov (cca 8 minut), kompletní občanská vybavenost v okolí (obchody, restaurace, školy, školky).
Milovníci přírody ocení blízkost parků – Park Přátelství a Ďáblický háj.
Ideální jako:
• vlastní bydlení
• investice na pronájem (výborná poptávka v lokalitě)
Property characteristics
| Available from | 31/07/2026 |
|---|---|
| Building construction | Mixed |
| Fully furnished | Partly |
| Listing ID | 1015508 |
| EPC | B - Very economical |
| Usable area | 55 m² |
| Condition | Very good |
|---|---|
| Layout | 2+kk |
| Floor | 2. floor out of 7 |
| Ownership | Personal |
| Location | Quiet area |
| Price per unit | CZK 150,909.09 / m2 |
Are you choosing a apartment?
Make sure you have all the important information!
What does this listing have to offer?
| Garage | |
| Loggia balcony: 3.8 m² | |
| MHD 3 minutes on foot |
| Lift | |
| Parking |
What you will find nearby
Still looking for the right one?
Set up a watchdog. You will receive a summary of your customized offers 1 time a day by email. With the Premium profile, you have 5 watchdogs at your fingertips and when something comes up, they notify you immediately.














