
Flat for sale 4+kk • 115 m² without real estateGrohova, Brno - Veveří, Jihomoravský Region
Nadstandardní byt 4+kk po kompletní rekonstrukci v jedné z nejlukrativnějších lokalit v Brně na ulici Grohova.
Rekonstrukce byla vedena ve spolupráci se studiem HEARTWORK s důrazem na kvalitu materiálů. Na podlahách je lepená dřevěná dubová podlaha, dveře jsou lakované o výšce 2,5 metru, ve všech pokojích je příprava na klimatizační jednotky, kuchyně je velkorysých rozměrů, se zapuštěnou 80 cm indukční varnou deskou, spíží, a spotřebiči MIELE. Pracovní deska z materiálu Technistone, který je použit i na parapetech. Za kuchyní je na zdi dekorační nasvícená cementová stěrka. V koupelně je sprchový kout i nádherná vana. Sanita Hansgrohe. Obývací pokoj vybaven OLED TV Sony (208cm, 4k dolby atmos) v ceně 100.000 Kč. Příprava na pračku a sušičku v koupelně ve výklenku.
Vytápění a ohřev vody novým plynovým kotlem, okna jsou plastová.
Nad prostorem koupelnou je prakticky vyřešený úložný prostor se vstupem z chodby.
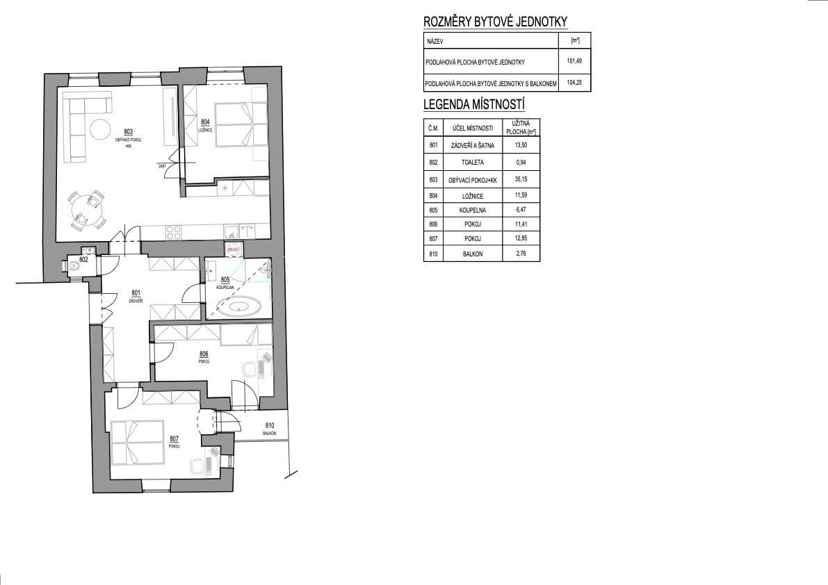
Celková užitná plocha 115 m2 (z toho podlahová plocha bytu 101,49 m2, balkon do vnitrobloku 2,76 m2, sklep 10,81m2). Velký obývací pokoj 35 m2 vedle kterého je ložnice 11,6 m2. Další 2 pokoje jsou prakticky umístěné na druhé straně bytu, což zajištuje soukromí (i akustické), z těchto pokojů je výstup na balkon. PŮDORYS je přiložený ve fotografiích.
Byt je krásně slunečný a světlý. Jižní orientace - obývací pokoj + ložnice. Severní orientace pokoje do vnitrobloku sever, zde se však odráží světlo ze zdi domu ve vnitrobloku a slunce zde tím pádem svítí také.
Měsíční náklady jsou celkem 3.465 Kč (Fond oprav 2 308 Kč, vodné stočné 400 Kč, úklid 180 Kč, komíny 80 Kč, společná elektřina 26 Kč, ostatní služby 117 Kč, pojištění 119 Kč, správní poplatek 235 Kč).
Samotná ulice Grohova má jednosměrný provoz s krásnými vzrostlými stromy, které jí dodávají příjemnou atmosféru. Veveří zároveň nabízí rychlou dostupnost centra, blízkost služeb, parků i dětských hřišť, které této části Brna dává dlouhodobě pevné místo mezi vyhledávanými adresami.
Property characteristics
| Available from | 21/04/2026 |
|---|---|
| Building construction | Brick |
| Fully furnished | Partly |
| Listing ID | 1015091 |
| EPC | G - Extremely uneconomical |
| Usable area | 115 m² |
| Condition | After reconstruction |
|---|---|
| Layout | 4+kk |
| Floor | 3. floor out of 4 |
| Ownership | Municipal |
| Location | Centre |
| Price per unit | CZK 140,000 / m2 |
Are you choosing a apartment?
Make sure you have all the important information!
What does this listing have to offer?
| Balcony: 2.4 m² |
| Basement: 10.8 m² |
What you will find nearby

Flat for saleSkřivanova, Brno - Ponava, Jihomoravský Region- 4+1
- 110 m²
CZK 14,000,000CZK 15,000,000
Save CZK 1,000,000
Flat for saleNerudova, Brno - Veveří, Jihomoravský Region- 4+kk
- 85 m²
CZK 13,699,900CZK 13,999,900
Save CZK 300,000
Still looking for the right one?
Set up a watchdog. You will receive a summary of your customized offers 1 time a day by email. With the Premium profile, you have 5 watchdogs at your fingertips and when something comes up, they notify you immediately.

















