
Flat to rent 3+1 • 94 m² without real estateAmerstorfferstr. 29 München Obergiesing Bayern 81549
Amerstorfferstr. 29 München Obergiesing Bayern 81549Public transport 4 minutes of walking • Parking • GarageThis stunning and spacious 3-room apartment with garden, balcony, garage, parking space, and a large hobby room will be available starting mid-May.
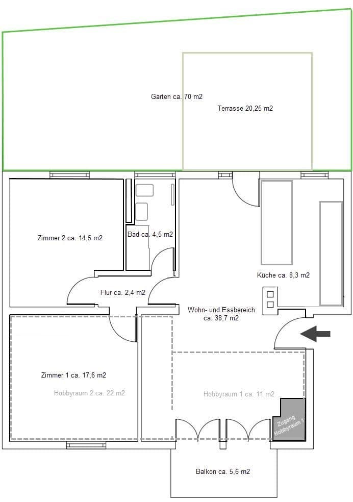
Through the entrance area you enter the spacious, light-filled living and dining area with wide floor-to-ceiling windows. On the west side there is a large balcony with evening sun, and on the east side a direct access to your own, quiet garden featuring a high-quality terrace made of Italian designer tiles. For added comfort, a robotic lawn mower is provided. The open kitchen impresses with a high-quality designer island kitchen equipped with top-of-the-line branded appliances and an elegant natural stone countertop.
The apartment includes two bright bedrooms (approximately 17 m² and approximately 14 m²). The bright daylight bathroom convinces with a spacious walk-in wellness shower and a high-quality glass partition. All rooms, including the hobby rooms, have underfloor heating. A space-saving staircase provides direct access to the basement with two hobby rooms, one of which has a window; through the hobby rooms there is a private access to the cellar. Electric shutters are fitted to all windows as well as the balcony and garden doors. Thanks to the energy-efficient construction and modern technology, the additional costs remain pleasantly low at approximately €210.
A parking space right in front of the door and a cellar storage room with a window are included (in addition to the hobby rooms). Exclusive use of the garden, parking space, and garage is included. The garage is equipped with a high-current connection (suitable for a wallbox) and a water connection.
Living area: 85.7 m² plus a proportional share of the balcony and terrace = 93.5 m². Balcony approximately 5.6 m², terrace approximately 20 m². Garden with terrace approximately 70 m². The hobby rooms (approximately 11 m² and 22 m²) are not classified as living spaces, but offer versatile usage possibilities. In the large hobby room, Bulthaup wall-mounted cabinets are installed.
The apartment is currently in its final finishing stages and will be handed over in high-quality condition.
The apartment is located in the south of Munich in the popular district of Obergiesing on a quiet residential street. Perlacher Forst and the Isar River are reachable within a few minutes and offer great recreational value in a green setting.
At the same time, there is excellent connectivity: The U-Bahn station U1 Mangfallplatz is within walking distance (then about 10 minutes to the main station). Bus lines 139, 220, and N75 are also quickly accessible.
Excellent connections to the A8 and the Mittlerer Ring. Shopping facilities, schools, and kindergartens, including the European School, are in the immediate vicinity.
Highlights:
• High-quality, completely renovated, energy-efficient apartment with your own garden (~70 m²) + terrace + balcony
• Open living kitchen with high-quality designer kitchen and premium appliances (induction cooktop, AEG steam convection oven, AEG combi microwave, AEG fully automatic coffee machine, Bosch fridge/freezer combination, Bosch dishwasher, Blanco water treatment system for filtered still and sparkling water)
• Modern bathroom with a floor-level walk-in shower featuring a Grohe wellness rain shower and glass partition, Villeroy & Boch sanitary fittings, large-format tiles from Cotto D'Este, skylight
• Extra wide oak parquet planks and Italian large-format tiles
• Underfloor heating in all rooms including the hobby rooms
• Large hobby room (approximately 33 m² total)
• Floor-to-ceiling windows with electric shutters
• New energy-efficient windows and new electrical systems
• Electric shutters on all windows, balcony, and garden door
• Cable, DSL, and fiber-optic connections
• Parking space right outside the door + garage with high-current connection (suitable for a wallbox) and water connection
• Central heating (district heating)
• Gardena robotic lawn mower in the garden
• Low additional costs (~€210)
• Well-maintained residential complex
The photos show the current progress of the construction; completion will be achieved shortly.
Viewings are possible from May 1st. If there is urgent interest, an appointment may be arranged as early as April 26th by prior agreement.
Property characteristics
| Age | Over 5050 years |
|---|---|
| Condition | After reconstruction |
| Listing ID | 1014799 |
| Usable area | 94 m² |
| Available from | 15/05/2026 |
|---|---|
| Layout | 3+1 |
| EPC | B - Very economical |
| Price per unit | €27.13 / m2 |
What does this listing have to offer?
| Balcony | |
| Garage | |
| MHD 4 minutes on foot |
| Basement | |
| Parking | |
| Terrace |
What you will find nearby
Still looking for the right one?
Set up a watchdog. You will receive a summary of your customized offers 1 time a day by email. With the Premium profile, you have 5 watchdogs at your fingertips and when something comes up, they notify you immediately.


















