
Flat for sale 4+1 • 127 m² without real estateMünchen Obergiesing Bayern 81549
München Obergiesing Bayern 81549Public transport 2 minutes of walking • GarageNo broker inquiries!
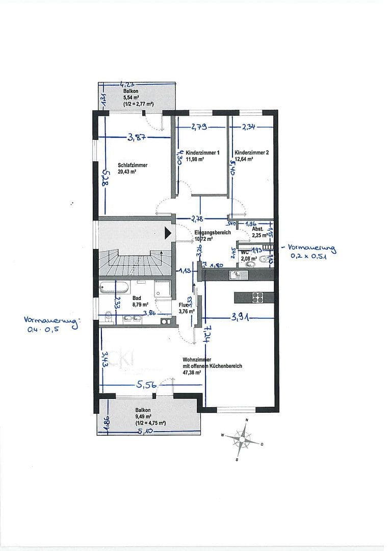
We are selling our very well-proportioned 4-room apartment with approximately 127 m² of living space on the 1st floor of a small multi-family house with only three owners in total.
The focal point of the apartment is the large, south-facing living and dining area (approx. 47 m²) with real wood parquet. From here, you have direct access to the approximately 10 m² south balcony. The high-quality fitted kitchen (Miele and Bora appliances; stone countertop) is integrated openly and is sold as an extra for €15,000.
On the north side, there are three additional rooms, also with real wood parquet, which are ideal as bedrooms, offices, or children’s rooms. One of these rooms has access to a second balcony facing the shared garden.
The spacious bathroom is equipped with a shower, whirlpool bathtub, and electric underfloor heating. Additionally, there is a separate guest WC as well as a small storage room (with washing machine connection) within the apartment.
The apartment was fully renovated in 2019 (including electrical and sanitary installations), among other things with triple-glazed windows, electrically operated external shutters, and a modern lighting system with dimmable ceiling spots. The balconies were renewed in 2025/2026.
The central gas heating was replaced in 2023 and updated to the latest state-of-the-art technology (in combination with solar thermal systems on the roof, hot water storage tank, etc.). The energy certificate has not yet been updated!
Additionally, the apartment includes:
- Two basement rooms (marked in red on the floor plan): one is approximately 11 m², the other about 24 m² (including its own kitchen & bathroom) and a large south-facing daylight window.
- A garage with exclusive usage rights (purchase price: an additional €25,000)
- A co-ownership share of 3/8 in the 800 m² property with a lovely shared garden
Move-in date: by agreement (the apartment is currently still occupied by us, which is why there are no more pictures).
If you are interested, we would appreciate a short message with a few details about yourself. Viewings are, of course, possible by arrangement.
The apartment is located in a pleasantly quiet area in Obergiesing, right on the border to Harlaching and Fasangarten.
1 km on foot/by bike to the U1 Mangfallplatz station. Kindergarten/daycare within immediate vicinity, as well as a pharmacy, doctors, and daily necessities stores. Bus lines 220 and 135 reachable on foot.
Property characteristics
| Age | Over 5050 years |
|---|---|
| Layout | 4+1 |
| Listing ID | 1014344 |
| Price per unit | €8,653.54 / m2 |
| Condition | After reconstruction |
|---|---|
| Floor | 1. floor out of 2 |
| Usable area | 127 m² |
What does this listing have to offer?
| Balcony | |
| Garage |
| Basement | |
| MHD 2 minutes on foot |
What you will find nearby
Still looking for the right one?
Set up a watchdog. You will receive a summary of your customized offers 1 time a day by email. With the Premium profile, you have 5 watchdogs at your fingertips and when something comes up, they notify you immediately.
















