
House for sale 5+1 • 150 m² without real estateZwinglistr. 11, , Brandenburg
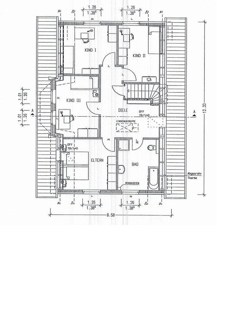
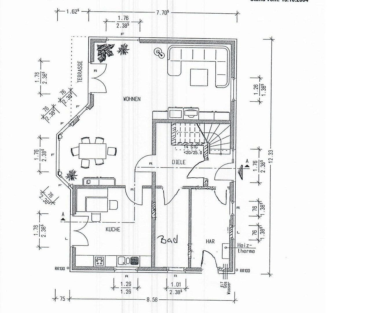
Zwinglistr. 11, , BrandenburgPublic transport 3 minutes of walking • ParkingHouse for sale – 570 m² plot, 150 m² living space, 2 residential units possible
We are selling our house in a quiet and attractive location, as we have decided to leave Germany and start afresh.
The house offers plenty of space, flexibility, and great potential – ideal for families, multigenerational living, or use as two separate residential units.
Key Data:
• Plot: approx. 570 m²
• Living space: approx. 150 m²
• 2 floors
• Both floors can be used separately as independent apartments
• Quiet location
Special Features:
The garden has already been partly redesigned, including a prepared pool project.
Pool (in preparation):
• approx. 6.5 m x 3.5 m x 1.35 m
• Pit fully excavated
• Floor concreted (approx. 25 cm thick, with 2 layers of reinforcement)
• Side walls prepared with metal grilles
Note:
The garden has not yet been fully completed, as a complete redesign was planned.
This provides buyers with the opportunity to implement everything according to their own ideas.
Property characteristics
| Age | Over 5050 years |
|---|---|
| Listing ID | 1014061 |
| Usable area | 150 m² |
| Total floors | 2 |
| Layout | 5+1 |
|---|---|
| EPC | E - Wasteful |
| Land space | 570 m² |
| Price per unit | €6,326.67 / m2 |
What does this listing have to offer?
| Parking | |
| Terrace |
| MHD 3 minutes on foot |
What you will find nearby
Still looking for the right one?
Set up a watchdog. You will receive a summary of your customized offers 1 time a day by email. With the Premium profile, you have 5 watchdogs at your fingertips and when something comes up, they notify you immediately.











