
Flat for sale 3+1 • 94 m² without real estateBayreuth Bayreuth Bayern 95447
Here is the English translation of the text:
With this exposé, we present to you an attic with expansion potential in the attractive location of Bayreuth. The property is situated in a very well-maintained multi-family house that is heated by an oil central heating system built in 2024.
In the years 2025/2026, the current owner carried out a comprehensive upgrade of the staircase. The walls, ceilings, stairs, and apartment entrance doors were renovated and repainted. Additionally, the main entrance door will soon be completely replaced, further emphasizing the high-quality overall impression of the property.
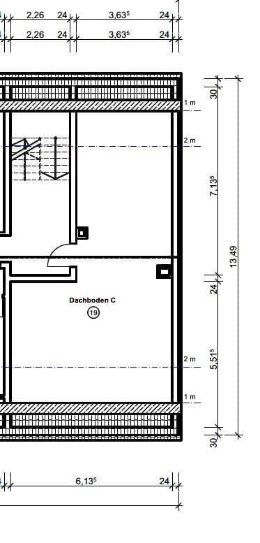
The attic is particularly impressive due to its generous gable height and offers excellent conditions for a customized conversion. In total, an expansion could provide up to approximately 94 m² of rentable space (including the attic space above).
Approval for the expansion from the homeowners’ association is already in place and is bindingly regulated in the condominium declaration of the multi-family house. Any necessary building permit for the expansion must be obtained independently by the buyer from the city.
In addition to the attic, if required, one individual garage in the courtyard of the multi-family house can be purchased (at an additional cost of €12,000 per garage).
The attic also comes with its own basement compartment.
The property is located in a very well-maintained multi-family house in the beautiful and sought-after Bayreuth.
The location combines the advantages of a city center with a high residential quality: shopping opportunities, restaurants, and leisure facilities are all within walking distance, ensuring a high level of living comfort.
Public transportation is easily accessible.
• Oil central heating system, built in 2024
• Ideally expandable attic
• Staircase revitalized in 2025
• Building entrance door renewed in 2026
• Multi-family house built in 1969
• No heritage protection
• Central location (a few minutes to the old town)
• Optimal connection to public transportation
• Modern floor plan design possible
• 2nd upper floor
• Own basement compartment
Property characteristics
| Age | Over 5050 years |
|---|---|
| Layout | 3+1 |
| Listing ID | 1013950 |
| Usable area | 94 m² |
| Available from | 19/04/2026 |
|---|---|
| Floor | 2. floor |
| EPC | E - Wasteful |
| Price per unit | €734.04 / m2 |
What does this listing have to offer?
| Balcony | |
| MHD 2 minutes on foot |
| Basement | |
| Terrace |
What you will find nearby
Still looking for the right one?
Set up a watchdog. You will receive a summary of your customized offers 1 time a day by email. With the Premium profile, you have 5 watchdogs at your fingertips and when something comes up, they notify you immediately.




