
Flat for sale 2 bedroom • 58 m² without real estatePreziosastraße 27 München Johanneskirchen Bayern 81927
This bright, attractive two-room apartment on the third floor of a well-maintained multi-family building with an elevator impresses with its excellent layout, its bright west-facing orientation, and its quiet, sought-after location in Munich-Bogenhausen. With approximately 57.3 m² of living space, it offers optimal conditions for owner-occupiers, couples, or singles.
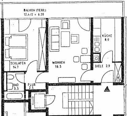
The spacious living room, with direct access to the sunny, 12 m² west balcony overlooking greenery, forms the centerpiece of the apartment. Together with the bedroom—also west-facing towards the quiet green area and with direct access to the balcony—it creates a particularly friendly and light-filled atmosphere. The existing fitted kitchen, the modern bathroom with bathtub and shower facility, as well as a practical built-in closet in the hallway, all underline the functional and well-thought-out layout. A washing machine connection is available in the kitchen.
The apartment is in well-maintained condition. An individual basement storage room is also part of the offer, providing additional convenience and practical storage space.
An outdoor parking space, secured by a barrier, can also be purchased or rented.
The purchase price for this attractive apartment is €445,000 (negotiable basis). There is no broker or commission involved. The apartment is managed by a property management company and the monthly service charge is €240.
Due to its desirable location in Munich-Bogenhausen, the thoughtful layout, and its excellent suitability for both owner-occupiers and investors, this property represents a great opportunity. The stated price serves as a basis for negotiation in order to offer qualified and serious buyers a fair and market-oriented purchase possibility. Offers will be gladly considered.
If you are interested or have any questions regarding the apartment, please feel free to contact me. I would be happy to arrange a personal viewing appointment and am available at any time for further information.
The apartment is located in Altbogenhausen in Johanneskirchen, a popular and quiet residential area with a good mix of green spaces and urban infrastructure. The connection to public transportation, the city center, as well as all shopping facilities, schools, kindergartens, leisure facilities, and doctors is excellent!
Specific stops, distances, and locations:
- Bus stop "Bichlhofweg" – bus line 154, approximately a 6-minute walk away
- Tram stop "Fritz-Meyer-Weg" – approximately a 5-minute walk away
- S-Bahn Johanneskirchen (airport line) – approximately an 8-minute walk away
- U-Bahn Arabellapark (U4) – quickly and conveniently accessible by bus or tram
- Supermarkets (REWE and EDEKA) – approximately a 6-minute walk away
- Additional shopping facilities, banks, and restaurants are within walking distance
- Englischer Garten Nord – 1.5 km
(Note: Bus line 154 runs towards Nordbad and directly to the "Chinese Tower.")
Property characteristics
| Age | Over 5050 years |
|---|---|
| Layout | 2 bedroom |
| Listing ID | 1013579 |
| Usable area | 58 m² |
| Condition | After reconstruction |
|---|---|
| Floor | 3. floor out of 8 |
| EPC | D - Less economical |
| Price per unit | €7,551.72 / m2 |
What does this listing have to offer?
| Balcony | |
| Lift | |
| MHD 6 minutes on foot |
| Basement | |
| Parking |
What you will find nearby

Flat for saleTheresienbogen 23 Unterschleißheim Unterschleißheim Bayern 85716- 2 bedroom
- 61 m²
€472,000 + €280



Still looking for the right one?
Set up a watchdog. You will receive a summary of your customized offers 1 time a day by email. With the Premium profile, you have 5 watchdogs at your fingertips and when something comes up, they notify you immediately.











