
Flat to rent 3+1 • 76 m² without real estateJordana Jovkova, Prague - Modřany
Jordana Jovkova, Prague - ModřanyPartially equipped • Lift • Garage • Cellar 5 m² • Loggia 3 m²Liability insurance requiredInterested?
Communicate all private owners and save CZK 35,000 on commissions.
Nabízím k dlouhodobému pronájmu prostorný, světlý a velmi prakticky řešený byt o dispozici 3+1 s podlahovou plochou 76 m², situovaný v klidné a vyhledávané části Prahy 12 – Modřany, v ulici Jordana Jovkova. Byt se nachází jen pár kroků od Sofijského náměstí a v těsné blízkosti oblíbené Modřanské rokle.
Byt je umístěn v 6. patře udržovaného panelového domu se 2 výtahy, což zajišťuje pohodlné bydlení i každodenní komfort. K bytu náleží lodžie a sklep. Součástí pronájmu je rovněž garáž v protější ulici Nikoly Vapcarova, což je v této lokalitě významná výhoda.
Byt prošel v roce 2026 kompletní rekonstrukcí a je vybaven novou kuchyňskou linkou se spotřebiči – lednicí s mrazákem, myčkou, elektrickou troubou, varnou deskou a digestoří. Nabízí tak moderní, čisté a funkční bydlení. Díky své velikosti a dispozici je ideální volbou pro rodinu, pár i jednotlivce, kteří hledají dostatek prostoru v příjemném a klidném prostředí.
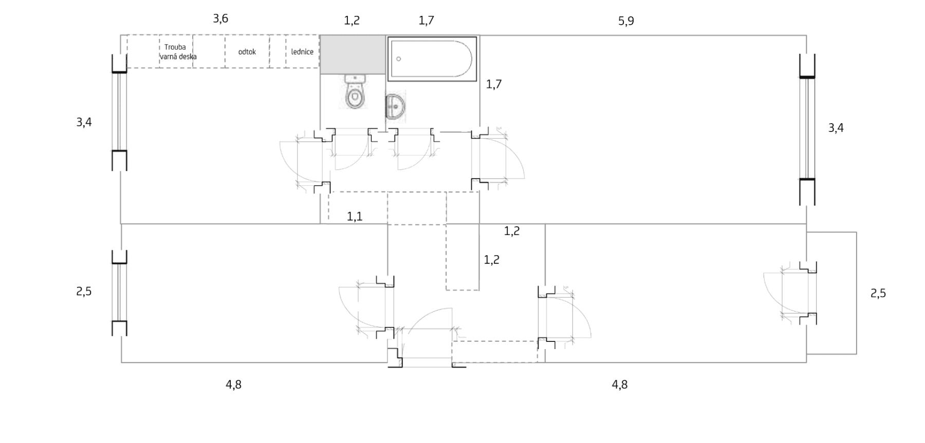
Dispozice bytu zahrnuje samostatnou kuchyni, prostorné pokoje, koupelnu s vanou, samostatné WC a lodžii přístupnou z ložnice. Velkou předností je také komora na patře vedle bytu, ideální pro uložení sezonních věcí, sportovního vybavení či dalších potřeb. Další úložný prostor nabízí sklep v suterénu domu.
Lokalita Praha 12 – Modřany je oblíbená pro kombinaci klidného bydlení, množství zeleně a výborné občanské vybavenosti. V bezprostředním okolí se nachází školy, školky, supermarket, obchodní centrum Modřany, poliklinika s lékárnou, pošta i restaurace. Velkou výhodou je velmi dobrá dopravní dostupnost do centra Prahy i dalších částí města, a to tramvají i autobusem. Přímo před domem je zeleň s dětským hřištěm. Milovníci přírody navíc ocení blízkost lesoparku Modřanská rokle, který nabízí ideální podmínky pro procházky, běh i cyklistiku.
Byt je k nastěhování ihned. Prohlídky jsou možné po předchozí domluvě. V případě zájmu nám prosím napište krátkou zprávu o sobě a rádi se vám ozveme s termínem prohlídky.
Měsíční nájemné byt + garáž: 35.000 Kč
Měsíční zálohy na bydlení: 5.400 Kč
Kauce: 70.000 Kč
Pronajímatel si vyhrazuje právo výběru nájemce dle svého rozhodnutí.
I am offering for long-term rent a spacious, bright, and very practically designed 3+1 apartment with a floor area of 76 m², located in a quiet and sought-after part of Prague 12 – Modřany, on Jordana Jovkova Street. The apartment is just a few steps from Sofijské Square and in close proximity to the popular Modřany Ravine.
The apartment is situated on the 6th floor of a well-maintained panel building with 2 elevators, ensuring comfortable living and everyday convenience. The apartment comes with a loggia and a cellar. Also included in the rental is a garage located on the opposite street, Nikoly Vapcarova, which is a significant advantage in this area.
The apartment underwent a complete renovation in 2026 and is equipped with a new kitchen suite with appliances – a refrigerator with a freezer, a dishwasher, an electric oven, a cooktop, and an extractor hood. It thus offers modern, clean, and functional living. Thanks to its size and layout, it is an ideal choice for a family, a couple, or an individual looking for ample space in a pleasant and peaceful environment.
The apartment's layout includes a separate kitchen, spacious rooms, a bathroom with a bathtub, a separate toilet, and a loggia accessible from the bedroom. A major advantage is also the storage room on the floor adjacent to the apartment, ideal for storing seasonal items, sports equipment, or other needs. Additional storage space is provided by the cellar in the building’s basement.
The Prague 12 – Modřany area is popular for combining quiet living, plenty of greenery, and excellent local amenities. In the immediate vicinity there are schools, kindergartens, a supermarket, the Modřany shopping center, a polyclinic with a pharmacy, a post office, and restaurants. A huge benefit is the very good transport accessibility to the center of Prague and other parts of the city, by both tram and bus. Right in front of the building, there is a green area with a children’s playground. Nature lovers will also appreciate the close proximity of the Modřany Ravine forest park, which offers ideal conditions for walks, running, and cycling.
The apartment is available for immediate move-in. Viewings are possible by appointment. If you are interested, please send us a short message about yourself and we will get in touch with you to arrange a viewing.
Monthly rent appartment + garage: 35,000 CZK
Monthly housing fees: 5,400 CZK
Deposit: 70,000 CZK
The landlord reserves the right to select the tenant at their discretion.
Property characteristics
| Available from | 16/04/2026 |
|---|---|
| Building construction | Precast concrete |
| Fully furnished | Partly |
| Listing ID | 1013297 |
| Usable area | 76 m² |
| Condition | Very good |
|---|---|
| Layout | 3+1 |
| Floor | 6. floor out of 11 |
| Location | Residences |
| Price per unit | CZK 460.53 / m2 |
What does this listing have to offer?
| Wheelchair accessible | |
| Garage | |
| Loggia balcony: 3 m² |
| Basement: 5 m² | |
| Lift |
What you will find nearby
Interested?
Communicate all private owners and save CZK 35,000 on commissions.
Still looking for the right one?
Set up a watchdog. You will receive a summary of your customized offers 1 time a day by email. With the Premium profile, you have 5 watchdogs at your fingertips and when something comes up, they notify you immediately.























