
House for sale • 220 m² without real estate, Baden-Württemberg
Below is the English translation of the text:
Generous Two-Family House with Office & Large Commercial Hall – Perfect Fusion of Living & Working
Rudolf-Diesel-Straße 25 · Wiesloch-Baiertal
This exceptional property offers a rare combination of comfortable living, versatile working options, and a leased industrial hall – all in a quiet suburban location, directly adjacent to a beautiful nature reserve.
As the last house at the Wendehammer, with no direct neighbors and a view of greenery, you will enjoy absolute tranquility, ample privacy, and a unique quality of living.
Ideal for families, self-employed professionals, craftsmen, or multi-generational living.
Highlights of the Property
- Large plot: 1,112 m²
- Two separate residential units (ground floor & attic) – available immediately
- Office or small in-law area in the basement with its own terrace
- Hall/Storage/Workshop: 145 m² – energetically refurbished, leased
- Absolute peace: the last building plot at the end of the mixed industrial area
- View of the undevelopable nature reserve
- Underfloor heating in both ground floor and attic units
- Two natural stone fireplaces (multifuel)
- Fiber optic ready
- Large terrace (ground floor) + covered balcony (attic)
- Several parking spaces, carport & garage
Ground Floor Apartment (approx. 120 m²)
This beautifully laid-out apartment impresses with plenty of light, spacious rooms, and direct garden access. The covered terrace serves as a second living room in the summer.
Layout:
- Large living and dining room (40 m²) with a glass front to the terrace
- Kitchen-living area with built-in furniture
- 2 bedrooms
- Daylight bathroom with shower, bathtub & double washbasin
- Guest WC
- Large east-south facing terrace with garden
- Parquet in the bedrooms, tiles & underfloor heating in the living area
Attic Apartment (approx. 100 m²)
A true highlight with an open-plan living concept, high ceilings, and plenty of charm. Bright rooms, large window fronts, and abundant wood create a pleasant living atmosphere.
Special Features:
- Exposed beams & ceiling height up to 4.5 m – providing a loft-like feel
- Large living room (32 m²) with a fireplace & access to the balcony
- Open kitchen with a bar
- 3 bedrooms
- Daylight bathroom with bathtub, shower & double washbasin
- Guest WC
- Large covered east-south balcony
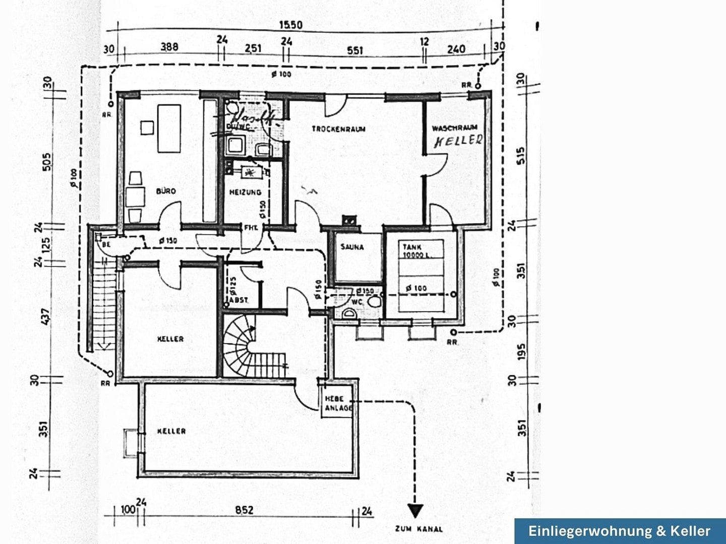
Basement – Office, Hobby, In-Law Area (approx. 19 m² + ancillary rooms)
Perfect for a home office, studio, or small commercial unit. This space offers great potential for additional uses.
- Office with its own entrance through the garage
- WC
- Several basement rooms (suitable for hobbies, storage, workshop)
- Completely tiled
- Access to the garden via the north terrace
Industrial Hall (approx. 145 m²) – Leased
The large, versatile hall is a valuable part of the property. Ideal for a workshop, storage, production, or for business owners.
Equipment & Facts:
- Energetically refurbished (2005)
- Partially sealed floors
- Office, WC, kitchen, heating level
- Garage + large workshop area
- Attic space (storage)
- Own oil heating system
- Roof covering consists of Eternit plates
- Leased – a stable source of income during the modernization of the two-family house
Outdoor Area
- Large courtyard with parking for up to 5 cars
- Carport for 2 cars
- Garage at the house
- Well-maintained garden area with lawn, laurel hedge, roses
- Direct access to the stream & green belt
- Absolute peace & a natural feeling
The property is located at the end of an industrial area with a breathtaking view of the adjacent nature reserve. As the last house at Wendehammer, there are no direct neighbors and absolute tranquility is guaranteed. The surroundings offer the gentle murmur of a stream and birdsong. The nearby cycling path to Dielheim invites you to enjoy recreational activities.
Infrastructure:
The district of Baiertal offers a variety of amenities including a local butcher, bakery, ice cream parlor, Rewe supermarket, Sparkasse bank, Raiffeisen market, pharmacy, daycare center, kindergarten, primary school, fire brigade, sports field, fruit growers with direct sales, a flower shop, a clothing store, and a gas station. Leisure facilities such as mini golf and a golf course are also nearby. Transportation is excellent: 10 minutes to the A6 motorway, 5 minutes to Wiesloch, 15 minutes to the SAP headquarters, and 20 minutes to Heidelberg.
Nearby:
- Rewe, bakery, butcher, pharmacy, daycare center, primary school
- Playgrounds, sports field, mini golf, golf course
- Cycling path right by the house
- 5 minutes to Wiesloch
- 10 minutes to the A6
- 15 minutes to SAP
- 20 minutes to Heidelberg
The location is ideal for both commuters and nature-loving families.
Modernizations (Excerpt)
- Burner of the oil heating system renewed: 2018
- Backwash filter renewed: 2023
- New lift pump: 2024
- Complete heating maintenance: 2025
- Hall energetically refurbished: 2005
Energy Certificate
House:
- 313.5 kWh/(m²*a), Class H, energy demand certificate
- Year built: 1983
- Energy source: oil
Hall:
- 383.7 kWh/(m²*a), Class H, energy demand certificate
- Year built: 1979, modernized 2004
- Energy source: oil
Legal Information:
All necessary permits and documents are complete and up to date.
Target Group:
This property is ideal for craftsmen or self-employed individuals who wish to combine living and working.
Property characteristics
| Age | Over 5050 years |
|---|---|
| Condition | Before reconstruction |
| EPC | G - Extremely uneconomical |
| Land space | 1,112 m² |
| Price per unit | €3,177.27 / m2 |
| Available from | 16/04/2026 |
|---|---|
| Listing ID | 1012820 |
| Usable area | 220 m² |
| Total floors | 3 |
What does this listing have to offer?
| Balcony | |
| Garage | |
| MHD 1 minute on foot |
| Basement | |
| Parking | |
| Terrace |
What you will find nearby
Still looking for the right one?
Set up a watchdog. You will receive a summary of your customized offers 1 time a day by email. With the Premium profile, you have 5 watchdogs at your fingertips and when something comes up, they notify you immediately.































