
House for sale 7+1 • 195 m² without real estateHopfengarten 14, , Lower Saxony
Hopfengarten 14, , Lower SaxonyPublic transport 3 minutes of walking • GarageFamily house for sale on a privately owned plot of 603 m² in a quiet, central location.
The residential building, constructed in 1928, was remodeled and modernized in several stages from around 1990, during which all installations were renewed and new windows were installed (Meranti wood, Ug=1.3 W/m²K).
The exterior walls consist of double-shell brick-exposed masonry, with a 7 cm thick cavity filled with core insulation.
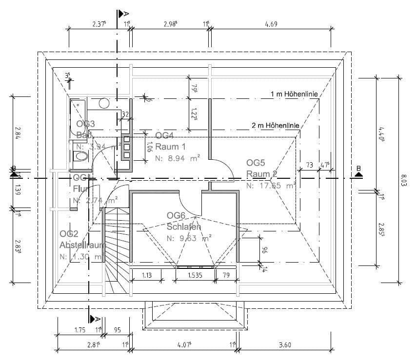
The roof, covered with clay hollow tiles, was insulated with 10+4 cm of mineral wool, and the entire attic space was newly finished. In the attic, besides the living areas there is a bathroom, and connections for a kitchen are available. A few years ago, vinyl flooring was installed in the attic. The south-facing living area is connected to the small attic through a climbing structure (for children).
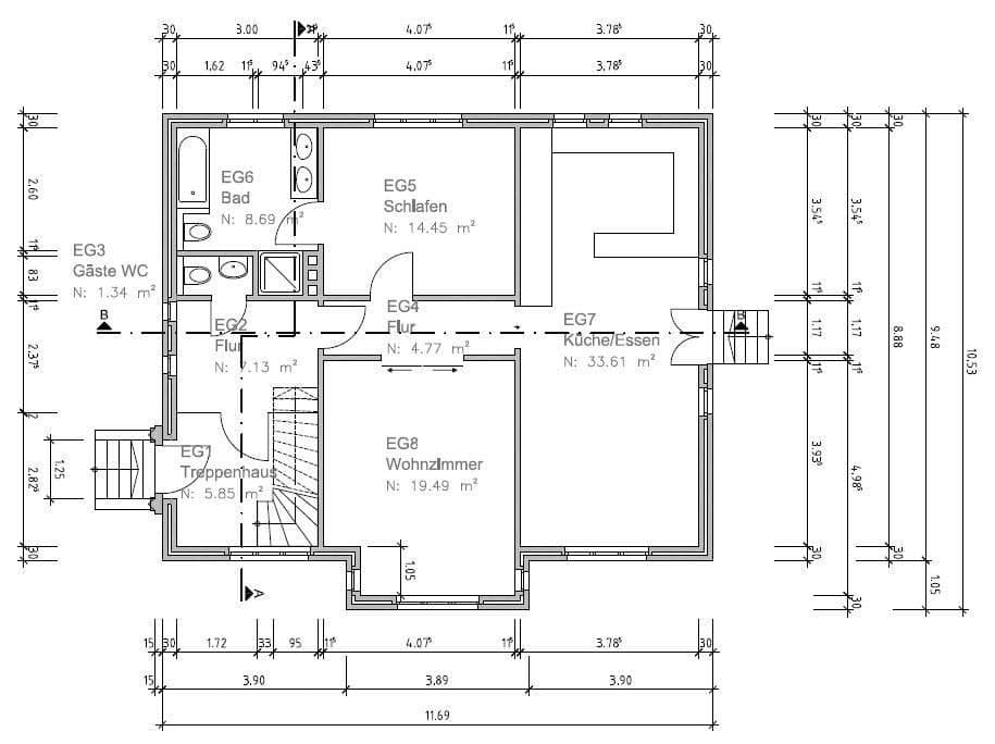
On the ground floor (raised ground floor) the kitchen/dining area is connected to the terrace by an external staircase. The bathroom is directly accessible from the bedroom, and there is a guest WC accessible from the hallway. In the kitchen a high-quality granite floor has been laid, and the dining area is fitted with high-quality solid oak planks (American oak). The backsplash in the fitted kitchen is made of the same material as the floor. In the passageway and the living areas there is a worn sisal carpet. The walls are partly plastered, spackled, and painted, and partly decorated with textured fiberglass wallpaper. The ceilings are smoothly plastered and painted.
The basement can be accessed both via an internal staircase and an external staircase located at the back of the building. Two original rooms in the basement have been supplemented with a pantry kitchen and a shower room. There is another WC in the utility room. In the storage cellar, the boiler room, the utility room, and the basement hallway there are signs of moisture due to insufficient sealing of the basement exterior walls.
Directly facing the street is a simple garage built into the slope (only for small cars), whose reinforced concrete roof can be used as a terrace.
The garden, with large fruit trees and grapevines growing on the south side of the house, requires some attention due to the long period of vacancy of the house.
The house is located centrally on a very quiet and green residential street. The train station is within a 10-minute walk, and the distance to the Eastern bypass is approximately 1,300 m.
All shopping and doctor visits can be done on foot.
NOTE: The poor result of the energy certificate is due to the fact that the issuer used a highly simplified procedure and included the entire basement in the calculation. In a comparative calculation, considering only the ground floor and the attic, a primary energy demand of 135.50 kWh/(m²a) and a final energy demand of 122.10 kWh/(m²a) results.
The offered property is immediately available for occupation, apart from any painting and flooring work. It should be noted that various "small tasks" still need to be completed, which have always been left pending but have not impaired the living quality (individual baseboards unsecured, various switch covers and heating pipe rosettes not mounted...).
Since the property is to be sold on short notice, only inquiries from interested parties whose financing is already secured will be accepted.
Property characteristics
| Age | Over 5050 years |
|---|---|
| Condition | After reconstruction |
| Listing ID | 1012383 |
| Usable area | 195 m² |
| Total floors | 3 |
| Available from | 26/04/2026 |
|---|---|
| Layout | 7+1 |
| EPC | G - Extremely uneconomical |
| Land space | 603 m² |
| Price per unit | €3,841.03 / m2 |
What does this listing have to offer?
| Basement | |
| MHD 3 minutes on foot |
| Garage | |
| Terrace |
What you will find nearby
Still looking for the right one?
Set up a watchdog. You will receive a summary of your customized offers 1 time a day by email. With the Premium profile, you have 5 watchdogs at your fingertips and when something comes up, they notify you immediately.



















































