
Flat to rent 2 bedroom • 65 m² without real estateGdaňská, Prague - Bohnice
Interested?
Communicate all private owners and save CZK 24,000 on commissions.
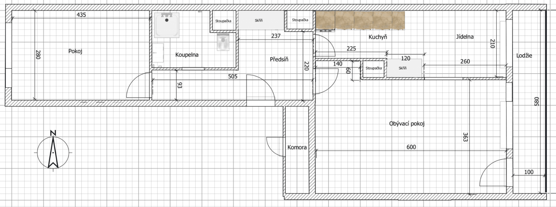
Nabízím k dlouhodobému pronájmu útulný nově zrekonstruovaný byt v klidné části Prahy 8 (Bohnice/Podhajská Pole) s výbornou dostupností na stanici metro C-Kobylisy. Tento světlý moderní byt orientovaný na západní a východní stranu a s výhledem do klidové zóny je situován ve čtvrtém patře (5. nadzemním podlaží) panelové budovy s výtahem. Byt je po kompletní rekonstrukci a sestává se z předsíně (8m2), prostorné obytné místnosti (22,5m2) se vstupem na zasklenou lodžii (6,7m2), druhé obytné místnosti (12,2m2),kuchyně s jídelnou (11,5m2) s oknem, a koupelny (4,5m2). K bytu náleží úložná komora (1,5m2) na stejném patře a sklep (1,8m2)
v mínus prvním patře. Nová kuchyňská linka je vybavena všemi spotřebiči: odsavač par, indukční varná deska, trouba, mikrovlnná trouba, lednice s mrazákem a myčka. V koupelně je novy sprchový kout, toaleta a pračka. V bytě jsou bezpečnostní vchodové dveře, osvětlovací tělesa ve všech místnostech, okenní konzole, vnitřní žaluzie, velká vestavěná šatní skříň v předsíni a kuchyni, vinylové plovoucí podlahy, dlažba a koberec. Možnost připojení na internet, kabelovou TV i pevnou tel. linku. Dálkové ústřední vytápění. Bezproblémové parkování na ulici (bez modrých zón).
Klidná a bezpečná lokalita s bohatou zelení. Byt poskytuje nádherný výhled. Spojení na metro C stanice Kobylisy (5 min.) Zastávka autobusu 130m od domu, při použití MHD se dostanete do středu Prahy do 15 min. V blízkosti bytu se nachází nákupní centrum OC Krakov (800m), supermarket Lidl (200m), Penny (400m), a dále je k dispozici řada dětských hřišť, v blízkosti je základní a mateřská škola.
Poplatky (cca 4700 Kč/zúčtovatelné zálohy) + elektřina, vratná kauce dva měsíční nájmy.
Byt je připraven k okamžitému nastěhování a nabízí pohodlí, praktičnost i ideální lokalitu – perfektní volba pro mladý pár.
Pronajímatel si vyhrazuje právo výběru nájemce.
Vzhledem k vysokému zájmu prosíme vážné zájemce o prohlídku o kontaktování výhradně e-mailem. Rád vám poskytnu další informace a dohodnu prohlídku bytu.
I offer a cozy, newly renovated apartment for long-term rental in a quiet part of Prague 8 (Bohnice/Podhajská Pole) with excellent access to the metro station C-Kobylisy. This bright, modern apartment, facing west and overlooking a quiet zone, is located on the top floor (the 7th floor; 8th level above ground) of a panel building with an elevator. The apartment has been completely refurbished and consists of an entrance hall (3 m²), a spacious living room (16 m²) with access to a loggia (3 m²), a separate kitchenette (6 m²) with a window, and a bathroom (3 m²). Included with the apartment are two storage rooms totaling 3 m², located on the same floor. The kitchen is equipped with all appliances: an extractor fan, a stove with a ceramic cooktop and oven, a microwave, a refrigerator with a freezer, and a dishwasher. The bathroom features a shower, a toilet, and a connection for a washing machine. The apartment includes security entry doors, lighting fixtures in all rooms, window sills, internal blinds, a large wardrobe in the entrance hall, vinyl floating floors, and tiling. The apartment can be connected to the internet, cable TV, and a fixed telephone line. Heating is provided by a remote centralized system. There is hassle-free street parking (outside the blue-zone restrictions).
The location is quiet and safe, with plenty of greenery, and the apartment offers a magnificent view. There is a connection to the metro (C line, Kobylisy station) within 5 minutes, and a bus stop is just 130 meters from the building; using public transport, you can reach the center of Prague in 15 minutes. Nearby you will find the OC Krakov shopping center (800 m), a Lidl supermarket (200 m), a Penny market (400 m), and several playgrounds, as well as an elementary school and a kindergarten.
Fees (approximately CZK 2,500/service charges) plus electricity, and a refundable deposit equivalent to two months’ rent.
The apartment is ready for immediate move-in and offers comfort, practicality, and an ideal location – a perfect choice for a young couple.
The landlord reserves the right to select the tenant.
Due to high demand, serious applicants for a viewing are requested to contact exclusively by e-mail. I will be happy to provide you with further information and arrange a viewing of the apartment.
Property characteristics
| Available from | 16/04/2026 |
|---|---|
| Building construction | Precast concrete |
| Fully furnished | Partly |
| Heating | Distance |
| EPC | G - Extremely uneconomical |
| Usable area | 65 m² |
| Condition | Very good |
|---|---|
| Layout | 2 bedroom |
| Floor | 4. floor out of 7 |
| Listing ID | 1011068 |
| Reconstruction | Complete |
| Price per unit | CZK 369.23 / m2 |
What does this listing have to offer?
| Basement: 3.3 m² | |
| Loggia balcony: 6.7 m² | |
| MHD 2 minutes on foot |
| Lift | |
| Parking |
What you will find nearby
Interested?
Communicate all private owners and save CZK 24,000 on commissions.


Flat to rentFrantiška Jansy, Prague - Dolní Měcholupy- 2+kk
- 52 m²
CZK 22,300 + CZK 5,600CZK 24,000
Save CZK 1,700


Still looking for the right one?
Set up a watchdog. You will receive a summary of your customized offers 1 time a day by email. With the Premium profile, you have 5 watchdogs at your fingertips and when something comes up, they notify you immediately.


















