
House for sale • 180 m² without real estate, Baden-Württemberg
, Baden-WürttembergPublic transport 3 minutes of walking • Parking • GarageProperty Description
Property Description
Welcome to your future home!
This charming, detached single-family house, built in 1960, is located in a quiet and family-friendly residential area of Nürtingen. With a living space of approximately 180 m² on an impressive plot of approximately 630 m², it offers room for your very own design ideas – whether as a classic family home or a modern dwelling with a separate apartment.
The property is in excellent condition and has been modernized several times in recent years. It provides optimal conditions for individual design. Would you like to shape your home entirely in your own style? Here, you finally have the freedom to do so!
Highlights & Modernizations
2007–2010: Renewal of all windows (plastic windows)
2015: Renewal of the electrical system
2019: New roofing and insulation of the roof
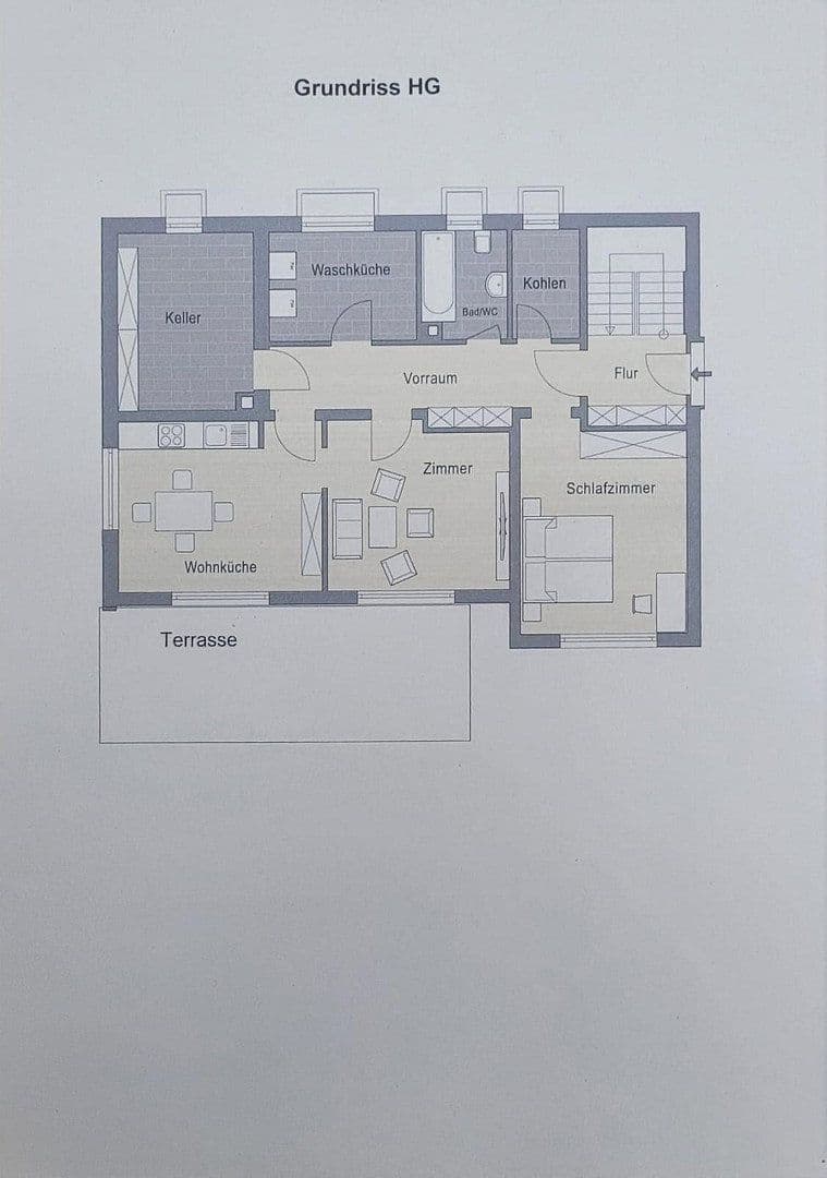
Attic: Partially developed with 2 rooms – great potential for additional living space.
Separate apartment possible: Separate entrance available.
Garage: Secured and directly attached to the house.
Location – Nürtingen as a Residential Area
Nürtingen impresses with its excellent infrastructure and proximity to major metropolitan areas. Whether it’s Stuttgart, Reutlingen, or Esslingen – everything is quickly accessible thanks to the highway connection (A8) as well as S-Bahn and bus services. Schools, kindergartens, a university of applied sciences, shopping opportunities, and doctors are all in the immediate vicinity.
The city is known for its active community life, strong educational landscape, and numerous leisure opportunities – ideal for families and commuters alike.
Key Data at a Glance
Characteristic Value
Living area ca. 180 m²
Plot ca. 630 m²
Number of rooms 8
Year of construction 1960
Available from Immediately
Parking 1 Garage
Heating type Gas heating
Energy certificate Requirement certificate
Final energy demand 228.5 kWh/(m²*a) – Class G
What’s Special About This Property
• Large plot with plenty of green space
• Expansion potential in the attic
• Usable as a multi-generation house or with a separate apartment
• Ample space for creative ideas and modern living concepts
• Quiet location with quick access to the big city
Property characteristics
| Age | Over 5050 years |
|---|---|
| Listing ID | 1010256 |
| Land space | 630 m² |
| Price per unit | €3,861.11 / m2 |
| Condition | Before reconstruction |
|---|---|
| Usable area | 180 m² |
| Total floors | 2 |
What does this listing have to offer?
| Balcony | |
| Garage | |
| MHD 3 minutes on foot |
| Basement | |
| Parking | |
| Terrace |
What you will find nearby
Still looking for the right one?
Set up a watchdog. You will receive a summary of your customized offers 1 time a day by email. With the Premium profile, you have 5 watchdogs at your fingertips and when something comes up, they notify you immediately.



























