
Flat for sale 3+1 • 75 m² without real estateBerlin Altglienicke Berlin 12524
In a quiet, green, and well-maintained location in Berlin-Altglienicke, this vacant, light-flooded 3-room apartment with approximately 75 m² of living space on the first floor of a town villa presents itself as a home that impresses with its comfort and exceptionally pleasant living experience. An apartment that offers good living quality through its well-thought-out floor plan, brightness, and peaceful residential location. The four-party building exudes a private, harmonious atmosphere that has become rare in Berlin.
The building is located in a quiet 30 km/h traffic zone, and shopping options (Lidl, Aldi, Edeka, Netto) are within walking distance. By bus or on foot you can reach the S-Bahn station at Grünbergallee or, by bus, the U-Bahn station at Rudow.
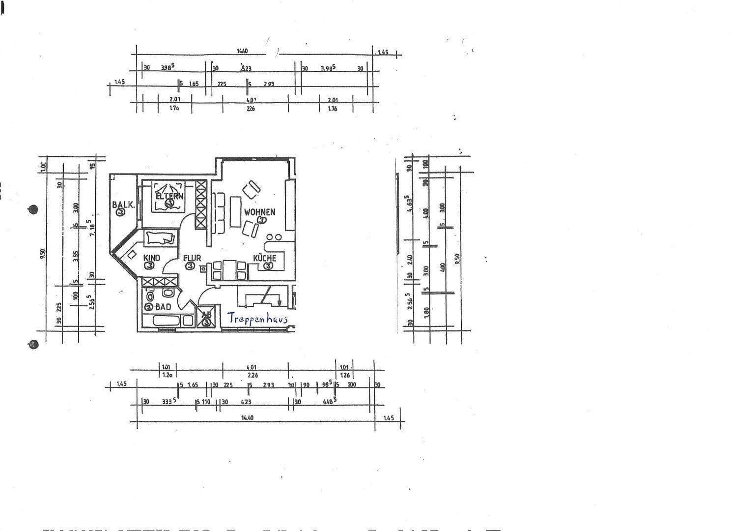
Upon entering the apartment, a bright entrance area opens up, where behind the door there is a practical storage nook, perfect for household items, supplies, or a wardrobe. The hallway has an area of approximately 8 m². The first door opposite the entrance leads into the spacious daylight bathroom of about 7 m², which convinces with modern tiles, a comfortable shower, and enough space to accommodate a bathtub.
The second door opens into the bright children's or study room of roughly 11 m², whose bay window fills the room with natural light and creates an exceptionally friendly atmosphere. External blinds in this room provide optimal sun protection and privacy. The third door leads into the peaceful bedroom of about 12 m², which impresses with its direct access to the large south-facing balcony. The balcony, with an area of approximately 6 m², can be shaded with an electric awning.
To the right of the hallway, the spacious living-kitchen and dining area opens up with its wide window front and an area of 35 m², filling the room with light from morning until afternoon. A satellite TV connection complements the offering. The custom-made, modern, high-quality fitted kitchen is harmoniously integrated and equipped with all the important appliances. The shading of the window front can be managed via an electric sun blind.
The apartment's windows are double-glazed plastic windows. The living room, hallway, and bedroom have a uniform laminate floor, while the living-kitchen area and the bathroom are tiled. The balcony is laid with WPC boards. Some walls and ceilings in the apartment require normal renovation, but aside from these minor renovation works, the apartment is ready to move into immediately.
In the basement, there is a storage room belonging to the apartment for ample storage space. A communal additional laundry room for the washing machine and a suitable space for hanging laundry, which all residents can use, is located in a separate communal area in the basement. An individual outdoor parking space directly behind the house complements the offer. The gas central heating, renewed in 2020, provides modern, efficient warmth.
The apartment is being sold privately. Therefore, no broker’s commission applies to the buyer.
PLEASE NO BROKER INQUIRIES. THE SALE IS ONLY FROM PRIVATE TO PRIVATE.
With the exception of the fitted kitchen and the bathroom furniture, which are actually in the apartment, the furnishing of the living room, bedroom, and bay window room is virtually depicted in the pictures. The AI generation is indicated accordingly in the images.
Property characteristics
| Age | Over 5050 years |
|---|---|
| Condition | Good |
| Floor | 1. floor out of 2 |
| EPC | D - Less economical |
| Price per unit | €3,986.67 / m2 |
| Available from | 09/04/2026 |
|---|---|
| Layout | 3+1 |
| Listing ID | 1009556 |
| Usable area | 75 m² |
What does this listing have to offer?
| Balcony | |
| Parking |
| Basement | |
| MHD 1 minute on foot |
What you will find nearby
Still looking for the right one?
Set up a watchdog. You will receive a summary of your customized offers 1 time a day by email. With the Premium profile, you have 5 watchdogs at your fingertips and when something comes up, they notify you immediately.



















