
Flat to rent 3+1 • 97 m² without real estateKübelmarkt 28, , Baden-Württemberg
Kübelmarkt 28, , Baden-WürttembergPublic transport 1 minute of walkingThe 3-room apartment is located on the first upper floor of a residential and commercial building (built in 1959) in a central downtown location on the edge of Bruchsal’s pedestrian zone.
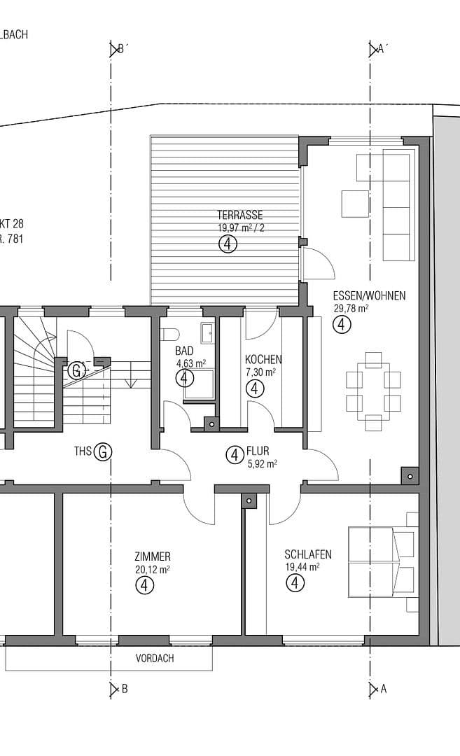
With approximately 97 m² of living space (terrace 20 m², with an additional 10 m² apportioned), the unit includes a spacious living and dining room, a bedroom, another room, a kitchen with fitted appliances, and a daylight bathroom. The roof terrace with a view of Saalbach is accessible from both the kitchen and the living room.
The apartment will be available from May 1, 2026.
No pets allowed.
The property is located in the central downtown area of Bruchsal at Kübelmarkt in a traffic-calmed area. Kaiserstraße, Bruchsal’s pedestrian zone, is about a 2-minute walk away. In the immediate vicinity, various shopping opportunities, restaurants, and retailers are located. The train station is approximately 700 meters away. Transportation connections are excellent.
- Gas central heating with central hot water supply
- Laminate floors in the rooms
- Daylight bathroom with shower, washbasin, toilet, and washing machine connection
- Fitted kitchen with sink, dishwasher, oven, ceramic hob, and extractor fan
- Basement
No pets allowed.
Property characteristics
| Age | Over 5050 years |
|---|---|
| Condition | Good |
| Floor | 1. floor out of 3 |
| EPC | F - Very uneconomical |
| Price per unit | €9.79 / m2 |
| Available from | 01/05/2026 |
|---|---|
| Layout | 3+1 |
| Listing ID | 1009543 |
| Usable area | 97 m² |
What does this listing have to offer?
| Basement |
| MHD 1 minute on foot |
What you will find nearby
Still looking for the right one?
Set up a watchdog. You will receive a summary of your customized offers 1 time a day by email. With the Premium profile, you have 5 watchdogs at your fingertips and when something comes up, they notify you immediately.












