
Flat to rent 3+1 • 72 m² without real estateLoppengasse 21 A, , Baden-Württemberg
Loppengasse 21 A, , Baden-WürttembergPublic transport 3 minutes of walking • ParkingFirst occupancy after renovation on 01.06.26: In a quiet setting near the center of Nussloch, two very attractive, fully renovated apartments with 72 and 32 square meters of living space are available for rent without commission. Your new home features a pleasant, quiet balcony and is fitted with high-quality, health-enhancing materials. The finishes are upscale, including porcelain stoneware tiles, genuine wood windows (partly new), and parquet flooring.
Please note: The photos are from apartments in the front building that have already been completed. The two apartments offered here are currently being renovated.
Only individuals with a permanent, full-time employment contract or with a guarantor are eligible as tenants. The security deposit amounts to three months’ rent (basic rent only).
Electricity and internet contracts are to be arranged by the tenants themselves, as these costs are not included in the advance payment for operating expenses.
Overview of the available apartments and basic rents (plus operating cost advance payment, electricity, and internet):
Apartments in the rear building, not yet fully renovated, available from either 15.05.2026 or 01.06.2026
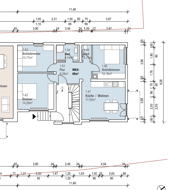
• Apartment 8 on the ground floor with approximately 72 m² and a balcony, basic rent 1,030 € plus operating costs, electricity, and internet. Expected availability on 01.06.26. An optional parking space is available for 70 € per month.
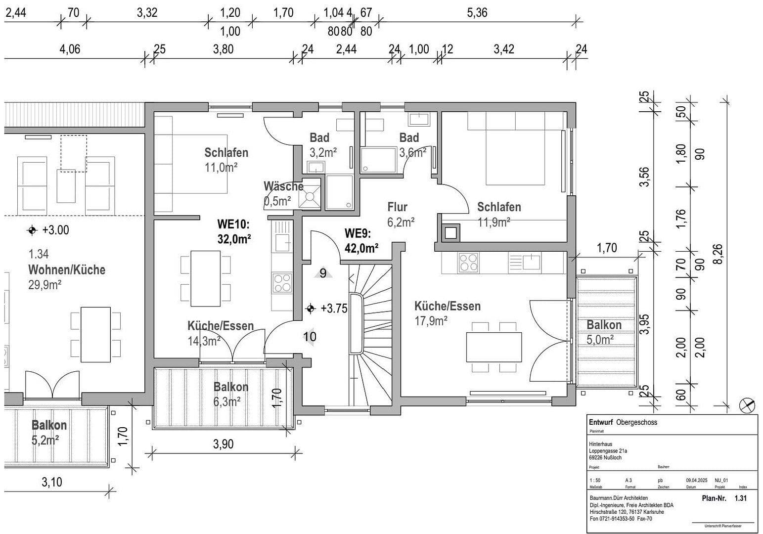
• Apartment 10 on the first floor with approximately 32 m² and a balcony, basic rent 560 € plus operating costs, electricity, and internet. Expected availability on 01.06.26. An optional parking space is available for 70 € per month.
The building is located near the center of Nussloch, with shops, authorities, doctors, public transport, and schools in the immediate vicinity. The finish is of high quality with porcelain stoneware tiles, genuine wood windows (partly new), and parquet flooring. The walls are smoothly plastered and painted white.
Property characteristics
| Age | Over 5050 years |
|---|---|
| Layout | 3+1 |
| EPC | G - Extremely uneconomical |
| Price per unit | €14 / m2 |
| Condition | After reconstruction |
|---|---|
| Listing ID | 1006034 |
| Usable area | 72 m² |
What does this listing have to offer?
| Balcony | |
| MHD 3 minutes on foot |
| Parking |
What you will find nearby
Still looking for the right one?
Set up a watchdog. You will receive a summary of your customized offers 1 time a day by email. With the Premium profile, you have 5 watchdogs at your fingertips and when something comes up, they notify you immediately.














