
House for sale 4+kk • 147 m² without real estate, Baden-Württemberg
, Baden-WürttembergPublic transport 3 minutes of walking • ParkingUnique, cozy semi-detached maisonette in a quiet cul-de-sac location with a view of greenery from Michelfeld.
The house was built in 1994 using ecological timber-frame construction and is in very good condition due to excellent upkeep and regular investments.
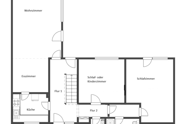
The approximately 146m² of living space is spread over 2 levels. On the ground floor, in addition to an inviting entrance hall, you will find a guest WC, a utility room equipped with connections for a washing machine and dryer, an open-plan living and dining area with a view into the garden and a high-quality soapstone stove, as well as an adjoining country-style kitchen.
On the upper floor, in addition to three further rooms, there is a small shower room and a daylight bathroom equipped with a bathtub.
The highlight is the sauna, which is accessible from the bathroom. A pull-out staircase leads to the attic, which offers generous storage space and can be easily expanded if needed.
From the bright living/dining area, you can access the terrace, which is covered with glass, leading to the cozy garden.
From there you enjoy a beautiful view of greenery, as the property borders an unobstructed green area with a rarely frequented children's playground. Additionally, the garden features a shed with ample space for bicycles and similar items, as well as a small workshop area.
Thanks to the installation of a wood stove in 2022 and the gas boiler updated in 2014, the living is very energy efficient.
Move in immediately and feel at home without the need for time-consuming, costly renovations – this is possible here.
The sale is conducted without a realtor! Contact by agents is not desired.
A more detailed brochure is available.
Available from early June 2026.
The property is located in Angelbachtal – Michelfeld.
Bus lines 703, 761, and 791 operate nearby. In the immediate vicinity you will find two restaurants, a bakery, a café, and a supermarket. Several green and park areas, fitness studios, two flower shops, a postal acceptance point, and a pharmacy can also be reached on foot. Additionally, one of the three kindergartens is located in the immediate area. Finally, interesting cultural institutions, nightlife options, and good medical care are also accessible in the wider area.
Property characteristics
| Age | Over 5050 years |
|---|---|
| Layout | 4+kk |
| EPC | B - Very economical |
| Land space | 282 m² |
| Price per unit | €3,400.68 / m2 |
| Condition | After reconstruction |
|---|---|
| Listing ID | 1009313 |
| Usable area | 147 m² |
| Total floors | 2 |
What does this listing have to offer?
| Parking | |
| Terrace |
| MHD 3 minutes on foot |
What you will find nearby
Still looking for the right one?
Set up a watchdog. You will receive a summary of your customized offers 1 time a day by email. With the Premium profile, you have 5 watchdogs at your fingertips and when something comes up, they notify you immediately.


















