
Flat for sale 3+1 • 72 m² without real estateNeckarauer Str. 21 Mannheim Neckarau Baden-Württemberg 68199
Neckarauer Str. 21 Mannheim Neckarau Baden-Württemberg 68199Public transport less than a minute of walking • GarageYou're looking for a beautiful, modern home without the hassle of construction? You're in the right place. This freshly renovated apartment on the 3rd floor offers pure living comfort on 71.66 square meters. It’s a first occupancy after refurbishment – which means for you: just move in your furniture, settle down, and enjoy life. Bright rooms, a warm vinyl floor with a wood look, and a modern design.
The highlights at a glance:
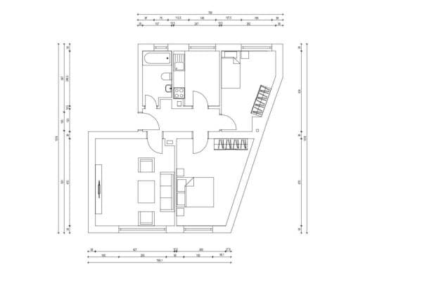
• Living area: 71.66 m²
• Rooms: 3 very well-proportioned rooms (a spacious living room, a bedroom, and an additional room)
• Floor: 3rd floor
• Balcony: Yes, perfect for a relaxed coffee in the morning
• Bathroom: A modern spa-like bathroom
• Parking & Storage: An own garage (No. 7) as well as a spacious basement storage room (No. 7) are included!
Central, urban, and excellently connected. The apartment is located at Neckarauer Straße 21 in 68199 Mannheim. Whether it’s a supermarket, bakery, or the fast connection to the city – you have all the essentials right at your doorstep.
Does this sound like your perfect match? Then feel free to send me a short message, and we’ll arrange a viewing appointment. I’m looking forward to hearing from you!
The apartment shines with a new glow and impresses with a cool yet high-quality appearance. The building itself (built in 1962) is also in excellent condition. In recent years, important modernizations have been continuously carried out on the property, which provide you as the buyer with security:
• Renovation of the balconies/terraces (2024)
• Renewal of the water and sewage lines (2020)
• Flat roof renovation (2016)
• Sewer renovation (2010)
vivunt GmbH
Otto-Beck-Str. 21-25
68165 Mannheim
Managing Directors:
Ceyhan Akar
Florian Castello
Property characteristics
| Age | Over 5050 years |
|---|---|
| Layout | 3+1 |
| Listing ID | 1008779 |
| Usable area | 72 m² |
| Condition | After reconstruction |
|---|---|
| Floor | 3. floor out of 3 |
| EPC | G - Extremely uneconomical |
| Price per unit | €3,888.89 / m2 |
What does this listing have to offer?
| Balcony | |
| Garage |
| Basement | |
| MHD 0 minutes on foot |
What you will find nearby

Flat for saleMina-Karcher-Platz Frankenthal Frankenthal (Pfalz) Rheinland-Pfalz 67227- 3+1
- 86 m²
€227,000 + €550
Flat for saleKarlsbader Straße 7 Ludwigshafen am Rhein Gartenstadt Rheinland-Pfalz 67065- 3+1
- 80 m²
€269,000 + €534


Still looking for the right one?
Set up a watchdog. You will receive a summary of your customized offers 1 time a day by email. With the Premium profile, you have 5 watchdogs at your fingertips and when something comes up, they notify you immediately.















