
Flat for sale 3+1 • 84 m² without real estateKolbenova, Prague - Vysočany
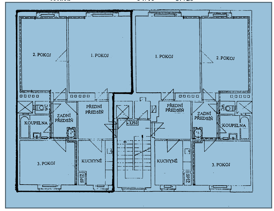
Nabízím k prodeji krásný a vysoce kvalitní byt o dispozici 3+1, který se nachází v cihlové budově ve 4 NP. Nemovitost je ve velmi dobrém stavu a nachází se v osobním vlastnictví, což zaručuje rychlý a transparentní převod. Byt je kompletně vybaven, což umožňuje okamžité nastěhování bez nutnosti dodatečných investic do vybavení.
Celková obytná plocha 84 m² poskytuje dostatek prostoru pro komfortní bydlení a praktické řešení rodinného života. K bytu rovněž patří sklep o rozloze 8 m², který slouží k uskladnění věcí a pomáhá udržet byt přehledný. V budově je zajištěn výtah, což výrazně zvyšuje komfort bydlení, ačkoli nemovitost nenabízí parkovací místo ani garáž.
Věřím, že se toto moderně zařízené a celkově velmi dobře udržované bydlení stane ideální volbou pro nového majitele. V případě zájmu je možné mě kontaktovat prostřednictvím zpráv na komunikační platformě.Prodej bytu 3+1, 84 m² – Praha 9, Kolbenova
Nabízím k prodeji prostorný byt o dispozici 3+1 s podlahovou plochou 84 m², situovaný v atraktivní lokalitě Praha 9 – Kolbenova.
Byt se nachází v posledním podlaží domu, což zajišťuje naprostý klid bez hluku od sousedů nad vámi. Z bytu je zároveň krásný otevřený výhled do okolí, který dodává bydlení příjemnou atmosféru.
🔹 Základní informace:
Dispozice: 3+1
Podlahová plocha: 92 m²
Lokalita: Kolbenova, Praha 9
🔹 Výhody:
Poslední podlaží – klid a soukromí
Krásný výhled do okolí
Prostorné místnosti
Dobrá dopravní dostupnost (metro, MHD)
Kompletní občanská vybavenost v okolí
Vhodné i jako investice
Byt se nachází v lokalitě s veškerou občanskou vybaveností – školy, školky, obchody, restaurace i služby v docházkové vzdálenosti.
📞 Pro více informací nebo domluvení prohlídky mě neváhejte kontaktovat.
Property characteristics
| Available from | 03/04/2026 |
|---|---|
| Building construction | Brick |
| Fully furnished | Fully furnished |
| Listing ID | 1008660 |
| EPC | G - Extremely uneconomical |
| Usable area | 84 m² |
| Condition | Very good |
|---|---|
| Layout | 3+1 |
| Floor | 4. floor out of 4 |
| Ownership | Personal |
| Location | Quiet area |
| Price per unit | CZK 178,571 / m2 |
Are you choosing a apartment?
Make sure you have all the important information!
What does this listing have to offer?
| Basement: 8 m² |
| Lift |
What you will find nearby
Still looking for the right one?
Set up a watchdog. You will receive a summary of your customized offers 1 time a day by email. With the Premium profile, you have 5 watchdogs at your fingertips and when something comes up, they notify you immediately.









