
Flat to rent 2 bedroom • 55 m² without real estateFürstenwalder Straße 2, , Lower Saxony
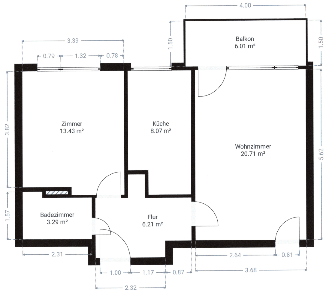
Fürstenwalder Straße 2, , Lower SaxonyPublic transport 2 minutes of walkingOn the 2nd upper floor, you’ll find a modern 2-room apartment with 54.74 m² of living space available for first occupancy after a complete renovation – everything has been redone!
The apartment is presented in excellent, near-new condition and offers you the comfort of a newly built apartment. The balcony extends your living space outdoors, inviting you to relax in the open air.
You can move in immediately and don’t need to worry about a thing!
The property is located in a pleasant residential area in the Hannover-Misburg district. Daily necessities are within walking distance, ensuring a convenient local supply.
Public transport connections are excellent: the tram stop for line 7 and a bus stop are in the immediate vicinity, providing a fast and convenient link to the city center and the surrounding districts.
Overall, the location impresses with its good infrastructure, excellent accessibility, and the combination of urban living with practical everyday conveniences.
- First occupancy after renovation
- 2 rooms
- 54.74 m² of living space
- Bright living areas with high-quality real oak parquet flooring
- Spacious rooms
- New interior doors
- New electrical wiring
- New radiators
- Large living room
- All rooms are bright and painted white
- Plastered smooth walls
- Beautiful white Hamburg trim profile in the living areas
- Renovated bathroom with a walk-in rainshower with a glass element
- Towel radiator
- Plenty of power outlets and TV connections in all rooms
- Ceiling spot lighting in the hallway, bathroom, and kitchen
- Associated storage/basement room
Available immediately.
Cold rent: €750; Ancillary costs including heating: €200
Deposit: 3 months’ cold rent
If you are interested, please send us:
1) Your name,
2) Your telephone number,
3) Your occupation,
4) The number of people moving in.
Viewings are possible shortly. We look forward to your inquiry and will contact you afterward to arrange an appointment.
Please note: The apartment is still being finalized. The pictures are therefore of a similar apartment with identical features.
Property characteristics
| Age | Over 5050 years |
|---|---|
| Condition | After reconstruction |
| Floor | 2. floor |
| Usable area | 55 m² |
| Available from | 15/04/2026 |
|---|---|
| Layout | 2 bedroom |
| Listing ID | 1007757 |
| Price per unit | €14 / m2 |
What does this listing have to offer?
| Balcony | |
| MHD 2 minutes on foot |
| Basement |
What you will find nearby
Still looking for the right one?
Set up a watchdog. You will receive a summary of your customized offers 1 time a day by email. With the Premium profile, you have 5 watchdogs at your fingertips and when something comes up, they notify you immediately.










