
Office to rent • 80 m² without real estateWienerstaße 488 Linz Ebelsberg Oberösterreich 4030
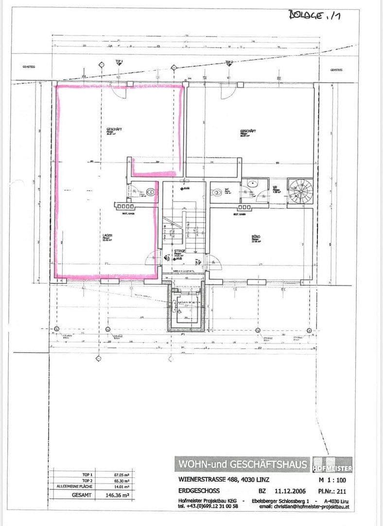
Wienerstaße 488 Linz Ebelsberg Oberösterreich 4030Public transport 2 minutes of walking • Lift • ParkingCommercial premises for rent at Wienerstraße 488, 4030 Linz-Ebelsberg, consisting of office and retail space on the ground floor with an area of approximately 68 m² and an extra room in the semi-basement with an area of about 12 m², totaling approximately 80 m² (layout according to plan). The extra room can be accessed via the staircase.
The property is almost finished with its renovation work. The commercial space is located directly on the bustling Wienerstraße in the center of Ebelsberg and is very well connected by public transportation, including trams and several bus lines. A passenger elevator is available.
Price Information:
Rent: €1,100.00 (excluding VAT)
Rent: €1,320.00 (including 20% VAT)
Operating costs: €165.82 (excluding VAT)
Operating costs: €198.98 (including 20% VAT)
A parking space is available separately for rent (€40.00 plus VAT and operating costs).
The billing for the incurred electricity, gas, and heating costs is to be arranged directly between the tenant and the respective utility company.
Viewings are possible by appointment: Tel. No. 0699/11667718 – Alfred Mayrhofer
No broker commission!
Property characteristics
| Condition | After reconstruction |
|---|---|
| Land office | 80 m² |
| Listing ID | 1007639 |
|---|---|
| Price per unit | €14 / m2 |
What does this listing have to offer?
| Lift | |
| MHD 2 minutes on foot |
| Parking |
What you will find nearby
Still looking for the right one?
Set up a watchdog. You will receive a summary of your customized offers 1 time a day by email. With the Premium profile, you have 5 watchdogs at your fingertips and when something comes up, they notify you immediately.





