Flat for sale 3+1 • 80 m² without real estate, Baden-Württemberg
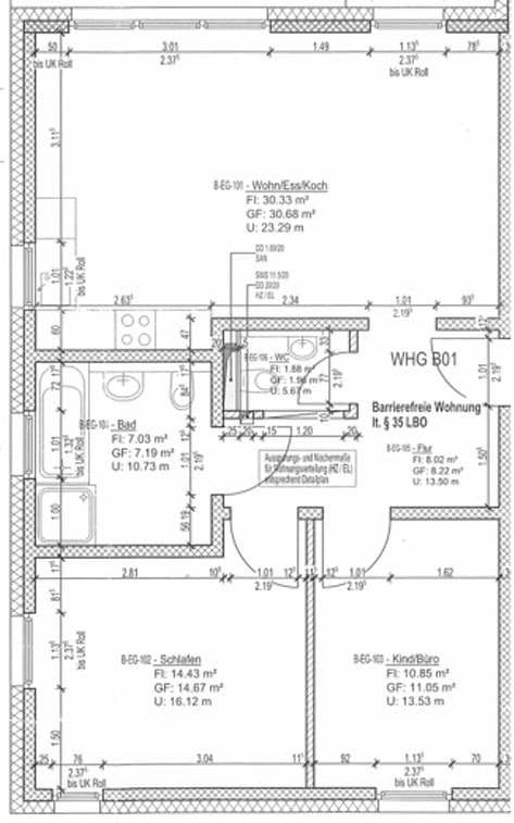
For sale is a bright, barrier-free three-room condominium apartment in a residential complex built in 2016, located in the “Kohlstätter Hardt” development area in Freudenstadt. The apartment is situated on the ground floor and is particularly notable for its spacious, private garden area of over 200 m² for exclusive use.
The apartment is being sold directly by the owner without commission.
It features a modern floor plan, and the floor-to-ceiling windows provide direct access to the terrace and the adjoining garden area. All rooms are finished with tiles. The bathroom is equipped with a walk-in shower, a bathtub, and a connection for a washing machine. A fitted kitchen is included.
An underground parking space is available with the apartment for a price of €25,000.
A private cellar room of nearly 8 m² is assigned to the apartment.
The purchase price includes the complete garden inventory. This includes, among other items, a lawnmower, a hedge trimmer, garden storage boxes, a complete irrigation system, and existing supplies.
The property is located in the Kohlstätter Hardt residential area in Nordstadt. The location is characterized by a quiet environment while still being close to Freudenstadt’s city centre. In the surrounding area, you will find all the necessary infrastructure for daily needs (pharmacies, supermarkets and discount stores, doctors, kindergartens, primary schools, secondary schools, middle schools, high schools, and comprehensive schools) as well as connections to public transportation.
Property characteristics
| Age | Over 5050 years |
|---|---|
| Layout | 3+1 |
| EPC | B - Very economical |
| Price per unit | €4,374 / m2 |
| Condition | Very good |
|---|---|
| Listing ID | 1007397 |
| Usable area | 80 m² |
What does this listing have to offer?
| Wheelchair accessible | |
| Garage | |
| MHD 1 minute on foot |
| Basement | |
| Lift | |
| Terrace |
What you will find nearby
Still looking for the right one?
Set up a watchdog. You will receive a summary of your customized offers 1 time a day by email. With the Premium profile, you have 5 watchdogs at your fingertips and when something comes up, they notify you immediately.


















