
House for sale 5+1 • 142 m² without real estate, North Rhine-Westphalia
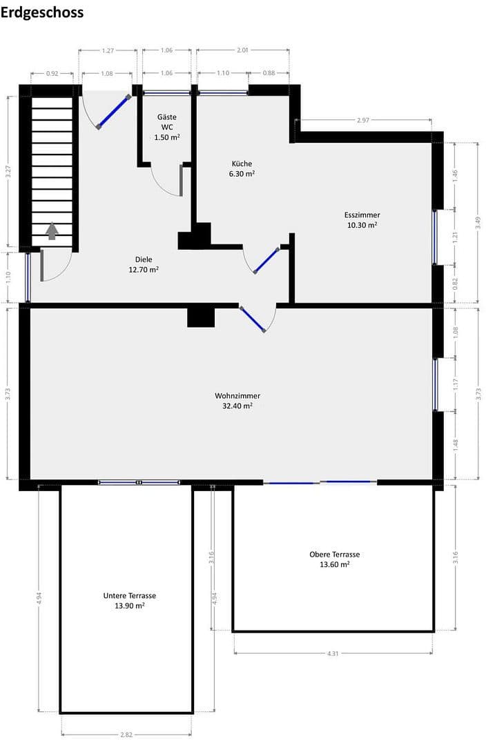
, North Rhine-WestphaliaPublic transport 1 minute of walking • Parking • GarageThis 5-room single-family house in a quiet, central location in Odenthal offers everything for family-friendly everyday life: a spacious living room, a dining room, 3 bedrooms, 1 bathroom with shower and bathtub, as well as a separate toilet. The fully developed attic can be used as additional living space. The tiled basement provides 65 m² of space.
The house is vacant, well-maintained, and ready for immediate move-in – although there is modernization potential regarding thermal insulation.
The large garden (equipped with a groundwater pump for irrigation) and the two-level terrace invite you to barbecue and relax. In addition to the gas central heating, a heated fireplace in the living room ensures cozy evenings. You can conveniently store the wood for it in and behind the garage.
Current features and renovations:
• Gas central heating (2002)
• Plastic windows with double glazing (1989/90)
• New roof with insulation (2006)
• Developed attic as potential living space
• Aluminum front door RC2 (2024)
A double garage provides space for 2 cars plus an additional parking space in front – ideal for families with multiple vehicles.
Located right in the heart of Odenthal, everything is within a 1 km walking radius: supermarkets, pharmacy, doctors, kindergarten, and schools. Perfect for families.
Important note: This is a leasehold property (Archdiocese of Cologne) with a contract until August 2060.
Brochure with energy certificate available upon request – we look forward to your message for a viewing.
Property characteristics
| Age | Over 5050 years |
|---|---|
| Layout | 5+1 |
| EPC | G - Extremely uneconomical |
| Land space | 862 m² |
| Price per unit | €2,958 / m2 |
| Condition | Good |
|---|---|
| Listing ID | 1006988 |
| Usable area | 142 m² |
| Total floors | 2 |
What does this listing have to offer?
| Balcony | |
| Garage | |
| MHD 1 minute on foot |
| Basement | |
| Parking | |
| Terrace |
What you will find nearby
Still looking for the right one?
Set up a watchdog. You will receive a summary of your customized offers 1 time a day by email. With the Premium profile, you have 5 watchdogs at your fingertips and when something comes up, they notify you immediately.



























