
House for sale • 174 m² without real estate, North Rhine-Westphalia
, North Rhine-WestphaliaPublic transport less than a minute of walking • Parking • GarageFamily idyll with plenty of space and near the forest in Schwerte-Westhofen
INTRO:
In the sought-after, quiet area of Schwerte-Westhofen, this extraordinarily spacious semi-detached house, built in 1963, awaits you with plenty of room for the whole family. Spread over two full living levels plus an expanded attic, there are a total of 9 rooms, two bathrooms, and a guest WC.
Schwerte-Westhofen impresses with its natural, peaceful residential setting, good infrastructure, and quick access to motorways and public transport.
Ideal for families with children, multigenerational living, or working from home.
For the past 38 years, the house has been lovingly maintained, regularly modernized, and kept in excellent condition by a family of four.
Due to age, it is now being handed over to new owners – a wonderful opportunity for families seeking a home with history, substance, and a future.
The property impresses with a high energy standard, a light-flooded atmosphere thanks to numerous large windows, and well-thought-out layouts featuring several practical storage rooms.
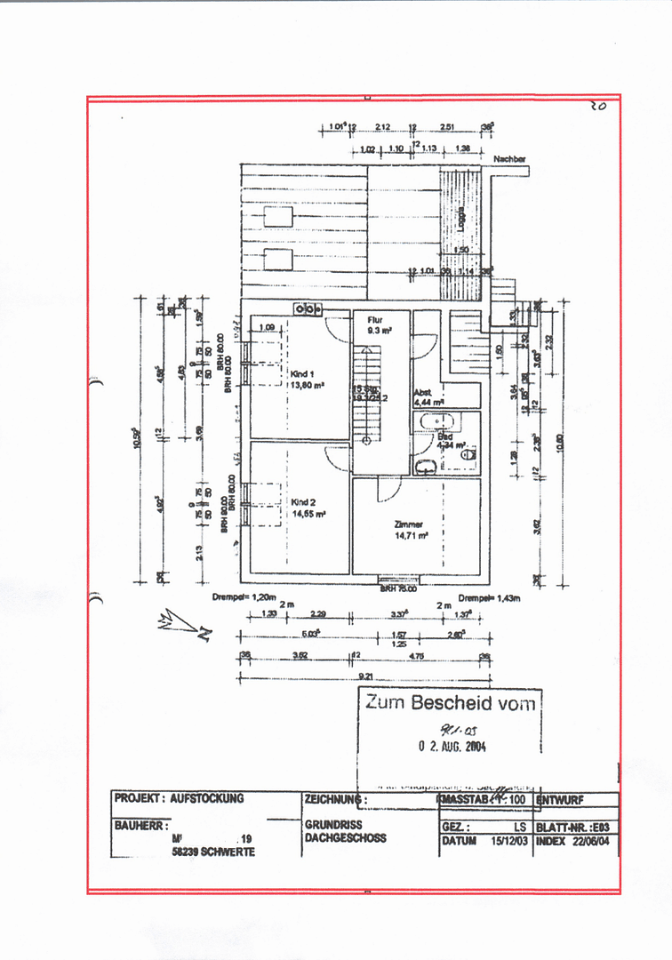
The attic, expanded about 20 years ago, was designed as a separate living area for the children and offers additional versatile space.
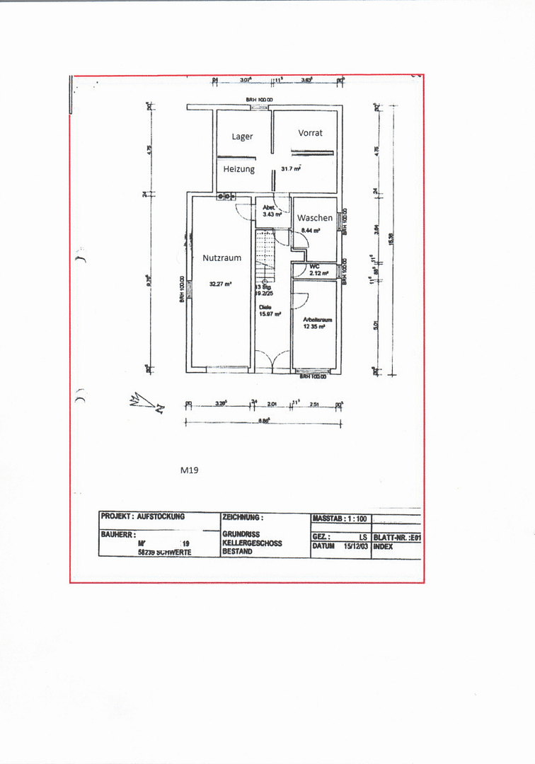
Basement rooms, a garage, three parking spaces, several utility and hobby rooms, as well as a magnificent, spacious garden with plenty of room for playing, relaxing, and gardening complete this attractive offer.
LOCATION:
This charming property is located in an attractive residential area in the Schwerte district of Westhofen.
The popular Ebberg nature reserve and the Ruhr River with its Ruhr bike path are quickly accessible.
This home becomes a paradise for nature lovers, joggers, walkers, cyclists, and families with children.
Westhofen offers a pleasant mix of quiet living and good connectivity. The motorways A45 and A1 are quickly reachable.
Shopping opportunities, kindergartens, schools, and doctors are just a few minutes away.
The proximity to the Ruhr, nearby cities such as Dortmund, and excellent public transport connections make the location especially attractive for commuters.
Here you live close to nature, in a family-friendly setting, yet with excellent connectivity.
Year built 1963 / Renovation and expansion 2004
Heating and last energy renovation in 2010 with conversion to gas
Condition: well-maintained
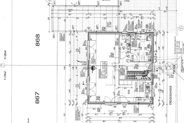
Number of floors: 2 (slight hillside)
Bathroom on the ground floor with shower and bathtub
Bathroom upstairs with shower
Rooms: 9
Number of parking spaces: 3
Number of garages: 1
Living room, dining room, guest room, bedroom, utility room (also usable for other purposes),
High-quality, large-format modern tiles on the ground floor
Central vacuum system, electric shutters,
Garden: Cistern with garden irrigation system
Storage cellar, laundry cellar
Viewings are by appointment only.
For further questions, the homeowner is happy to be reached at the following mobile number: 0160 428 4675.
We ask for your understanding that viewings will only be conducted with presentation of a current financing proof or a corresponding capital confirmation.
Property characteristics
| Age | Over 5050 years |
|---|---|
| Listing ID | 1005120 |
| Usable area | 174 m² |
| Total floors | 2 |
| Condition | After reconstruction |
|---|---|
| EPC | B - Very economical |
| Land space | 608 m² |
| Price per unit | €3,730 / m2 |
What does this listing have to offer?
| Basement | |
| Parking | |
| Terrace |
| Garage | |
| MHD 0 minutes on foot |
What you will find nearby
Still looking for the right one?
Set up a watchdog. You will receive a summary of your customized offers 1 time a day by email. With the Premium profile, you have 5 watchdogs at your fingertips and when something comes up, they notify you immediately.






















