
Flat for sale 2 bedroom • 49 m² without real estateArnethgasse 63 Wien 16. Bezirk Wien 1160
Arnethgasse 63 Wien 16. Bezirk Wien 1160Public transport 2 minutes of walking • LiftThis high-quality apartment is located on the 3rd floor (with elevator) and is currently being finished. Approximately from mid-April, the apartment will be available freshly renovated. Viewings are already possible, and changes can still be taken into consideration after clarification.
The photos come from an already completed apartment with the same features.
As part of the complete renovation, all pipelines (electrical and plumbing installations) will be renewed, new interior doors installed, and a stylishly tiled bathroom with a separate WC will be newly created – both equipped with modern 30 × 60 cm porcelain stoneware tiles.
The living areas are presented with elegant rustic plank parquet flooring that creates a warm and homely atmosphere. New triple-glazed windows as well as modern LED ceiling lighting in the entrance hall, kitchen, and bathroom complete the well-thought-out interior design.
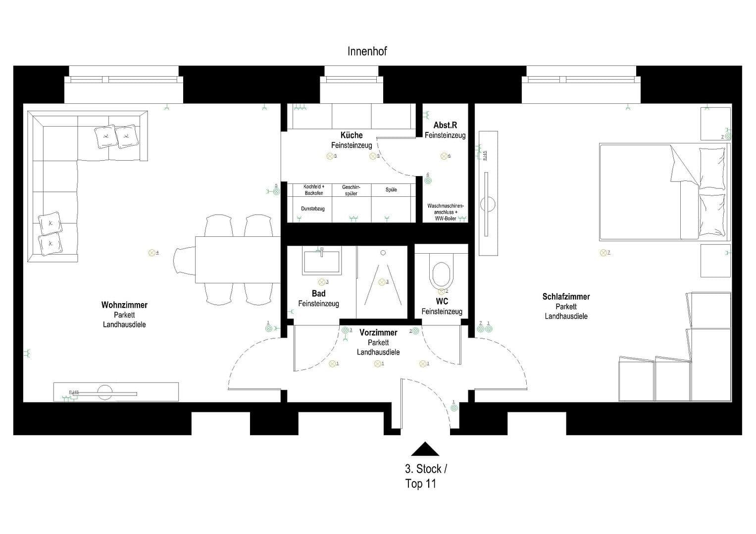
The layout is clearly structured: The rooms are centrally accessed from the entrance area. From there, you can directly reach the bedroom and living room as well as the bathroom and WC. Attached to the kitchen is a storage room with a washing machine connection, providing additional storage space.
The practical side is also convincing: The apartment comes with a generous basement storage compartment for extra storage.
The kitchen is prepared with all necessary connections, so you can customize your personal kitchen space. A kitchen design can be provided upon request.
The property at Arnethgasse 63 stands out with excellent connections to public transportation: Several public transport options are available within walking distance, ensuring direct access to the city center and other districts.
Transport connections:
About 150 meters away, you will reach the tram stop “Redtenbachergasse,” which takes you directly to the city center (Schottentor).
Bus lines 46A and 46B quickly bring you to the nearby recreational area Wilheminenberg.
The subway station and S-Bahn station Ottakring is also just a few minutes' walk away (about 500 m). In only seven minutes by transit, you reach the WienWest Bahnhofcity as well as the Mariahilferstraße shopping street. In just 14 minutes, you can reach the city center (Stephansplatz stop) without any transfers.
Shopping opportunities in the area:
Just a few minutes' walk away are Ottakringer Straße and Thaliastraße, the most popular convenience streets in the 16th district. There, you will find a diverse range of shopping options. Supermarkets such as Denns BioMarkt, Spar, Billa, and Penny are all within a ten-minute radius. Drugstores, sporting goods stores, restaurants, cafes, and a fruit and vegetable market are also within walking distance.
Ottakringer Wald Recreational Area:
In the immediate vicinity of the apartment, there are numerous green retreats, such as the Ottakringer Wald with its well-developed network of paths, as well as the connection to City Hiking Trail 4. This recreational area offers a variety of forest playgrounds, barbecue spots, and attractions such as Wilhelminenberg Castle or the Jubiläumswarte.
HARO parquet flooring made of oak in a rustic plank look
Modern porcelain stoneware in the bathroom, WC, kitchen, and storage room
Ceiling lighting with LED spots in the entrance hall, bathroom, and kitchen
New triple-glazed windows
LAUFEN Pro / Villeroy Boch branded sanitary ceramics
Shower system by Grohe with a rain thermostat, rain shower, and hand shower
Shower screen glazing with nanocoating and safety glass (tempered ESG)
Switches, sockets, and network outlets by Berker
MNPV GmbH
Real Estate Purchase and Sales,
Renting and Real Estate Consulting
FN 649248b
Company Register: Commercial Court Vienna
Email Contact: office (at) mnpv.at
Property characteristics
| Age | Over 5050 years |
|---|---|
| Layout | 2 bedroom |
| Listing ID | 1005078 |
| Price per unit | €5,204 / m2 |
| Condition | After reconstruction |
|---|---|
| Floor | 3. floor out of 5 |
| Usable area | 49 m² |
What does this listing have to offer?
| Basement | |
| MHD 2 minutes on foot |
| Lift |
What you will find nearby





Flat for saleAdolf Czettel Gasse, 9 Wien, 16. Bezirk, Ottakring 16. Bezirk Wien 1160- 2 bedroom
- 48 m²
€295,000
Still looking for the right one?
Set up a watchdog. You will receive a summary of your customized offers 1 time a day by email. With the Premium profile, you have 5 watchdogs at your fingertips and when something comes up, they notify you immediately.











