
House for sale 4+1 • 134 m² without real estateWacholderweg 3, , Brandenburg
The single-family home built in 2008 impresses with its unique architecture and offers generous living comfort over approximately 134 m² of living space, featuring modern technology and an open layout. All floors are equipped with underfloor heating powered by a geothermal heat pump (geothermal).
The large windows in the living-dining area open to the south terrace, which provides plenty of space for relaxed gatherings. The photovoltaic system feeds in about 10,000 kWh annually (average over the past 10 years) and benefits from an existing contract under the EEG, guaranteeing 0.4675€/kWh.
In addition, the property features a groundwater well and an unfinished double garage equipped with water, sewage, and high-voltage electricity connections.
The municipality of Dallgow-Döberitz in the Havelland district is known for its family-friendly and green character, with a convenient connection to Berlin (5 km to the city limits). Dallgow-Döberitz offers kindergartens, a primary school, a high school, doctors, restaurants, and all the necessary facilities for daily needs, including public transportation.
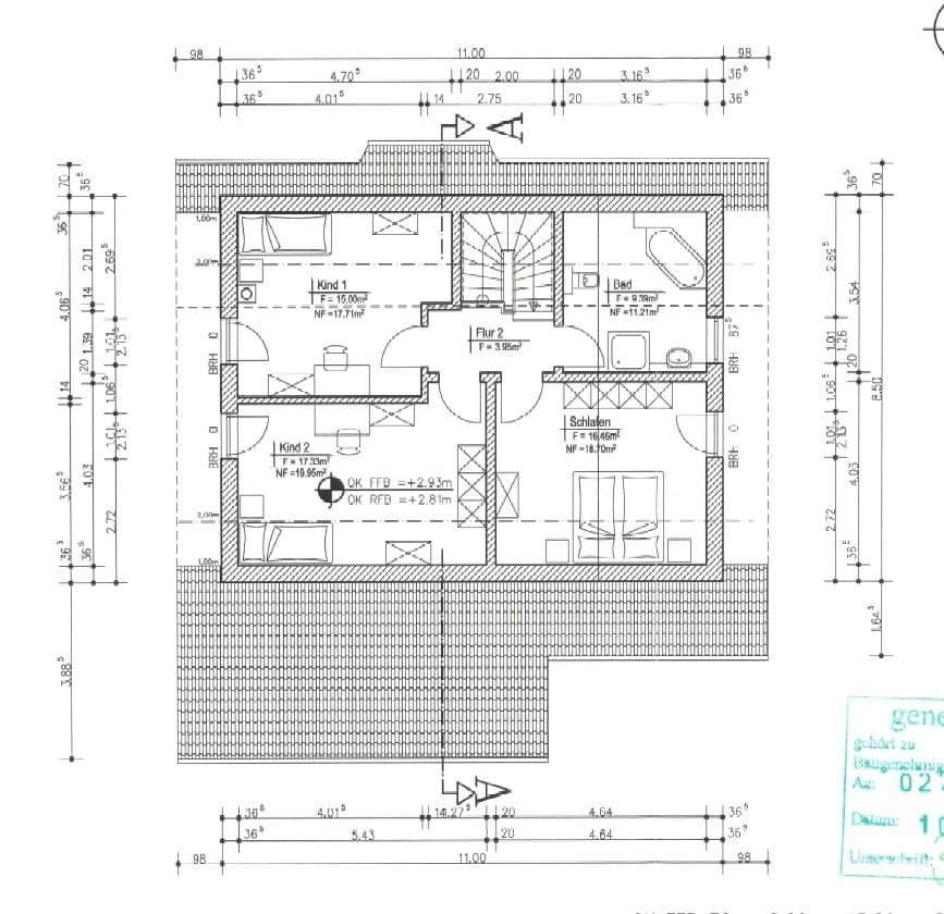
• 134 m² single-family home with a unique construction
• Generous plot of approximately 783 m²
• Solid construction using Liapor expanded clay (fire-resistant, Class A1 according to DIN 4102, highly thermally insulating, resistant to moisture and frost)
• 14 kW photovoltaic system (averaging 10,000 kWh per year)
• Knee wall height of 1.60 m
• Underfloor heating with geothermal deep drilling
• External roller shutters on the ground floor and upper floor (ground floor shutters are electric)
• Groundwater well 18 m deep
• Fiber optic connection available on the property
• Spacious south terrace of approximately 34 m²
• Double garage with an additional parking space
Property characteristics
| Age | Over 5050 years |
|---|---|
| Layout | 4+1 |
| EPC | A - Extremely economical |
| Land space | 783 m² |
| Price per unit | €7,351 / m2 |
| Condition | After reconstruction |
|---|---|
| Listing ID | 1002927 |
| Usable area | 134 m² |
| Total floors | 2 |
What does this listing have to offer?
| Garage | |
| Terrace |
| Parking |
What you will find nearby
Still looking for the right one?
Set up a watchdog. You will receive a summary of your customized offers 1 time a day by email. With the Premium profile, you have 5 watchdogs at your fingertips and when something comes up, they notify you immediately.


























