
Office to rent • 500 m² without real estateLondoner Ring 105 Ludwigshafen am Rhein Pfingstweide Rheinland-Pfalz 67069
Londoner Ring 105 Ludwigshafen am Rhein Pfingstweide Rheinland-Pfalz 67069Public transport 1 minute of walking • Parking • GarageLaboratory, Practice, Office, and Clean Room in Ludwigshafen-Pfingstweide
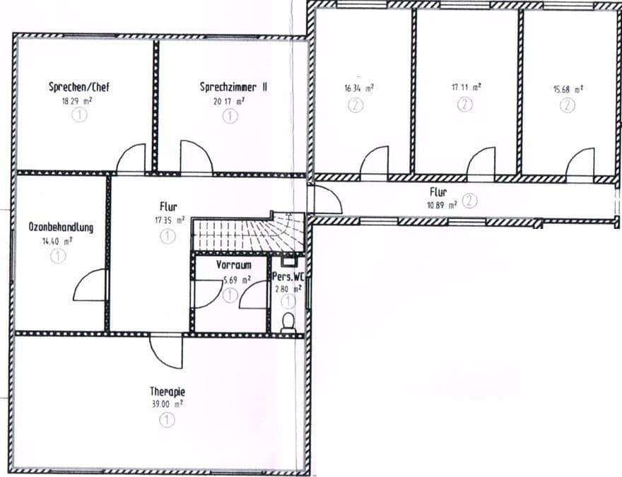
For rent are versatile laboratory, practice, office, and storage spaces in 67069 Ludwigshafen (Pfingstweide).
The premises are ideally suited for companies in medical technology, biotechnology, life sciences, for medical or therapeutic practices, as well as for laboratories or research operations.
The possibility of combining living and working in the building also exists.
Additionally, a large pool area with a pool approximately 3.3 m x 9.5 m in size, including a sauna, can optionally be rented on the basement level.
In total, approximately 500 m² are available, spread over the basement, ground floor, and upper floor, comprising laboratory rooms, practice and office spaces, as well as storage rooms. The rental price is approximately €10.00/m² and is negotiable depending on the area rented. The price stated in the exposé refers to the practice area on the ground floor; the rooms can be subdivided by arrangement.
Also on the basement level there are fully usable laboratory rooms, which are particularly suitable for laboratory, storage, or technical uses.
Part of the space is already furnished, as furniture and laboratory equipment have remained in the building from the previous tenant. These include, among other things:
• Laboratory cabinets / tall cabinets
• Refrigerators
• Safety benches and laboratory workstations
Some items of equipment can be taken over, adapted, or renewed upon agreement.
Equipment & Highlights
• Flexible use as laboratory, practice, office, or storage spaces
• Approximately 500 m² of total area, subdividable by arrangement
• Laboratory rooms also located in the basement
• Partially furnished / with existing laboratory equipment
• Water connections in several rooms
• Network cabling in all rooms
• Bright rooms with generous window areas
• Separate entrance area
• Possibility for sanitary and kitchenette areas
• Parking available at the property
• Good transport connections (A6, A650, public transport)
Location
The property is located in Ludwigshafen-Pfingstweide, a well-accessible and established area with quick links to the Rhine-Neckar region.
Contact
If you are interested or need further information, please feel free to contact us:
+49 176 78150188
Property characteristics
| Age | Over 5050 years |
|---|---|
| Listing ID | 1002165 |
| Price per unit | €0 / m2 |
| Condition | Good |
|---|---|
| Land office | 500 m² |
What does this listing have to offer?
| Wheelchair accessible | |
| Garage | |
| MHD 1 minute on foot |
| Basement | |
| Parking |
What you will find nearby
Still looking for the right one?
Set up a watchdog. You will receive a summary of your customized offers 1 time a day by email. With the Premium profile, you have 5 watchdogs at your fingertips and when something comes up, they notify you immediately.
































