
Office to rent • 932 m² without real estate, Rhineland-Palatinate
Representative Office & Exhibition Space in a Strategic Prime Location
This versatile commercial unit offers approximately 932 m², providing a perfect symbiosis between a modern working environment and functional workshop areas. Spread over three floors, the property impresses with an open architecture and first-class infrastructure.
Highlights of the Property:
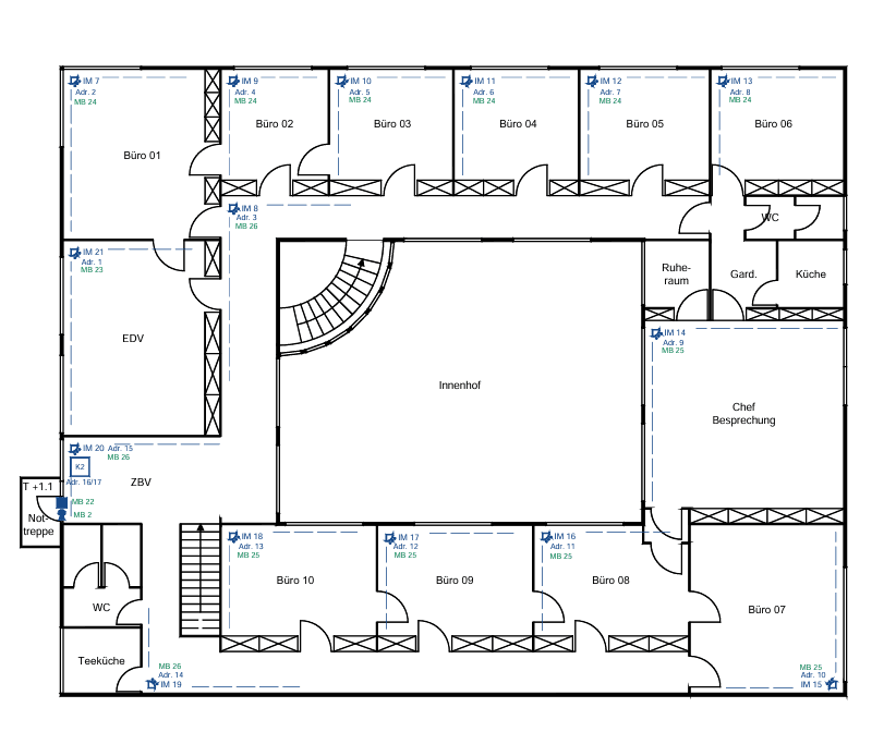
• Spacious Layout – A light-filled reception area and an open staircase with elegant glass cladding form the heart of the building, offering direct access to the well-maintained courtyard.
• Flexible Use – Thirteen bright office rooms and two representative meeting rooms are distributed on the ground and upper floors.
• Additional Areas – Two combined exhibition and workshop rooms on the ground floor provide space for presentations or technical work.
• Storage & Archive – Extensive archive and storage capacities in the fully basement area, as well as an external outdoor storage facility.
• Excellent Parking Situation – At least 30 private car parking spaces directly at the property guarantee stress-free access for employees and customers.
• Availability – Available by individual arrangement.
Strategically Unbeatable!
The property is located in the sought-after industrial area Fußgönheim, directly at the BAB 650. Its location in the economic triangle between Mannheim/Ludwigshafen and Bad Dürkheim/Grünstadt offers unbeatable accessibility:
• Connections to the A61 and B9 are reachable within a few minutes’ drive.
• Optimal visibility and logistics for your company.
• The location between Mannheim and Bad Dürkheim guarantees excellent accessibility for customers and employees from the entire Rhine-Neckar metropolitan region.
Additional Features:
• The entire building is continuously air-conditioned, ensuring a pleasant working climate in every season.
• Structured IT cabling meets modern IT requirements, along with an available fiber optic connection on site.
• A fully equipped kitchenette for break times.
• Separate WC units on both the ground and upper floors.
Property characteristics
| Condition | Good |
|---|---|
| Land office | 932 m² |
| Listing ID | 996663 |
|---|---|
| Price per unit | €0 / m2 |
What does this listing have to offer?
| Basement | |
| Parking | |
| Terrace |
| Lift | |
| MHD 2 minutes on foot |
What you will find nearby
Still looking for the right one?
Set up a watchdog. You will receive a summary of your customized offers 1 time a day by email. With the Premium profile, you have 5 watchdogs at your fingertips and when something comes up, they notify you immediately.
































