
House for sale 5+1 • 137 m² without real estate, Lower Saxony
Below is the English translation of the text:
With the property offered here, you can enjoy the benefits of a vibrant town in close proximity to the large city of Hamburg combined with the diversity of nature. This nearly new single-family home is located near the center and offers plenty of space thanks to its large plot. The house is situated at the end of a quiet cul-de-sac in the third row.
The single-family home was built in 2011 by regional companies and was moved into and maintained by the current owners in 2012. The natural surroundings of the plot provide a space for a retreat in the green as well as plenty of room for children or pets to romp and play.
The property offers you the following features:
A spacious combined living and dining area floods the home with light through a large window façade facing south. A cozy atmosphere is also enhanced by a fireplace stove. The adjacent kitchen is modern and equipped with nearly new appliances. The open passage between the kitchen and the living/dining area promotes shared cooking and enjoyment.
On the ground floor, there is also a utility room with connections for a washing machine and dryer. This area also houses the storage for the photovoltaic system. In addition, you can access a guest or office room and a guest bathroom with a shower from this level.
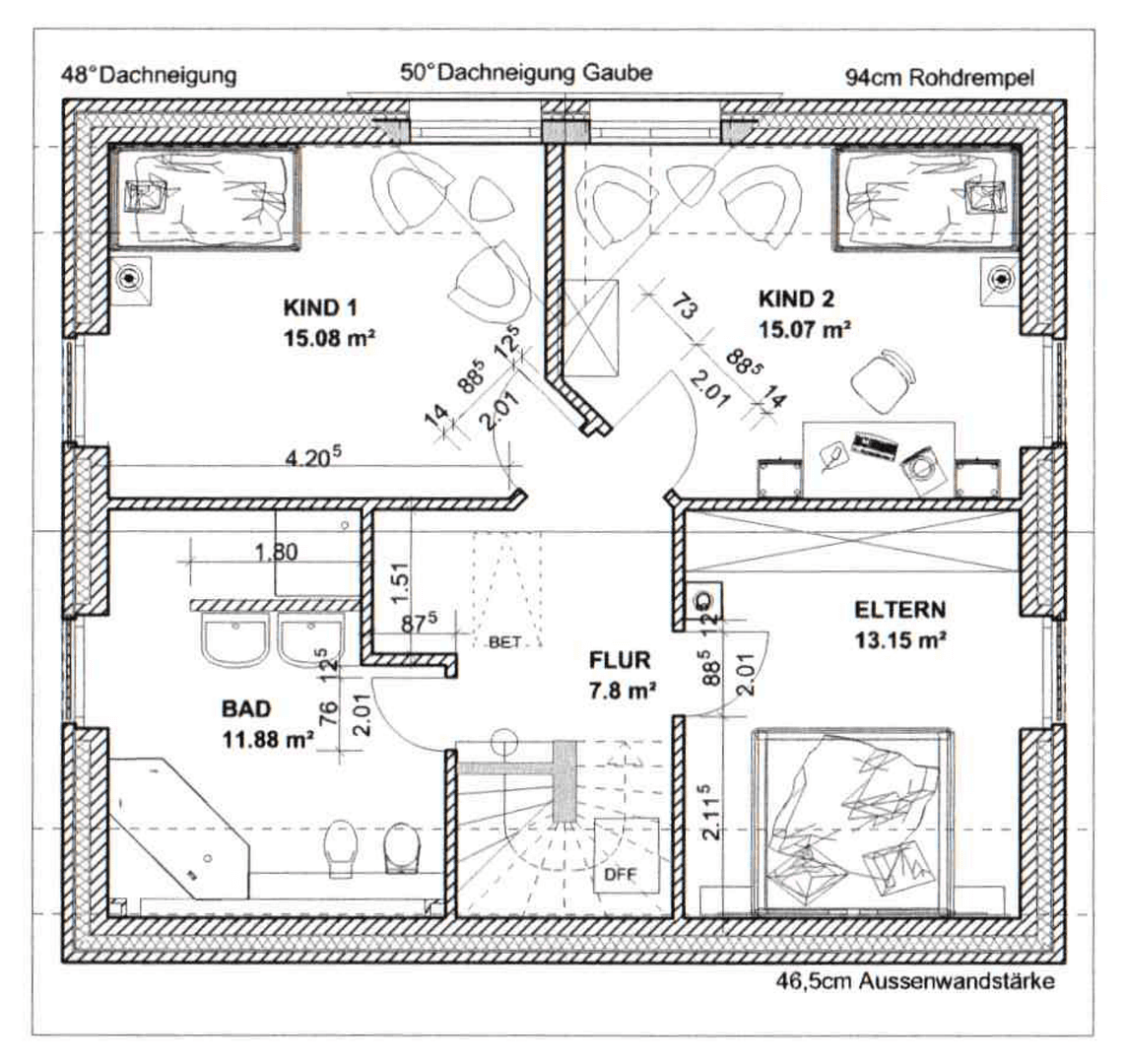
On the upper floor of the house, there are three comfortable bedrooms. These benefit from available air conditioning, offering individual moments of comfort. The full bathroom with natural light, a large bathtub, and a walk-in shower completes the layout. From the hallway, you have direct access to the attic, where there are two additional heated rooms that can be used as an office, children’s room, or even a fitness area.
Additional features include:
- A large, natural 903 m² plot offering various possibilities
- A spacious southwest terrace for relaxation
- A carport with an adjacent shed
- A wallbox for your electric car
- A photovoltaic system with storage
- Underfloor heating throughout the ground and upper floors, as well as a heated towel rack in the full bathroom
- Electric shutters
- VDSL 250 MBit/s available
- Conduit available for a fiber optic connection
Let yourself be captivated by this cozy, nature-oriented single-family home.
Just outside the gates of the Hanseatic city of Hamburg lies Buchholz in der Nordheide. With its districts, Buchholz is home to approximately 40,000 residents and especially offers families both high quality of living and a variety of leisure opportunities.
The property offered here is located near the center of Buchholz, which is reachable on foot in 25 minutes. In addition to shops for everyday necessities, there is a broad range of leisure activities available such as golf, tennis, and much more. The nearby Buchholz city park and the Lüneburg Heath also offer numerous options for activities, whether for long walks, cycling tours, or simply enjoying nature. Good healthcare is ensured by several medical practices, pharmacies, and the Buchholz hospital. The culinary scene in Buchholz and its surroundings is varied as well. For everyday needs, conveniently located supermarkets and discount stores are within reach. For instance, Aldi and a bakery can be reached on foot in just a few minutes.
Kindergartens as well as the school center II Am Kattenberge with a grammar school and a secondary school are located in the immediate vicinity.
Buchholz train station can be reached on foot in 20 minutes and offers a quick connection to Hamburg, Bremen, and neighboring cities. The highways A1 and A7 are also accessible within minutes, which makes commuting to the metropolitan region very convenient. Buchholz is thus ideal for families, nature lovers, and commuters alike.
This location in Buchholz in der Nordheide offers families a harmonious combination of security, first-class infrastructure, and diverse leisure opportunities – a place where children can grow up carefree and parents can shape a sustainable future.
Please include your full name, your current address, and a telephone number when making inquiries.
Property characteristics
| Age | Over 5050 years |
|---|---|
| Layout | 5+1 |
| EPC | A - Extremely economical |
| Land space | 903 m² |
| Price per unit | €4,891 / m2 |
| Condition | Very good |
|---|---|
| Listing ID | 1001771 |
| Usable area | 137 m² |
| Total floors | 2 |
What does this listing have to offer?
| Parking | |
| Terrace |
| MHD 2 minutes on foot |
What you will find nearby
Still looking for the right one?
Set up a watchdog. You will receive a summary of your customized offers 1 time a day by email. With the Premium profile, you have 5 watchdogs at your fingertips and when something comes up, they notify you immediately.















