
Flat for sale 1 bedroom • 40 m² without real estateHamburg Tonndorf Hamburg 22045
This charming 1-room apartment with approximately 40 m² of living space is located on the first floor of a well-maintained multi-family building built in 1996 in Hamburg-Tonndorf. The apartment was comprehensively renovated in 2023. A balcony facing the street is available. Heating is provided via a central heating system using natural gas. The energy certificate indicates a consumption of 85.21 kWh/(m²·a) and belongs to efficiency class C.
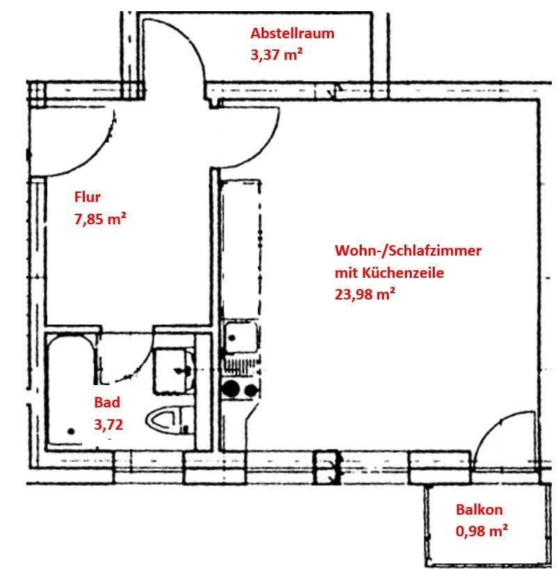
The pantry kitchen is tenant’s property.
The property is situated in a lively residential area in Hamburg. Bus lines 11, 608, and 9 operate nearby. Within walking distance, there are several restaurants, supermarkets, doctors, a bakery, and a café. You will also find several green spaces and parks, fitness studios, and a pharmacy.
The apartment, which was renovated (with entirely new adhesive vinyl flooring, a new fuse box, partly new electrical wiring, new sockets and switch plates, new doors and frames), is rented out under a graduated rent contract since September 15, 2023. The current net cold rent is €545.00 plus €190 in additional costs. In 2024, I refunded nearly €900 to the tenant. The photos were, of course, taken before move-in.
Property characteristics
| Age | Over 5050 years |
|---|---|
| Layout | 1 bedroom |
| Listing ID | 1001742 |
| Usable area | 40 m² |
| Condition | After reconstruction |
|---|---|
| Floor | 1. floor out of 4 |
| EPC | C - Economical |
| Price per unit | €4,950 / m2 |
What does this listing have to offer?
| Balcony |
| MHD 1 minute on foot |
What you will find nearby
Still looking for the right one?
Set up a watchdog. You will receive a summary of your customized offers 1 time a day by email. With the Premium profile, you have 5 watchdogs at your fingertips and when something comes up, they notify you immediately.















