
House for sale 6+1 • 187 m² without real estateBergweg 92, , Baden-Württemberg
This exceptional house impresses with a plot area of 287 m² and a generous living area of approximately 187 m². Up to three vehicles can be accommodated on the property.
Rarely can you find such a combination of location, size, and features. The house stands out with its well-thought-out layout, high-quality interior design, high ceilings, and a breathtaking view of the greenery. The large southwest terrace and the garden create a sanctuary of well-being with plenty of room for relaxation.
Modernization & Energy Efficiency at a High Level:
The house was built in 2003 and comprehensively modernized in 2021 – including high-quality renovations of the bathrooms, floors, kitchen, doors, and bedroom, as well as the installation of an air conditioning system on the upper floor. In addition, the house features a modern photovoltaic system with 19 solar panels, which helps reduce energy costs. Underfloor heating provides pleasant warmth and extra living comfort in the bathrooms and living areas. Electric shutters on all windows offer convenience, security, and optimal light regulation throughout the house. The gas central heating was completely replaced in 2023 by a significantly more efficient heating system.
On the main floors (ground floor and upper floor), beautiful oak parquet and light natural vinyl flooring have been laid. The custom-built fitted kitchen with a stone countertop and high-end appliances leaves nothing to be desired. The cozy fireplace in the living room perfectly rounds off the inviting living atmosphere.
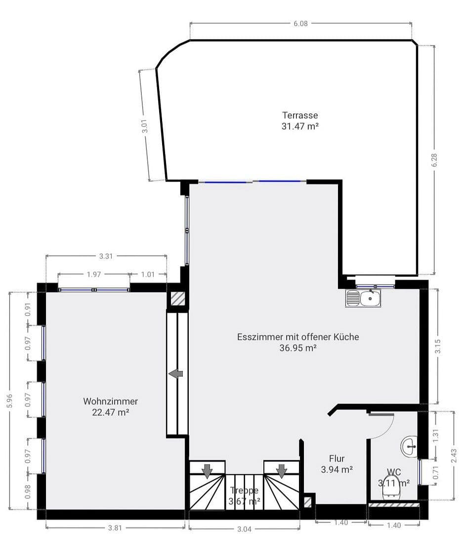
With a total of 6 rooms, the house offers flexible design options. The light-filled living room with an open fireplace and direct access to the terrace is the heart of the house. The garden is ideal for families with children or for creating a private relaxation area.
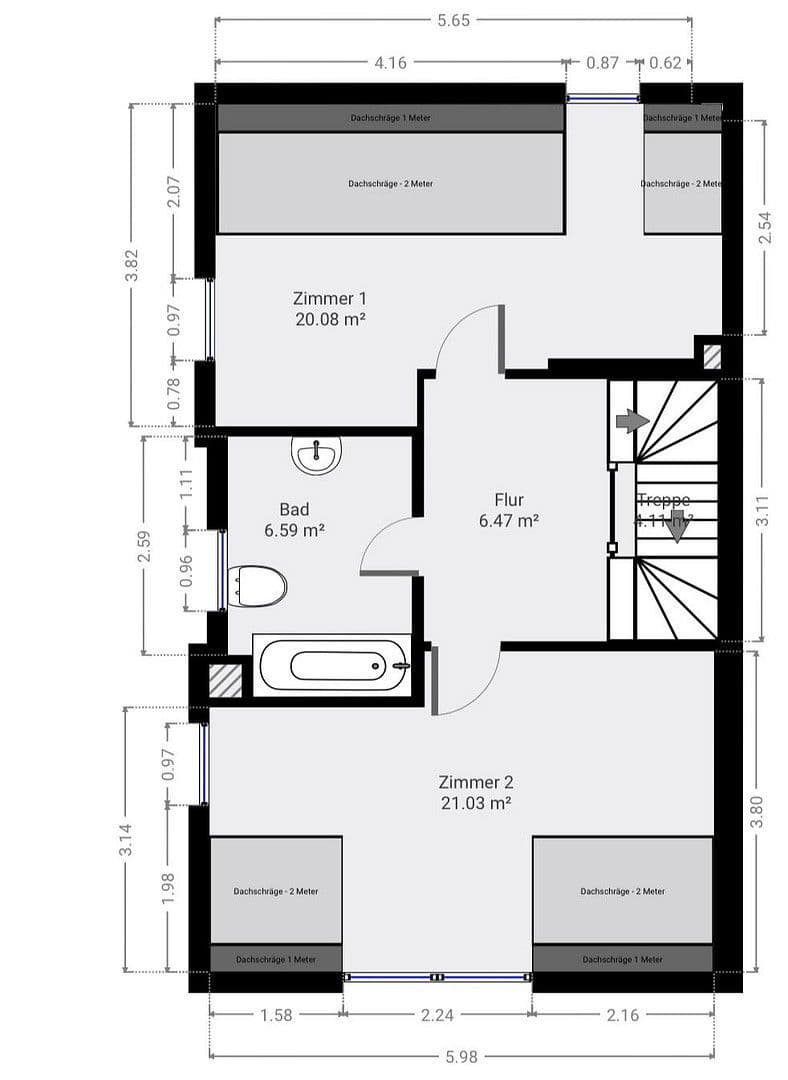
On the upper floor you will find a large bedroom, a children's room, and a spacious bathroom with a walk-in glass shower, double sinks, and high-quality sanitary fittings. Both rooms are equipped with modern air conditioning systems (built in 2021) and vinyl flooring.
On the ground floor there are two additional versatile rooms (e.g., office, hobby room), a second full bathroom, and a practical utility/technical room. An additional storage room in the basement completes the space offering.
The southwest-facing garden offers plenty of sunshine, tranquility, and a picturesque view of the greenery. Whether you desire garden furniture, children’s play equipment, a vegetable patch, or a wellness oasis – this outdoor area leaves nothing to be desired.
Ground Floor (EG):
- 66.43 m² living area
- Large garage with extra storage room
- Utility room
- Hobby room (office/guest room)
- Bedroom
- Daylight bathroom with shower, bidet, WC & underfloor heating
Upper Floor (OG):
- 75.75 m² living area
- Living area with wood-burning fireplace
- Dining area
- Open modern kitchen
- Pantry
- Guest WC
- Southwest terrace with awning and garden
Attic (DG):
- 45.8 m² living area
- 2 children’s rooms
- Modern bathrooms
- Access to the loft
Furnishing
- Construction: Solid
- Energy Efficiency Class: B, valid until 2031
- Gas central heating 2023
- Solar system
- Air conditioning with converter technology from 2021
- Electric shutters
- Real wood parquet on the upper floor
- Vinyl flooring on the ground floor and attic
- Modern kitchen with wine refrigerator
- Intercom with camera and fingerprint door opener from Busch Jäger
- Underfloor heating in the living and dining areas as well as in the bathrooms
- Network cabling and WLAN throughout the house
- Cistern
- Garden shed
- Vehicle parking: large garage – 8.5m deep and 2.8m high with access to the house + 2 outdoor parking spaces
- Electric garage door with access to the house
- High-quality fly screens in the living and sleeping areas
- Network cabling with CAT7
Aidlingen offers an attractive combination of a nature-close, peaceful location and very good infrastructure. Families benefit from the wide range of schools and kindergartens, while commuters appreciate the quick connection to the Stuttgart region. This makes the town an ideal place to live for people who value quality of life, community, and good accessibility.
Deufringen, a district of Aidlingen, is located about 10 km west of Böblingen, nestled in the picturesque Heckengäu between the low mountain ranges of the Black Forest and the Swabian Alb. The surrounding landscape is characterized by nature protection and recreational areas.
The transport connections are excellent: via the nearby A81 motorway, accessible through the Ehningen or Gärtringen junctions, you quickly reach Stuttgart or the south. There are also regular bus connections directly linking Aidlingen with Böblingen, Sindelfingen, and Calw. Particularly convenient is the line to Ehningen station, from where you can easily reach Stuttgart by the S-Bahn (S1). The train stations in Ehningen and Weil der Stadt can also be reached by car in just a few minutes.
For families, Aidlingen offers an excellent educational provision. In addition to the centrally located Buchhalden Elementary School, there is the Schallenberg School in Deufringen/Dachtel, which impresses with its sports and movement-oriented concept and features its own gymnasium and a teaching swimming pool.
The further education Sonnenberg-Werkrealschule is modernly equipped and places great emphasis on practical, career-oriented training.
Even the care of the youngest is excellently organized in Aidlingen. Several municipal and private kindergartens, such as the Sonnenschein Kindergarten, ensure loving and professional childcare.
Property characteristics
| Age | Over 5050 years |
|---|---|
| Condition | After reconstruction |
| Listing ID | 1001655 |
| Usable area | 187 m² |
| Total floors | 3 |
| Available from | 16/03/2026 |
|---|---|
| Layout | 6+1 |
| EPC | B - Very economical |
| Land space | 287 m² |
| Price per unit | €4,465 / m2 |
What does this listing have to offer?
| Basement | |
| Parking | |
| Terrace |
| Garage | |
| MHD 7 minutes on foot |
What you will find nearby
Still looking for the right one?
Set up a watchdog. You will receive a summary of your customized offers 1 time a day by email. With the Premium profile, you have 5 watchdogs at your fingertips and when something comes up, they notify you immediately.





















