
House to rent 5+1 • 153 m² without real estateBoschstraße 6 Heldenstein Heldenstein Bayern 84431
This high-quality, fully basement house built in reinforced concrete construction combines two identical residential units, each with 153 m² of living space. One unit faces southwest, the other southeast – both impress with modern living comfort and a well-planned layout.
Each unit features its own entrance, a spacious garden, and a sunny south terrace – just like a semi-detached house.
Both units are currently being completed and will be available for rent starting 01.06.2026.
HIGHLIGHTS
· Spacious living and dining area with an open kitchen (48 m²) – perfect for living and cooking
· Beautiful exposed rafter made of waxed spruce wood with a roof window – providing a warm atmosphere and natural light
· Energy efficiency class A+: modern heat pump, underfloor heating, and a PV system with an optional tenant electricity model (GGV)
· Central ventilation system with heat recovery – fresh air all year round, ideal for allergy sufferers
· LED recessed spotlights in the kitchen, entrance area, cloakroom, and guest WC
· Electric shutters on all windows – app control possible
· High-quality vinyl design floors in an oak look and large format beige tiles
· Wallbox preparation for e-mobility
· Water softening system for gentle water
· Fiber optic internet
· Commission-free – no broker fees
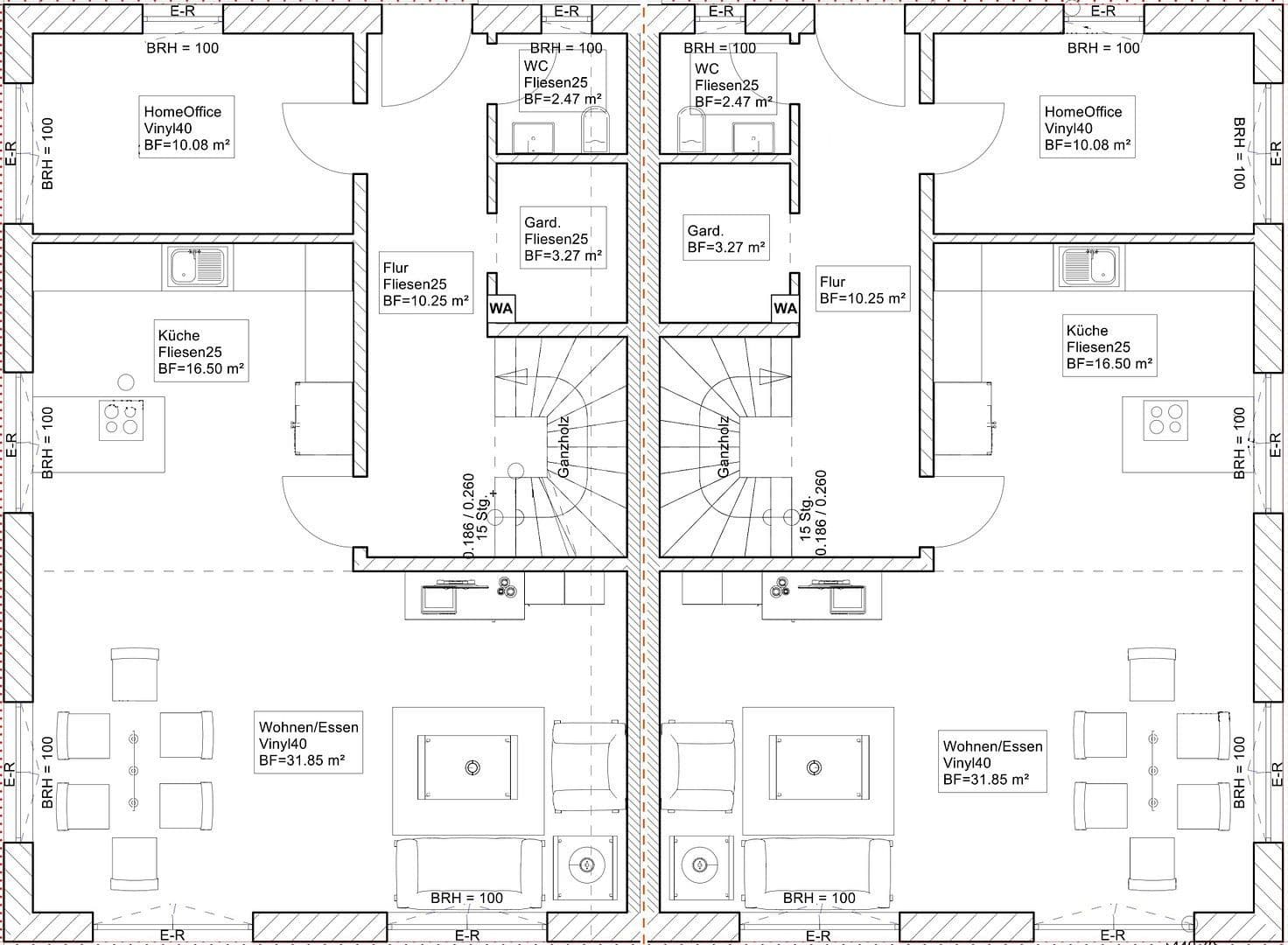
GROUND FLOOR
A private front door on the north side leads you into a bright entrance area equipped with a practical cloakroom niche. The ground floor offers a guest WC with a daylight window and rimless WC, as well as an additional flexible room that can be used as desired. From the spacious living and dining area, you gain direct access to the sunny south terrace.
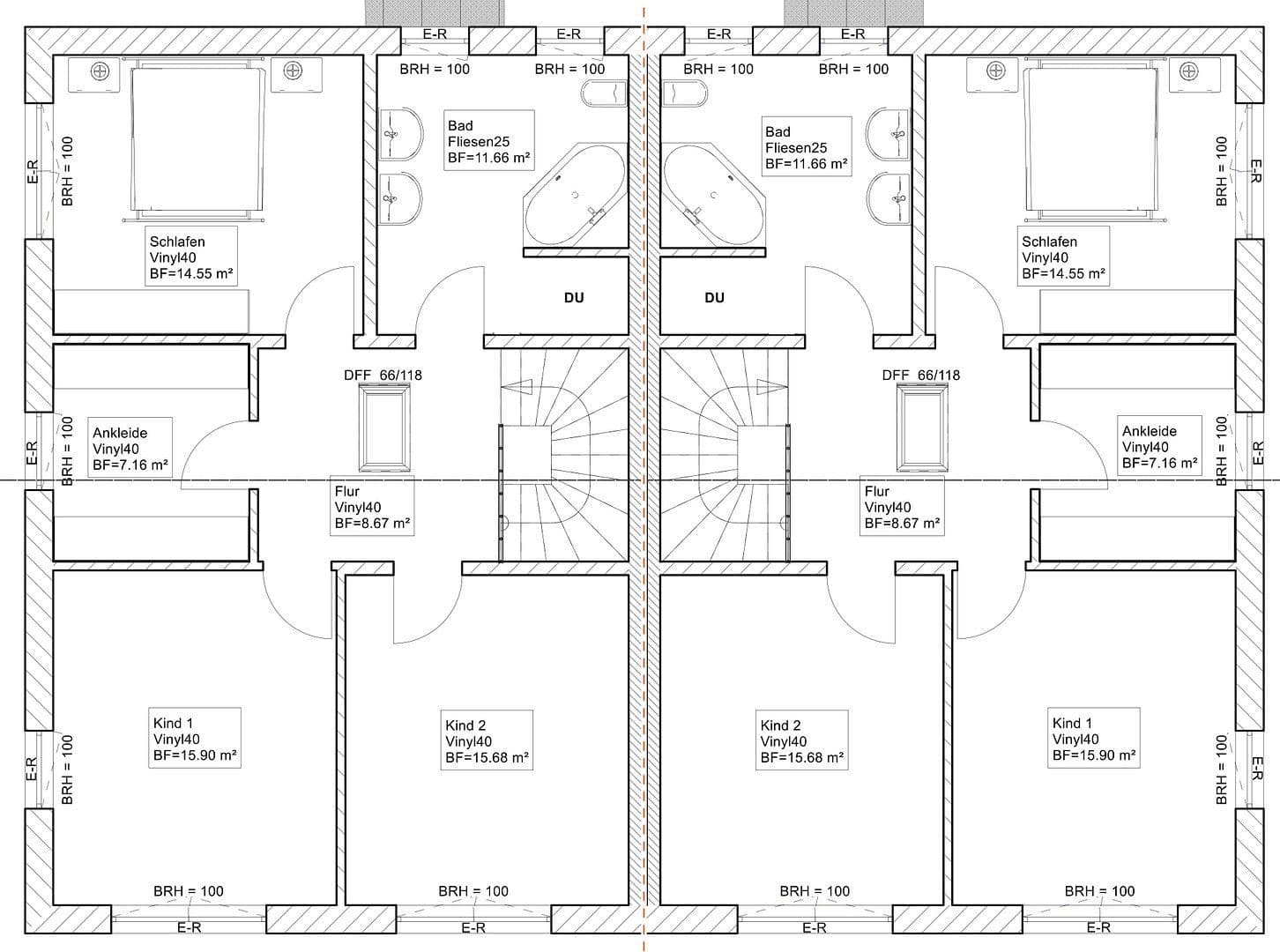
ATTIC
An open spiral staircase made of lacquered beech wood leads you to the attic. The roof window ensures pleasant daylight. Three bedrooms, each approximately 15 m², invite you to relax. An additional room can be used flexibly, for instance as a dressing room. The bathroom features large format tiles, a bathtub, a walk-in shower with storage niches, two washbasins, and a heated towel rail. A rimless WC completes the modern and easy-to-maintain equipment.
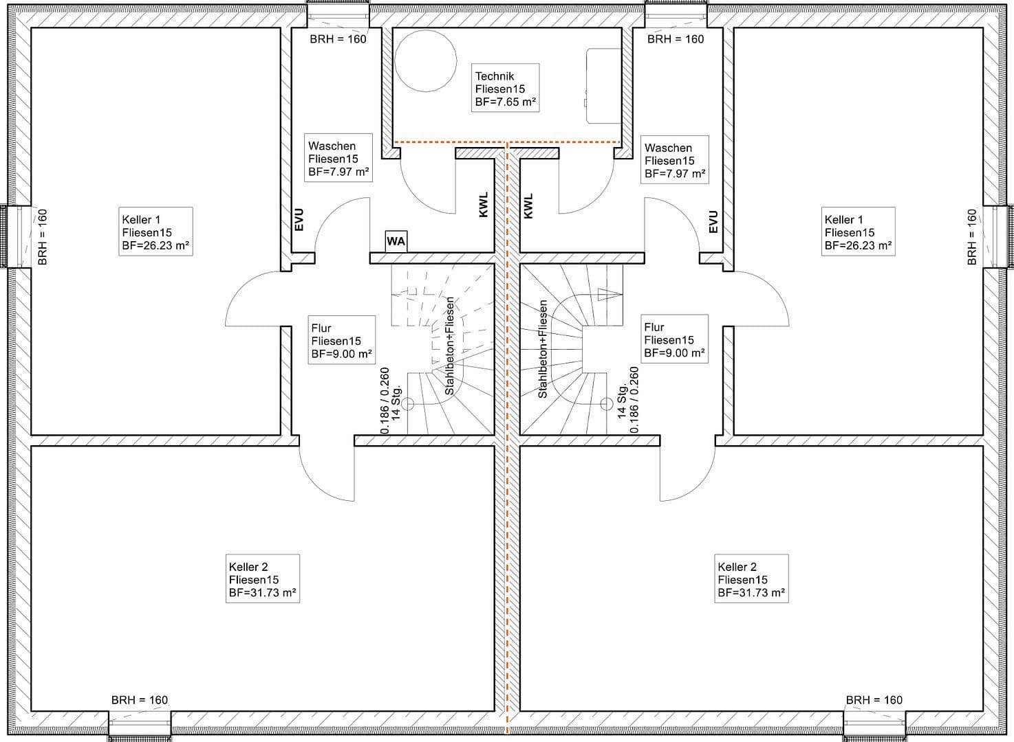
BASEMENT
The heat pump in the shared technical room supplies both residential units with hot water and heating. The water softening system is also located there.
The basement level offers about 75 m² of personal, usable space per unit and is fully tiled. In the utility room you will find the central ventilation system, a utility sink, and the connections for a washing machine and tumble dryer. Two spacious basement rooms provide plenty of storage space for everything a home may require.
TERRACE, GARDEN & DRIVEWAY
The outdoor facilities will be completed at the end of April. The driveway will be paved. A sunny south terrace invites you to relax – equipped with outdoor lighting, an electrical connection, and a water connection for garden irrigation. The garden offers plenty of space for your time in the green:
· Southwest unit: approximately 155 m² garden with a 15 m² terrace
· Southeast unit: approximately 190 m² garden with a 15 m² terrace
The house is located in a quiet residential area. Heldenstein is a modern community of about 3,000 inhabitants in the district of Mühldorf am Inn, combining rural tranquility with urban proximity.
With the A 94 motorway, Munich is conveniently reachable in about 35 minutes. For those who prefer the train, Munich Ostbahnhof can be reached in about 60 minutes.
For everyday needs, everything is well provided for. An EDEKA with a butcher and bakery, as well as a cozy inn, are located directly in town. Sports fields, daycare centers, kindergartens, and primary schools are partly within walking distance, making Heldenstein a particularly family-friendly home. The nearby towns of Ampfing, Waldkraiburg, and Mühldorf also offer a comprehensive range of doctors, a hospital, supermarkets, banks, restaurants, and much more.
DOORS
The aluminum front door with a glass insert is equipped with a doorbell button. A video doorbell is prepared. Inside the house, white interior doors create a bright and friendly atmosphere.
WINDOWS
White uPVC windows and a roof window with triple glazing ensure optimal thermal insulation.
CONNECTIONS
Fiber optic internet with a LAN connection in the living room (2×), hallway, home office, and in all bedrooms. SAT connections are prepared in the bedrooms and the living room.
FLOOR COVERINGS
High-quality vinyl design flooring in an oak look is present in the attic, home office, and the living and dining area.
Large format beige tiles are laid in the entrance area, kitchen, bathroom, and guest WC. The basement staircase and the basement itself are fully tiled.
PARKING SPACES
Each half of the house includes two parking spaces and an 11 kW wallbox preparation.
I look forward to your inquiry! Please feel free to contact me via message.
Important:
· Non-smokers preferred; unfortunately, pets are not allowed.
· I am looking for tenants who appreciate a long-term home – therefore, both parties waive the termination of the rental contract for 4 years.
Rent: €1,760 per month
Additional costs: €280 per month
Two car parking spaces: €50 per month
Security deposit: €5,280 (3 months’ net cold rent)
Broker inquiries are not desired.
Property characteristics
| Age | Over 5050 years |
|---|---|
| Condition | New-build |
| Listing ID | 1001648 |
| Usable area | 153 m² |
| Total floors | 2 |
| Available from | 01/06/2026 |
|---|---|
| Layout | 5+1 |
| EPC | A - Extremely economical |
| Land space | 684 m² |
| Price per unit | €12 / m2 |
What does this listing have to offer?
| Basement | |
| MHD 8 minutes on foot |
| Parking | |
| Terrace |
What you will find nearby
Still looking for the right one?
Set up a watchdog. You will receive a summary of your customized offers 1 time a day by email. With the Premium profile, you have 5 watchdogs at your fingertips and when something comes up, they notify you immediately.





























