
House for sale • 277 m² without real estateButzweiler Str. 52, , Rhineland-Palatinate
This generously sized, solidly built house was constructed around 1976 and has been continuously modernized over the years. Due to the numerous updates, it has a fictitious construction year of approximately 1997. The property is located in a quiet and pleasant residential area of Kordel and impresses with a well-thought-out layout and excellent overall condition.
The house offers a variety of usage possibilities:
It is ideally suited as a spacious single-family home, multi-generation house, or even as a house with a secondary apartment. With a few adjustments, the property can also be easily used as a three-family house.
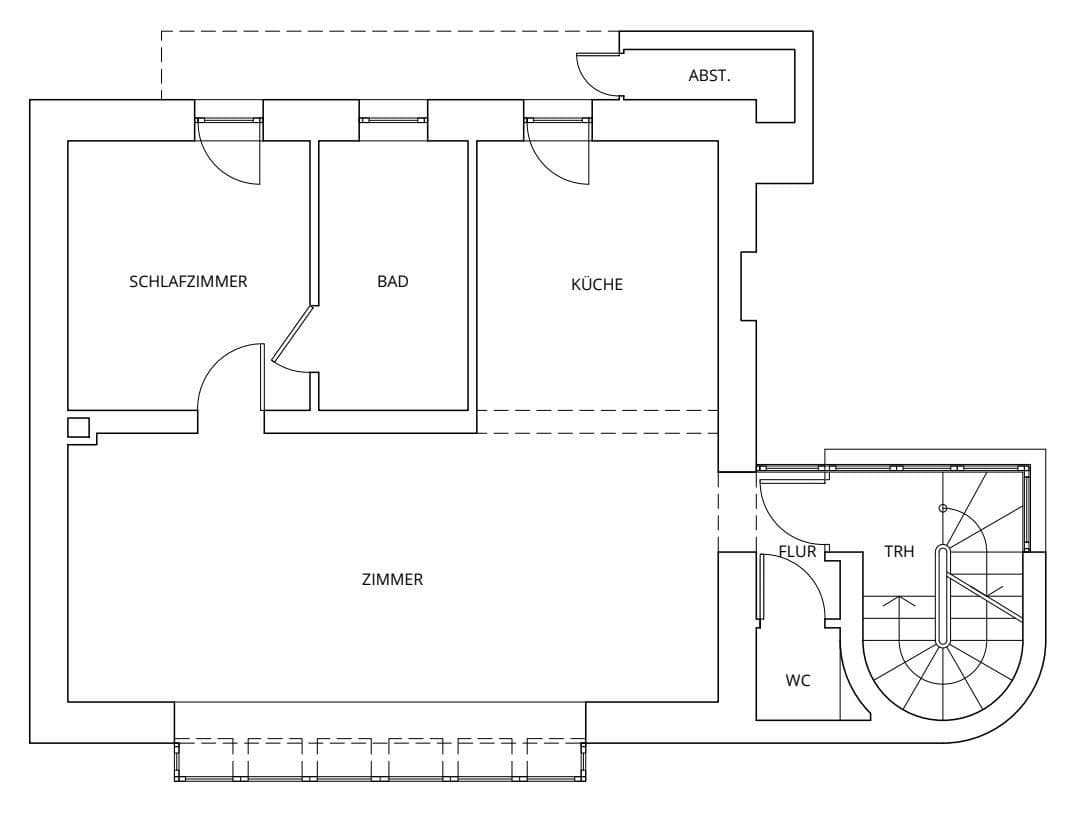
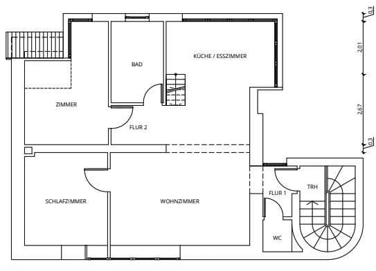
On the ground floor, you will find a spacious and light-flooded living room with an adjoining kitchen. Additionally, there is another room on this floor that is ideal as a guest room or office, with direct access to the bathroom.
The first floor features two bedrooms, a bathroom, as well as another large living room with an adjoining kitchen.
In the attic, there is a studio room and a compact bathroom, providing additional living space with versatile usage possibilities.
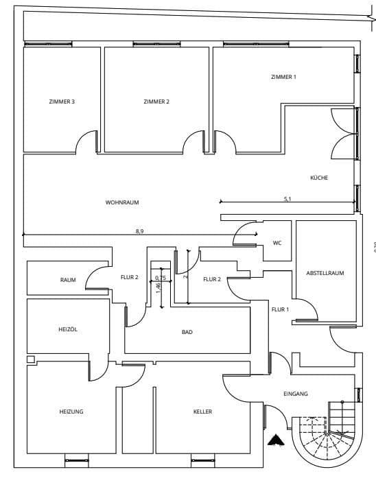
The house is fully basemented and offers several basement rooms with plenty of storage and storage space. Additionally, the basement includes three bedrooms, a large living room with an integrated kitchen, as well as a bathroom and a guest WC.
From the ground floor, you can access the spacious terrace, which invites you to relax and linger.
The energy certificate is currently being prepared.
Broker inquiries are expressly not desired and will not be answered.
Property characteristics
| Age | Over 5050 years |
|---|---|
| Condition | Very good |
| Usable area | 277 m² |
| Total floors | 3 |
| Available from | 15/03/2026 |
|---|---|
| Listing ID | 1001466 |
| Land space | 803 m² |
| Price per unit | €899 / m2 |
What does this listing have to offer?
| Basement | |
| Parking | |
| Terrace |
| Garage | |
| MHD 5 minutes on foot |
What you will find nearby
Still looking for the right one?
Set up a watchdog. You will receive a summary of your customized offers 1 time a day by email. With the Premium profile, you have 5 watchdogs at your fingertips and when something comes up, they notify you immediately.
































