
House for sale 7+1 • 127 m² without real estate, Lower Saxony
This well-maintained end-terrace house in the quiet residential area of Achim-Uphusen offers ideal conditions for families seeking a comfortable home with a good layout and a pleasant living environment. The combination of a practical floor plan, garden, and good transport connections makes this property particularly attractive.
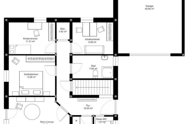
Over approximately 126 m² of living space, bright and functional rooms are distributed that provide both space for a shared family life and for individual retreats.
On the ground floor, you are welcomed by a friendly, tiled entrance area with a guest WC and a window. From here, the electricity supply for the garden house or parking space is also controlled. The existing fitted kitchen adjoins directly to the spacious living and dining area. Large windows provide plenty of daylight and create a pleasant living atmosphere. From the living area, you have direct access to the terrace and the garden – ideal for relaxing hours outdoors.
A practical utility room with meters offers ample space for household appliances, supplies, and additional storage options.
On the upper floor, there are three bedrooms available. Two children’s rooms are equipped with cork flooring and a satellite TV connection. The master bedroom features an additional nook that is ideal as a wardrobe/dressing area. The fully tiled daylight bathroom is equipped with a bathtub, shower screen, and towel radiator. The existing underfloor heating is fed via the water return system.
The attic expands the available space and can be used both as a guest room and for additional storage.
The house is heated by a gas heating system from 2003, which has been regularly maintained. Some electric shutters are available.
This property offers an attractive combination of a quiet location, functional layout, and family-friendly living comfort.
The end-terrace house is located in a calm and sought-after residential area in the Achim district of Uphusen, a particularly popular address within the immediate catchment area of the Hanseatic city of Bremen. The surroundings impress with well-maintained residential buildings, little traffic, and a pleasant, family-friendly neighborhood.
The combination of living close to nature and excellent infrastructure makes this location particularly attractive. Shopping options for daily necessities, supermarkets, bakeries, doctors as well as kindergartens and schools are quickly accessible, ensuring short daily distances. The nearby Achim center complements the offer with a variety of shopping, dining, and leisure options.
Commuters benefit from the excellent transport connections: the A1 motorway, as well as the A27 motorway, provide quick access to Bremen, Verden, and the surrounding economic regions. In addition, Achim station offers regular train services towards Bremen and Hanover.
Numerous green spaces, walking and cycling paths, as well as the charming Weser landscape in the area provide high recreational and relaxation value, creating an ideal balance between urban proximity and relaxed living in the countryside.
Features:
• Gas heating system from around 2003 (regular maintenance)
• Double-glazed PVC windows circa 2003
• External shutters (partially electric)
Ground floor (approx. 54.27 m²):
• 1 Living room – approx. 22.96 m²
• 1 Kitchen with fitted kitchen – approx. 8.09 m²
• 1 Utility/storage room – approx. 5.08 m²
• 1 Guest WC – approx. 2.14 m²
• 1 Dining/hallway – approx. 16.00 m²
Upper floor (approx. 51.50 m²):
• 1 Master bedroom – approx. 10.07 m²
– Dressing area – approx. 5.09 m²
• 1 Child’s bedroom 1 – approx. 11.98 m²
• 1 Child’s bedroom 2 – approx. 10.39 m²
• 1 Bathroom – approx. 7.50 m²
• 1 Hallway/staircase – approx. 5.66 m²
Attic (approx. 25.04 m²):
• 1 Guest/storage room – approx. 15.46 m²
• 1 Heating/storage room – approx. 9.58 m²
Plot (approx. 353 m²):
• 1 Parking space – approx. 20 m²
• 1 Garden house at the front (for bicycles/car/storage) – approx. 20 m²
• 1 Glass-covered terrace with shading – approx. 16 m²
• 1 Small garden house (for garden tools/furniture) – approx. 2 m²
• 1 WPC terrace, to the side – approx. 20 m²
• 1 Garden fountain with pump
Purchase price negotiable.
Property characteristics
| Age | Over 5050 years |
|---|---|
| Layout | 7+1 |
| EPC | D - Less economical |
| Land space | 353 m² |
| Price per unit | €2,898 / m2 |
| Condition | Good |
|---|---|
| Listing ID | 1001160 |
| Usable area | 127 m² |
| Total floors | 2 |
What does this listing have to offer?
| Parking | |
| Terrace |
| MHD 0 minutes on foot |
What you will find nearby
Still looking for the right one?
Set up a watchdog. You will receive a summary of your customized offers 1 time a day by email. With the Premium profile, you have 5 watchdogs at your fingertips and when something comes up, they notify you immediately.














