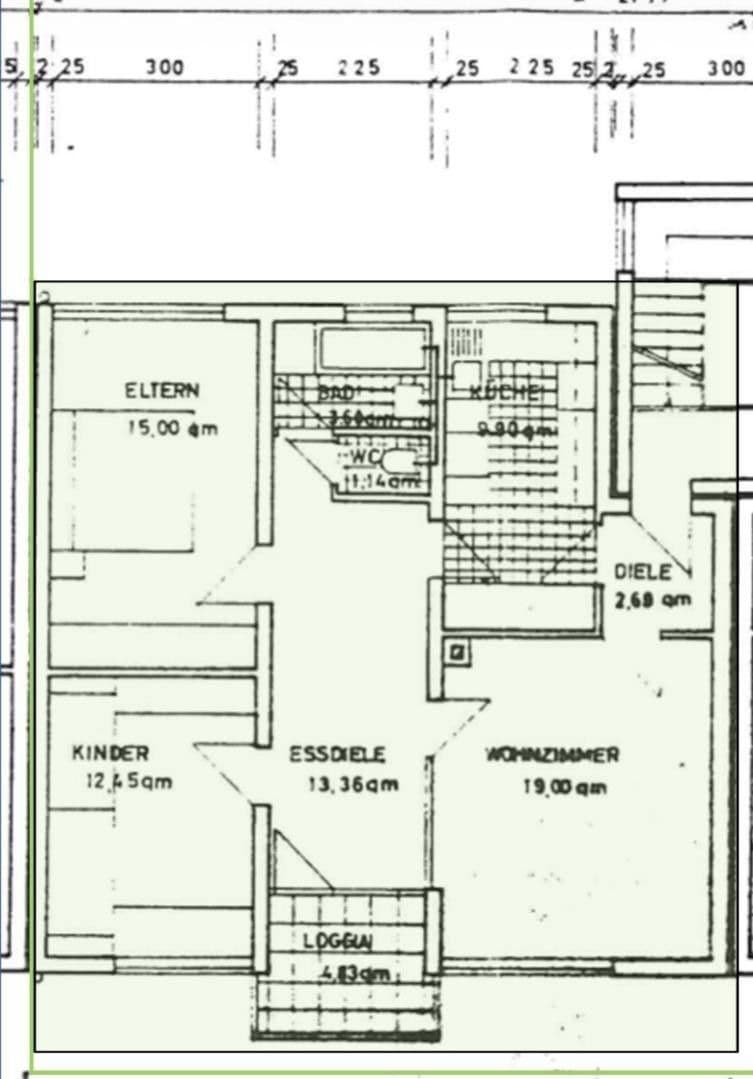
Flat for sale 3+kk • 80 m² without real estateAlbrechtstrasse 5, , Baden-Württemberg
Albrechtstrasse 5, , Baden-WürttembergPublic transport 2 minutes of walking • Parking • GarageFor sale is a very bright and fully renovated 3.5-room apartment on the second floor of a well-maintained multi-family house in a quiet residential area.
The apartment is located at Albrechtstraße 5 in 77933 Lahr and impresses with a pleasant living atmosphere as well as good infrastructure.
During the renovation, all electrical wiring was replaced and some of the water pipes were modernized, so the apartment is technically in very good condition. Large windows provide plenty of daylight, making the rooms especially friendly and bright.
A balcony offers additional living comfort and invites you to relax.
The apartment also comes with a garage, with another vehicle conveniently parkable in front – a major advantage regarding parking.
The building itself has also been modernized in recent years:
• In 2020, the facade was completely insulated
• The roof was entirely renewed
Hot water is produced using electricity.
The apartment is located on a quiet residential street in Lahr with a pleasant neighborhood. Shopping facilities, schools, kindergartens, and doctors are reachable within minutes.
The city center of Lahr is quickly accessible and offers numerous shops, restaurants, and cafés. Additionally, the connection to the surrounding cities as well as the highway is very good.
The region is also in close proximity to the Black Forest, which offers numerous leisure and recreational opportunities in nature.
• 3.5 rooms
• Second floor
• Extremely bright rooms
• Balcony
• Garage plus additional parking space in front
• Fully renovated
• New electrical wiring and a new distribution board
• Partially new water pipes
• Facade insulated (2020)
• Roof completely new
Property characteristics
| Age | Over 5050 years |
|---|---|
| Condition | After reconstruction |
| Floor | 2. floor |
| EPC | E - Wasteful |
| Price per unit | €3,500 / m2 |
| Available from | 15/03/2026 |
|---|---|
| Layout | 3+kk |
| Listing ID | 999969 |
| Usable area | 80 m² |
What does this listing have to offer?
| Balcony | |
| Garage | |
| MHD 2 minutes on foot |
| Basement | |
| Parking |
What you will find nearby
Still looking for the right one?
Set up a watchdog. You will receive a summary of your customized offers 1 time a day by email. With the Premium profile, you have 5 watchdogs at your fingertips and when something comes up, they notify you immediately.



















