
Flat to rent 3+1 • 69 m² without real estateSchlesierstraße 1, , Bavaria
Schlesierstraße 1, , BavariaPublic transport 2 minutes of walkingWelcome to the newly developed S3 residential area – a modernized, quiet, and green living environment that combines contemporary comfort with sustainable construction. Here, a home is being created for people who value quality, energy efficiency, and a pleasant living climate.
The building has been completely renovated and now presents itself in a modern, high-quality condition both inside and out. New windows, a completely renewed roof, as well as a stylish rendered facade not only ensure an attractive appearance but also provide excellent energy efficiency of class B – with noticeably lower heating costs.
Schlesierstraße is located in a pleasantly quiet and established residential area of Schwandorf. The surroundings are characterized by housing, green spaces, and little through traffic – ideal for those who want to live calmly while still enjoying good connections.
Everyday shopping, bakeries, doctors, and other services can be reached within minutes. Schools, kindergartens, and recreational facilities are also in the vicinity.
Public transport connections are good, so both the city center of Schwandorf and the train station are easily accessible. At the same time, you benefit from fast access to the surrounding federal roads and motorways – ideal for commuters heading towards Regensburg or Amberg.
The combination of peaceful living, good infrastructure, and short distances makes this location a particularly pleasant place to live.
The apartment, available as a first occupancy after renovation, impresses with its thoughtful and high-quality features:
• freshly sanded and painted walls
• low-maintenance vinyl ceramic flooring in a warm wood effect in all living areas
• modern bathroom with a comfortable bathtub
Additionally, the apartment offers a private balcony with a westward orientation, so you can enjoy the evening sun there.
Due to weather conditions, the balcony extension and the completion of the outdoor areas will take place in the spring of this year. In time for the warm season, you will have access to attractively designed outdoor spaces.
Furthermore, a communal laundry room with separate spaces for washing machines and dryers is available.
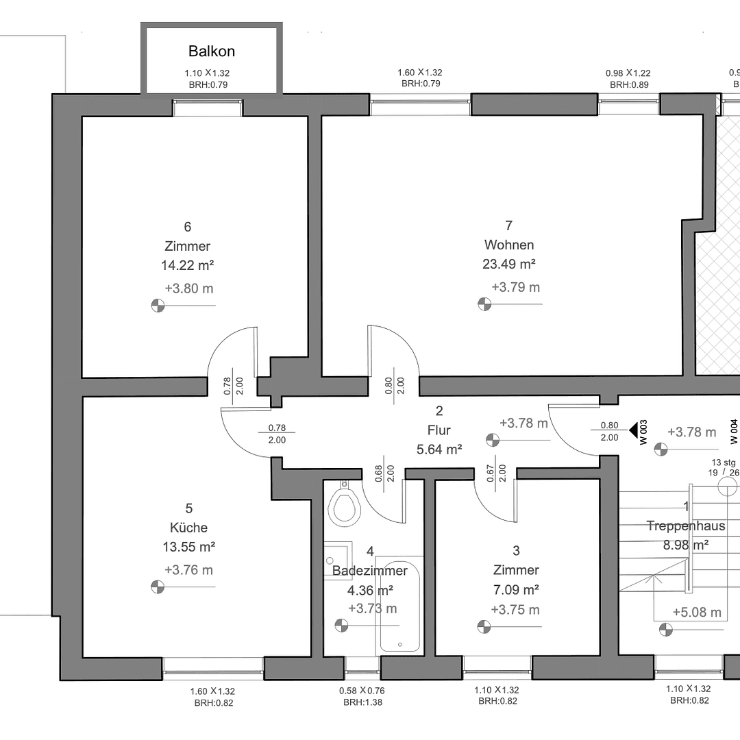
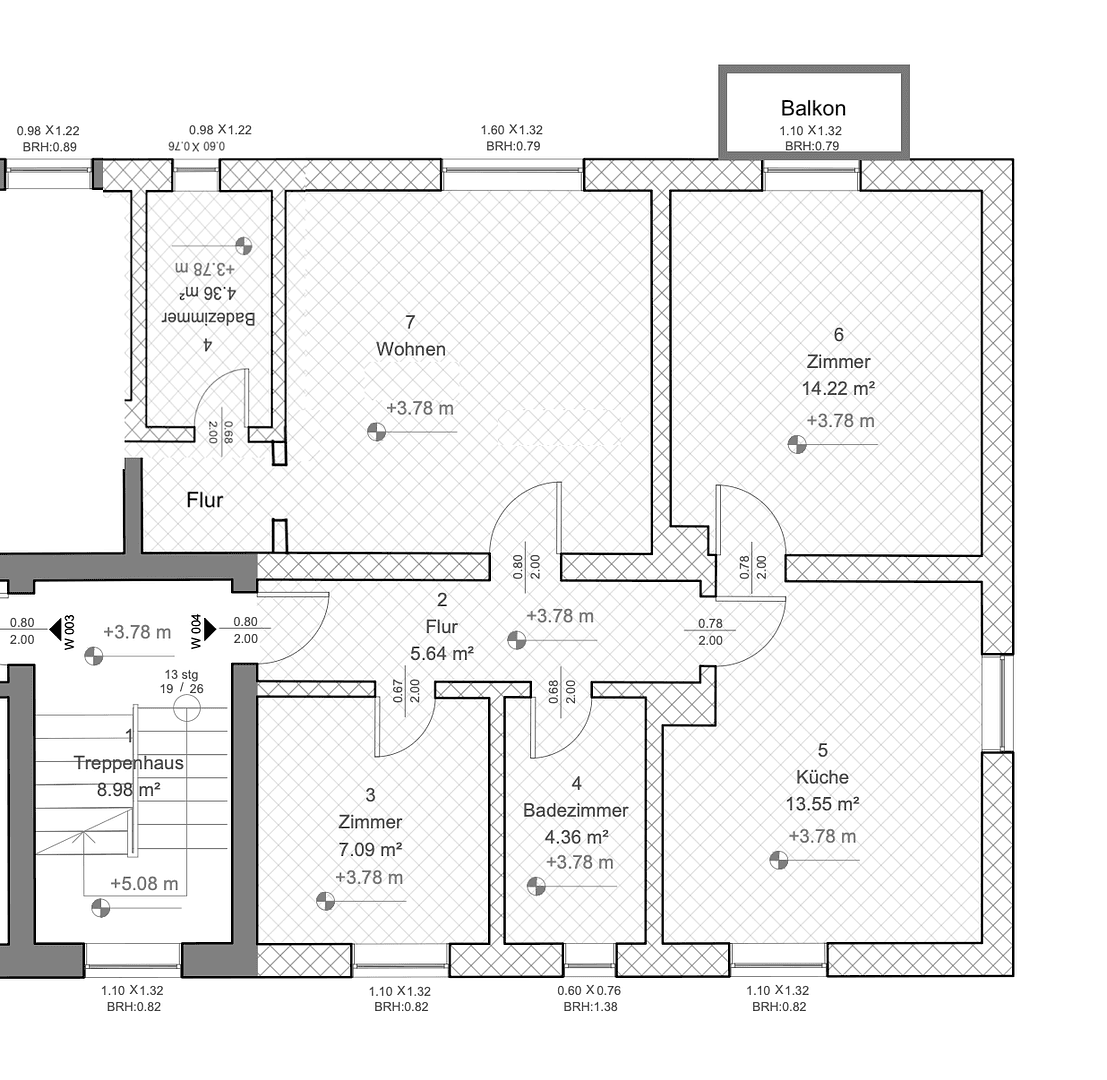
For the rental, there are two apartments with slightly different floor plans. The apartment on the left impresses with a large living room, while the apartment on the right instead has two bathrooms.
Note on the rental process:
To ensure a fair and prompt scheduling of appointments for all interested parties, the invitation to view the property is based on a short tenant self-disclosure. This way, we ensure that viewing appointments can be allocated in a targeted and efficient manner.
Property characteristics
| Condition | After reconstruction |
|---|---|
| Listing ID | 999941 |
| Price per unit | €13 / m2 |
| Layout | 3+1 |
|---|---|
| Usable area | 69 m² |
What does this listing have to offer?
| Balcony | |
| MHD 2 minutes on foot |
| Basement |
What you will find nearby
Still looking for the right one?
Set up a watchdog. You will receive a summary of your customized offers 1 time a day by email. With the Premium profile, you have 5 watchdogs at your fingertips and when something comes up, they notify you immediately.






