
Flat to rent 3+1 • 93 m² without real estateBreitenweg 1A, , Rhineland-Palatinate
Breitenweg 1A, , Rhineland-PalatinatePublic transport 2 minutes of walking • ParkingAvailable for rent is a high-quality 3-room new apartment on the first floor of a modern four-family residential building at Breitenweg 1A in Römerberg-Mechtersheim. This is a first occupancy that combines the highest living comfort with contemporary, energy-efficient construction methods. The apartment offers approximately 93 m² of living space and impresses with a well‑thought‑out layout and very high‑quality fittings.
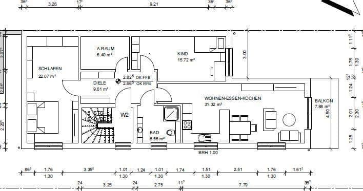
The apartment features a spacious living and dining area with direct access to the balcony.
It includes a high‑quality bathroom equipped with a modern, barrier‑free shower, stylish sanitary fittings, and high‑quality tiles, consistently meeting high standards of comfort and functionality.
All living areas are finished with smooth walls and premium smooth fleece wallpaper. Heating is provided by a modern air‑to‑water heat pump combined with underfloor heating in all rooms. Additionally, during the summer months, the underfloor heating can be used for temperate cooling of the rooms. Triple‑glazed windows and electric roller shutters in all rooms ensure high living comfort, A+ energy efficiency, and a pleasant indoor climate. A modern video intercom further enhances security and convenience.
The apartment is equipped with modern digital water and heat meters, allowing all consumption to be transparently and conveniently monitored via an app.
Parking spaces are available for rent separately if needed, at €50.00 per parking space per month. One or two parking spaces can be rented.
The location in Römerberg-Mechtersheim is characterized by a quiet and well‑maintained residential environment that still offers excellent infrastructure. Shopping facilities, doctors, pharmacies, as well as kindergartens and schools, are within easy reach. The area is marked by abundant greenery, fields, and the nearby Rhine floodplains, inviting you to take walks and enjoy recreational activities. A popular lake for swimming is located in the immediate vicinity and offers high leisure and relaxation quality, especially during the summer months. At the same time, there are good transportation connections towards Speyer, Germersheim, Ludwigshafen, and Mannheim, making the apartment extremely attractive for commuters.
Property characteristics
| Age | Over 5050 years |
|---|---|
| Condition | New-build |
| Listing ID | 999909 |
| Usable area | 93 m² |
| Available from | 12/03/2026 |
|---|---|
| Layout | 3+1 |
| EPC | A - Extremely economical |
| Price per unit | €11 / m2 |
What does this listing have to offer?
| Balcony | |
| MHD 2 minutes on foot |
| Parking |
What you will find nearby
Still looking for the right one?
Set up a watchdog. You will receive a summary of your customized offers 1 time a day by email. With the Premium profile, you have 5 watchdogs at your fingertips and when something comes up, they notify you immediately.















