
Flat to rent 2 bedroom • 65 m² without real estateTišnovská, Brno - Černá Pole, Jihomoravský Region
Interested?
Communicate all private owners and save CZK 10,000 on commissions.
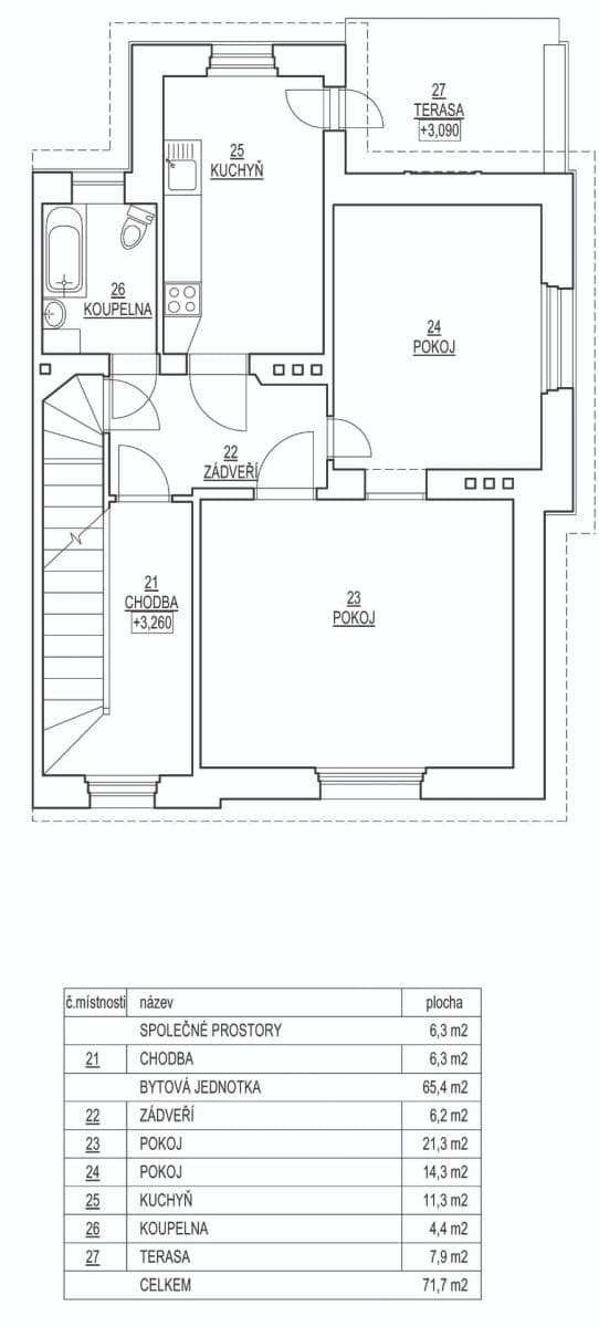
Nabízíme velký pokoj (21,3m2), v plně vybaveném a přátelském bytě 2+1 s terasou v cihlové budově v klidné části Brna na ulici Tišnovská, tři zastávky tramvají od centra města. V pokoji jsou 2 samostatné postele, 2x stůl se židlemi a velké skříně. Nábytek je možné případně různě obměnit. Hledáme ideálně anglicky mluvícího jednoho nebo dva lidi, ve druhém pokoji v bytě bydlí dvojice studentů z Myanmaru. Koupelna, kuchyň a terasa je společná pro oba pokoje. Byt se nachází v domě pouze se dvěma byty (ve druhém bytě bydlí 3 anglicky mluvící studenti). Pokoj je volný od 1.4.2026. Nájem 10.000,- + 3.000,- pro jednu osobu nebo 10.000,- + 4.000,- pro dvě osoby včetně energií a internetu. Vratná kauce jeden nájem. Těším se na setkání při prohlídce této nemovitosti.
V interiéru naleznete kvalitní materiály a moderní vybavení, které uspokojí i náročnější chuť. Přestože byt patří mezi varianty vhodné také ke spolubydlení, nabízí dostatek soukromí a komfortu pro každodenní život. K bytu náleží rovněž terasa o rozloze 7,9 m², kde si můžete vychutnat odpolední pohodu a relaxaci.
Pokud Vás nabídka zaujala, neváhejte mě kontaktovat zprávou přes komunikační platformu a domluvíme si termín prohlídky.
We offer a large room (21.3 m²) in a fully equipped and friendly 2+1 apartment with a terrace, located in a brick building in a quiet part of Brno on Tišnovská Street, just three tram stops from the city center. The room comes with two separate beds, two desks with chairs, and large wardrobes. The furniture can be rearranged if needed. Ideally, we are looking for one or two English-speaking individuals, as a pair of students from Myanmar lives in the other room of the apartment. The bathroom, kitchen, and terrace are shared between both rooms. The apartment is located in a building with only two flats (the other flat is home to three English-speaking students). The room is available from April 1, 2026. The rent is 10,000 CZK plus 3,000 CZK for one person or 10,000 CZK plus 4,000 CZK for two persons, which includes utilities and internet. A refundable deposit of one month’s rent is required. I look forward to meeting you for a viewing of the property.
Property characteristics
| Available from | 01/04/2026 |
|---|---|
| Building construction | Brick |
| Fully furnished | Fully furnished |
| Listing ID | 999794 |
| Usable area | 65 m² |
| Condition | Very good |
|---|---|
| Layout | 2 bedroom |
| Floor | 2. floor out of 2 |
| Location | Quiet area |
| Price per unit | CZK 154 / m2 |
What does this listing have to offer?
| Terrace: 7.9 m² |
What you will find nearby
Interested?
Communicate all private owners and save CZK 10,000 on commissions.


Flat to rentStarobrněnská, Brno - Město Brno, Jihomoravský Region- 2 bedroom
- 22 m²
CZK 10,000 + CZK 2,743

Still looking for the right one?
Set up a watchdog. You will receive a summary of your customized offers 1 time a day by email. With the Premium profile, you have 5 watchdogs at your fingertips and when something comes up, they notify you immediately.





